North Street, Caistor

Asking Price
£250,000

3 Bedroom Detached House for sale in Lincolnshire

2 3 2
  • VIDEO VIEWING AVAILABLE
  • Available With NO "CHAIN"
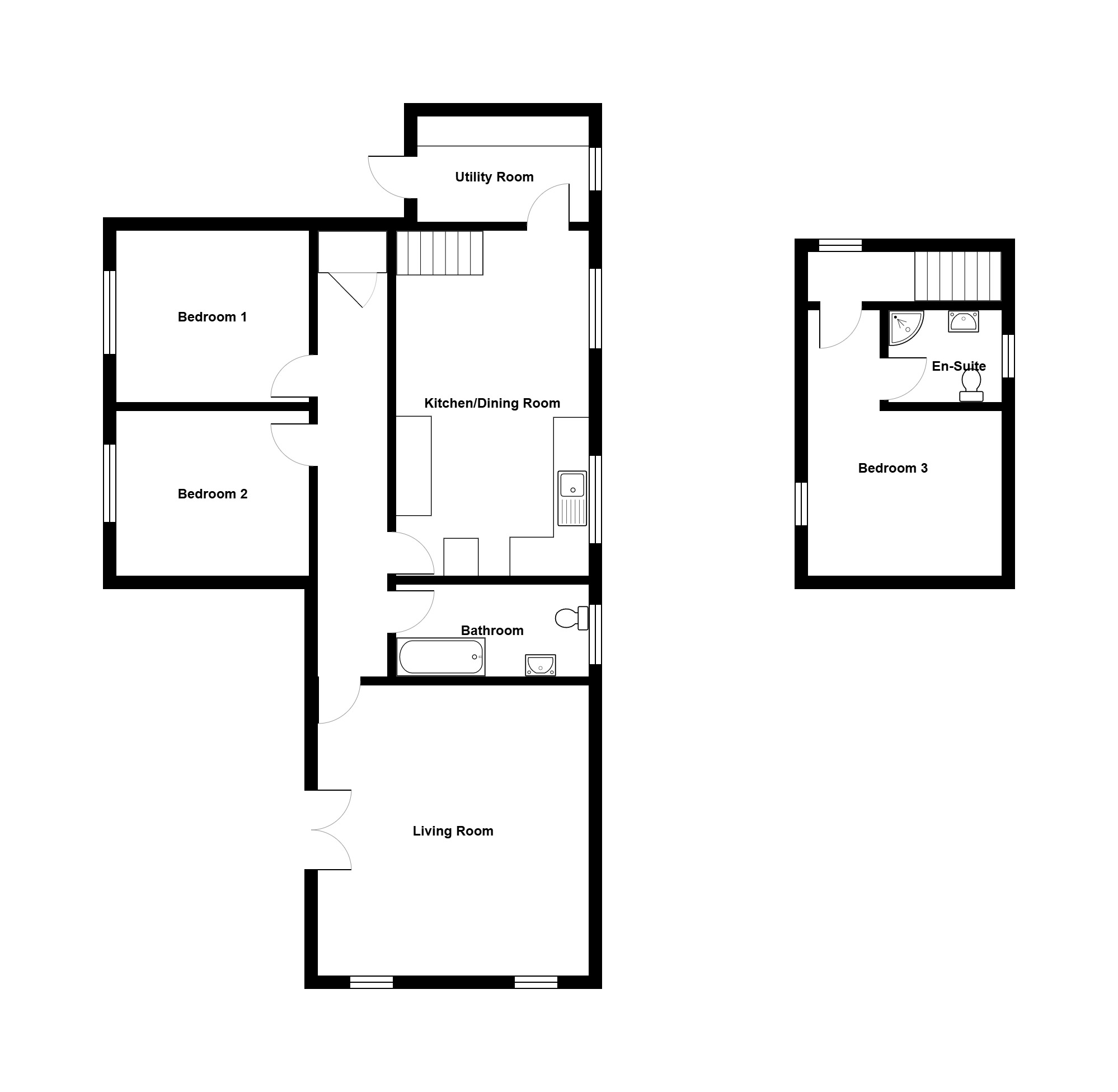
  • 3 Bedroom Chalet Bungalow
  • Popular Town Location Of Caistor
  • Extensive Driveway & Garage
  • Well Proportioned Rear Garden
  • 2 Bathrooms
  • uPVC Double Glazing
  • Gas Central Heating System

AVAILABLE WITH 'NO CHAIN'

Situated in the historic town of Caistor, providing catchment for Caistor Grammar School, this 3 bedroom chalet bungalow would make a perfect family home.

This well planned accommodation comprising of an entrance hallway, living room, kitchen/diner, utility, bathroom and 2 bedrooms on the ground floor, whilst the first floor contains the final bedroom and the en-suite.

Externally the property benefits from an extensive front driveway, providing ample off road parking, complimented by a garage. The rear garden has a paved seating area located off the living room alongside an attractive laid to lawn area to the rear. The rear garden also benefits from timber workshop.

Within catchment to Caistor Primary, Grammar and Yarborough School, alongside offering flexible ground floor accommodation, this would make a perfect home for any generation of buyer.

Important Information

  • This is a Freehold property.
  • This Council Tax band for this property is: C
  • EPC Rating is E

Property Ref: VAL250051

Share:

Similar Properties

Braeton Lane, Grimsby

2 Bedroom Detached Bungalow | Asking Price £250,000

Detached bungalow in a quaint private lane setting. Features beautiful, sizeable garden with patio, conservatory, and of...

Westfield Road, Waltham

3 Bedroom Detached Bungalow | Asking Price £250,000

AVAILABLE WITH 'NO CHAIN'A well extended, flexible 3-bedroom chalet bungalow located in the ever popular village of Walt...

Field Head Road, Laceby

3 Bedroom Semi-Detached House | Asking Price £250,000

New 3-bed semi by Logan Bespoke Homes with garage, driveway & 10-year warranty. Excellent finish with early buyer allowa...

Weelsby Avenue, GRIMSBY

3 Bedroom Detached House | Asking Price £255,000

Beautifully presented 3-bedroom detached home off Weelsby Road with spacious living, modern kitchen, garden, garage, and...

Maple Close, Keelby

4 Bedroom Detached House | Offers in excess of £260,000

VIDEO VIEWING AVAILABLE - Located in the ever popular village of Keelby, this 4 bedroomed extended detached property wou...

Seaford Road, Cleethorpes

3 Bedroom Detached Bungalow | Asking Price £260,000

Spacious 3-bed dormer bungalow with study on Seaford Road, Cleethorpes. Extended brick garage, flexible layout, no chain...

Jackson Green & Preston (Grimsby)

19 West Saint Marys Gate, Grimsby, Lincolnshire, DN31 1LE

01472 311 113

How much is your home worth?

Use our short form to request a valuation of your property.

Request a Valuation

Mortgage Calculator

Amount Borrowed: £
Total Amount Repayable: £
Total Monthly Payment: £
©2026 The Guild of Property Professionals. All rights reserved. Terms and Conditions | Privacy Policy | Cookie Policy | Complaints Policy | Members Login
The Guild of Property Professionals Trading Address: 121 Park Lane, London W1K 7AG. GPEA Limited. Registered in England & Wales.  Company No: 02819824.  Registered Office Address: 2 St. Stephen's Court, St. Stephen's Road, Bournemouth, Dorset, England, BH2 6LA.  VAT Registration No: 576 8795 61
Book a Property Valuation Update Cookies Preferences