- Four-bedroom semi-detached home
- Sought after location
- Beautifully presented
- No onward chain
- Ideal for a variety of buyers
- Tenure: freehold Council tax band: B
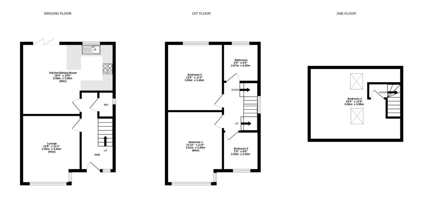
Berkeley Shaw Real Estate is delighted to bring to the market this fantastic four-bedroom semi-detached home, nestled in the charming Brook Vale, Waterloo. Overlooking Brook Vale Recreation Ground, this property offers a fantastic outlook across the green and open space.
As you step inside, you'll be greeted by a stylish and modern decor that runs seamlessly throughout the house. The property boasts an inviting entrance hall with WC, a living room, perfect for cosy with your loved ones. To the rear of the property is a modern kitchen diner with bi-folding doors out to the rear garden. The first floor boasts a modern bathroom, two double bedrooms and a single bedroom. The upper floor offers a further double bedrooms. Externally the property has driveway parking and a well-presented rear garden with porcelain tiled patio and turfed.
With no onward chain, you can move in hassle-free and start enjoying your new home right away. Further benefits include gas central heating & double glazing.
Whether you're a first-time buyer, or a family looking to settle down and take advantage of the local schools, this property has got you covered..
In conclusion, this turnkey property in Brook Vale is a rare find that offers both comfort and convenience. To truly grasp the quality and charm of this home, a viewing is highly recommended.
Hallway - Tiled floor, radiator & stairs to first floor.
Living Room - Double glazed windows & radiator.
Kitchen Diner - Bi-folding doors, double glazed window, range of wall & base units, stainless steel sink & drainer, gas burning hob, electric oven, extractor hood, combi boiler, tiled floor & 2 x vertical radiators.
Wc - Tiled floor, double glazed window, WC & basin.
Landing - Double glazed window & glass balustrade.
Bedroom 1 - Double glazed windows & radiator.
Bedroom 2 - Double glazed windows & radiator.
Bedroom 3 - Double glazed windows & radiator.
Bathroom - Tiled walls, tiled floor, vertical radiator, WC, basin, double glazed window & bath with shower & glass screen.
Bedroom 4 - 2 x Velux windows & radiator.
Externally - Block paved front garden & rear garden with porcelain tiles & laid to lawn.
Property Ref: 33073774
Alexandra Road, Crosby, Liverpool
4 Bedroom Terraced House | Offers Over £270,000
Welcome to this beautifully presented four-bedroom, mid-terraced home, perfectly positioned within walking distance of t...
2 Bedroom Apartment | £270,000
Stunning Two-Bedroom Duplex Apartment with Terrace, No Chain & Dockside Views - Waterloo WarehouseLocated within the his...
Waterloo Warehouse, Waterloo Road, Liverpool
2 Bedroom Apartment | Offers in excess of £270,000
Berkeley Shaw are delighted to present this exceptional two-bedroom duplex apartment, set within the iconic Waterloo War...
Lakeside View, Great Georges Road, Waterloo
3 Bedroom Mews House | Offers Over £275,000
Berkeley Shaw Real Estate are delighted to bring to market this exceptional three-bedroom mews-style residence, perfectl...
2 Bedroom Semi-Detached Bungalow | Offers Over £275,000
Set in a peaceful and highly sought-after location in Crosby, this beautifully maintained two-bedroom semi-detached bung...
Mark Road, Hightown, Liverpool
2 Bedroom Semi-Detached Bungalow | Offers in region of £275,000
NO CHAIN - FREEHOLDAre you looking to down-size or get a first step onto the property ladder? The sought after coastal v...
Berkeley Shaw Real Estate (Liverpool)
Old Haymarket, Liverpool, Merseyside, L1 6ER
Use our short form to request a valuation of your property.
Request a Valuation