Erw Haf, Llanwrtyd Wells, LD5

£55,000

2 Bedroom Detached Bungalow for sale in Llanwrtyd Wells

2 2 2
  • Rare opportunity to acquire a good-size building plot within the mature residential development of Erw Haf, on the fringes of Llanwrtyd Wells
  • Located in the heart of beautiful Mid Wales, enjoying a peaceful yet established setting
  • Full planning permission granted for a detached two-bedroom bungalow
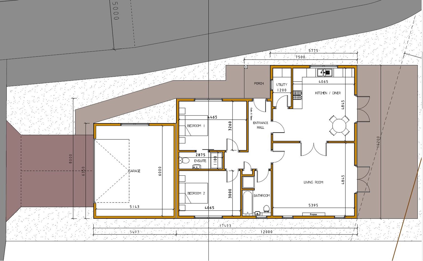
  • Approved accommodation to include kitchen/diner, reception room, two double bedrooms (one en-suite) and a separate shower room
  • Positioned on the edge of the development with stunning rear views across adjoining farmland to the hillside beyond
  • Manageable private gardens planned, ideal for low-maintenance living
  • Driveway with parking leading to an integral double garage
  • Mains water and electricity available in the adjacent pavement, with the main sewer located in the corner of the plot
  • Council tax 'TBC' / Energy performance certificate - TBC

A rare opportunity to acquire a generous building plot within the mature residential development of Erw Haf, located on the fringes of Llanwrtyd Wells in the heart of beautiful Mid Wales.

The plot benefits from full planning permission for a detached two-bedroom bungalow, ideally suited to retirement living. The approved plans provide for a well-balanced layout comprising a kitchen/diner, reception room, two double bedrooms (one with en-suite) and a separate shower room. Positioned on the edge of this established development, the proposed dwelling will enjoy a particularly attractive outlook, with stunning rear views across adjoining farmland to the hillside beyond.

Externally, the property will benefit from manageable private gardens, a driveway with parking, and access to an integral double garage. The elevated rear aspect offers a wonderful setting to relax and enjoy the surrounding countryside.

Further information can be found on the Powys County Council Planning Portal under planning application number 24/1176/FUL. We are advised that mains water and electricity are located within the pavement adjacent to the plot, with the main sewer positioned in the corner of the site.

Llanwrtyd Wells is one of the smallest towns in Mid Wales, with a population of around 850, and famously claims to be the smallest town in Britain. Situated astride the River Irfon and lying on the A483 between Llandovery and Builth Wells, the town is nestled within the scenic Tywi and Irfon valleys. Llanwrtyd Wells developed as a spa town following the discovery of the healing waters at Ffynnon Ddrewllyd in 1732, which still exists today. The town is well known for its quirky and internationally recognised events, including the World Bog Snorkelling Championships and the annual Man versus Horse Marathon, along with a variety of other community festivals held throughout the year. The popular market town of Builth Wells lies approximately 13 miles away, set in the heart of Powys amid some of the most picturesque countryside in the United Kingdom. Located within the historic boundaries of Brecknockshire, Builth Wells sits on the banks of both the River Wye and River Irfon and is renowned for hosting the Royal Welsh Show, the largest agricultural show in Europe, attracting in excess of 240,000 visitors annually.

Important Information

  • This is a Freehold property.

Property Ref: 28471724

Share:

Similar Properties

Temple Street, Llandrindod Wells, LD1

1 Bedroom Apartment | £45,000

Looking for a home with charm, character… and a chance to make it truly your own? This Victorian gem in Llandrindod Well...

Llangammarch Wells, LD4

2 Bedroom Cottage | £58,500

***CASH BUYERS ONLY*** If you are looking for an opportunity to really put your own stamp on, then look no further! A lo...

Temple Street, Llandrindod Wells, LD1

1 Bedroom Apartment | £60,000

A well-presented first floor apartment in a central position within the popular Spa Town of Llandrindod Wells, offered w...

Temple Street, Llandrindod Wells, LD1

1 Bedroom Apartment | £70,000

A stylish first-floor apartment in a former luxury hotel, right in the heart of Llandrindod Wells. Offering light-filled...

James Dean The Estate Agents Builth (Builth Wells)

Builth Wells, Powys, LD2 3AB

01982 552 537

How much is your home worth?

Use our short form to request a valuation of your property.

Request a Valuation

Mortgage Calculator

Amount Borrowed: £
Total Amount Repayable: £
Total Monthly Payment: £
©2026 The Guild of Property Professionals. All rights reserved. Terms and Conditions | Privacy Policy | Cookie Policy | Complaints Policy | Members Login
The Guild of Property Professionals Trading Address: 121 Park Lane, London W1K 7AG. GPEA Limited. Registered in England & Wales.  Company No: 02819824.  Registered Office Address: 2 St. Stephen's Court, St. Stephen's Road, Bournemouth, Dorset, England, BH2 6LA.  VAT Registration No: 576 8795 61
Book a Property Valuation Update Cookies Preferences