Amott Road, Peckham, SE15

£1,685,000
Under Offer
This property listing is now Under Offer

5 Bedroom Terraced House for sale in London

2 5 3
  • Exquisite Kitchen Diner Extension
  • Tasteful Neutral Styling
  • Abundant Bespoke Storage
  • Master Ensuite
  • Study with Panoramic City Views
  • Freehold

Beautifully Extended Five Bedroom Period Home with Study and Generous Garden - CHAIN FREE.

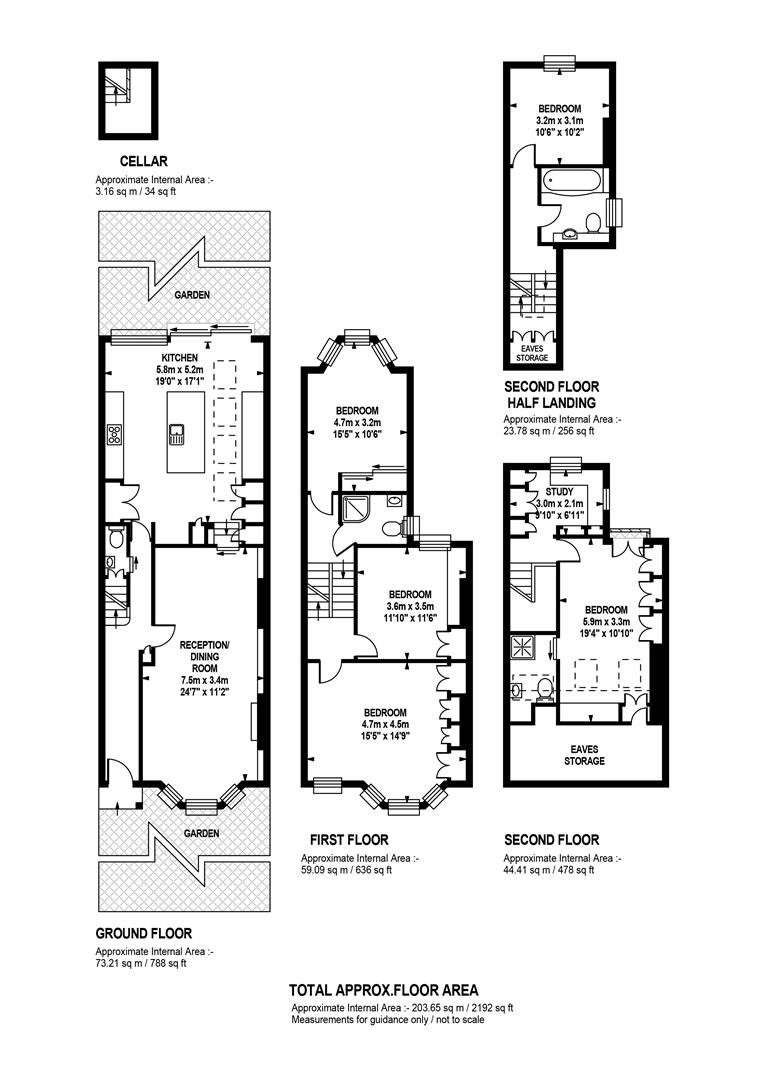
This expertly extended and substantial period family home is spread generously over three and a half tasteful floors. The accommodation is presented with a slick neutral finish throughout and comprises a larger than average double reception, magnificent full-width kitchen/diner, five fantastic bedrooms (master ensuite), study, bathroom, shower room and additional guest wc. There's an impressive amount of bespoke cabinetry and a super handy storage cellar. A top floor Juliette balcony supplies sweeping panoramic views across London - great for New Year fireworks! The rear garden has been made suitably handsome and includes a sizeable paved patio, lawn and mature shrubs and plants. The location is unrivalled for its convenience. You're within the (tiny) catchment for a fantastic primary school - St John's & St Clement's C of E Primary School is highly considered and literally seconds away for the easiest morning commute! This is in addition to the wonderful amenities of Lordship Lane. Transport is a cinch with East Dulwich, Peckham Rye and Denmark Hill Stations each walkable.

A solid, symmetrical period exterior leads you inward to find notably high ceilings, original cornicing and corbels. A frosted light and oblong panes in the doorway afford a bright vibe. The fantastic double reception spans over 7 metres and enjoys slick neutral styling, low-level bespoke storage, fireplace and a wide front-aspect bay window with louvered blinds on the upper and lower panes. Steps lead down from the rear to that amazing full-width kitchen/extension which boasts almost 300 sq ft of cooking, lounging, dining and entertaining space. Four separate overhead windows supply light throughout the day. There's a stunning Quartz-topped island with butler sink, Quooker tap and integrated dishwasher and bin storage. You'll also benefit from seating for four adults on the far side. A further run of cabinet and counter space on both walls ensures optimum storage and food prep opportunities. Appliances include Miele integrated hob and oven and there's plenty of space for a wine cooler and American fridge/freezer. Extra-wide pan storage and a deep pantry add to the charm. Ultra-wide sliding doors open rear to the paved patio and astro-turf lawn which is flanked on three sides by raised planters with fragrant herbs, shrubs and plants. You'll find a neat wc tucked politely under the stairs back in the hall. This also offers access to that recessed cellar.

The first return supplies a generous rear-facing carpeted bedroom with fitted storage and wide bay window peering over the garden. A handy shower room completes this level. Ascending a half-flight to the first floor rewards you with a bountiful double bedroom. It's a spacious, bright room and fronts the street through a wide canted bay window. Abundant bespoke wardrobes line the far wall. Bedroom three sits next door with more bespoke storage and a rear aspect. The second return has another carpeted bedroom with garden views. It sits next to a bathroom with modern suite. On the final ascent to the second floor you pass a low-level recessed storage point on the stairwell. The study supplies the first of those spectacular views and makes the perfect work-from-home spot. Bedroom five is a fabulous space which boasts a Juliette balcony with more uninterrupted views of the Shard, the city AND Canary Wharf! There are plenty more wardrobes and additional eaves storage too. Adjoining is an ensuite wet-room style shower room with fancy contemporary suite and heated towel rail.

Boho amenities of the Bellenden Road Conservation area are all at your fingertips - we love 'The Victoria Inn' and The Begging Bowl. Try the cafés, bars and restaurants or venture into East Dulwich, a 10 minute walk, for some of southeast London's best shops. Peckham Rye Station is also around 10 minutes' walk and Denmark Hill an easy 15 minutes stroll for services to London Bridge, Victoria, Blackfriars and the fab London Overground Line. You can be at Canary Wharf (via Canada Water) in a mere 20 minutes. A whole variety of buses run into town along Peckham Road, just five minutes away. The Belham Primary free school is a two minute stroll from you door for a super easy morning commute. It's part of the same trust as the highly considered Dulwich Hamlets Schools. The popular Villa pre-prep and nursery is down the road and the Little Jungle nursery is even closer. St John's and St Clement's on Adys Road is highly considered and the Dulwich Foundation schools are just a 5 minute drive.

Tenure: Freehold

Council Tax Band: D

Property Ref: 34259182

Share:

Similar Properties

Asylum Road, Peckham, SE15

4 Bedroom Semi-Detached House | Guide Price £1,500,000

Elegant Three/Four Bedroom Victorian Home With Beautiful Garden - CHAIN FREE. GUIDE PRICE: £1,500,000 to £1,600,000. Ris...

Crofton Road, Camberwell, SE5

4 Bedroom Terraced House | Offers in excess of £1,500,000

Double-Fronted 3/4 Bedroom Victorian Home circa 1900 sq ft on Best Street. A stunning, double-fronted beauty with impres...

Lyndhurst Grove, Peckham, SE15

4 Bedroom Terraced House | Guide Price £1,500,000

GUIDE PRICE £1,500,000 TO £1,550,000. Huge Four Bedroom Contemporary Home Spanning Over 2000 sq ft With OSP - CHAIN FREE...

Ashbourne Grove, East Dulwich, SE22

4 Bedroom Semi-Detached House | £1,695,000

Elegant Four Bedroom Period Home With Stunning Garden and Parking Moments From Lordship Lane.The current owners of this...

Camberwell Grove, Camberwell, SE5

5 Bedroom Terraced House | Offers in excess of £1,700,000

Divine Grade II Listed Five Bedroom Georgian Beauty With Roof Terrace on Best Street - CHAIN FREE. All the charm of a Ca...

Grove Lane, Camberwell, SE5

5 Bedroom End of Terrace House | Guide Price £1,700,000

GUIDE PRICE £1,700,000 to £1,800,000. Sublime Five Bedroom Georgian Home With Gorgeous Gardens to Front and Rear - CHAIN...

Wooster & Stock (Nunhead)

Nunhead Green, Nunhead, London, SE15 3QQ

020 7952 0595

How much is your home worth?

Use our short form to request a valuation of your property.

Request a Valuation

Mortgage Calculator

Amount Borrowed: £
Total Amount Repayable: £
Total Monthly Payment: £
©2026 The Guild of Property Professionals. All rights reserved. Terms and Conditions | Privacy Policy | Cookie Policy | Complaints Policy | Members Login
The Guild of Property Professionals Trading Address: 121 Park Lane, London W1K 7AG. GPEA Limited. Registered in England & Wales.  Company No: 02819824.  Registered Office Address: 2 St. Stephen's Court, St. Stephen's Road, Bournemouth, Dorset, England, BH2 6LA.  VAT Registration No: 576 8795 61
Book a Property Valuation Update Cookies Preferences