Elm Grove, Peckham, SE15

£1,300,000

3 Bedroom Terraced House for sale in London

2 3 1
  • Impressive Proportions
  • Original Features
  • Peaceful Yet Convenient Location
  • Freehold

Elegant And Generous Three Bedroom Period Home Along Best Street.

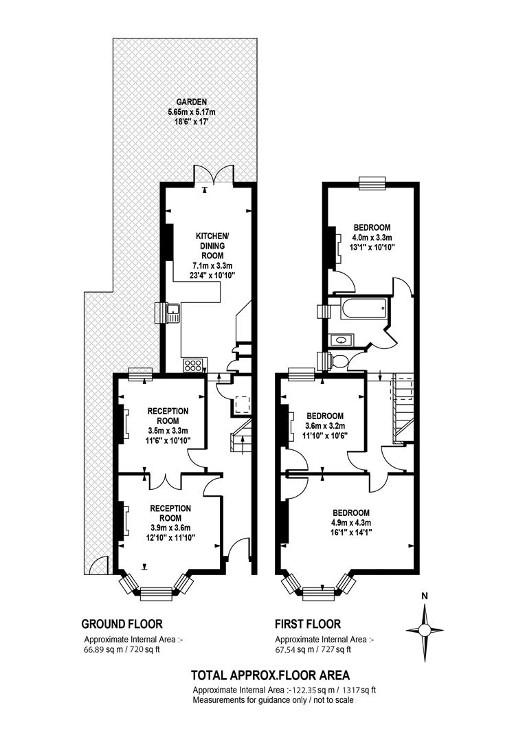
Enjoying a prized spot along the elegant and mature Elm Grove, this impressively proportioned end-of-terrace three bedroom period home ticks all the boxes! The property boasts a notably larger foot print than the average three bedder and is both meticulously presented and beautifully arranged. The accommodation comprises a marvellous double reception, large kitchen/diner, three proper double bedrooms and a family bathroom. A generous offering of original features adds to the charm. There's a pretty rear garden for summer gatherings and you're within a peaceful and brief stroll of the very best of Bellenden Village. Peckham and its endless list of social attractions is as close. You've also got every conceivable amenity on your doorstep - including the wonderful Bellenden Road! Peckham Rye station, in addition to unbeatable services to London Bridge, hosts the fab London Overground line - it'll whisk you to Shoreditch, Islington, Hoxton or Clapham in no time at all!

Boasting a semi-detached corner position, the property sits back from the peaceful street behind a mature garden with wrought iron gate and mature tree. As it's a no-through road, you'll enjoy a quiet, low-traffic environment. An arched recessed portico leads you to an exquisite original door with a triptych of mottled glass windows. Inside you meet a welcoming hall with high ceilings and beautifully maintained corbels. The double reception sits to the left and is separated centrally by double original doors. To the front you enjoy a wide, canted bay window with leafy views, a ceiling rose, picture rails and cornicing. The rear room peeks down toward the garden. and both ends of the room have sublime matching period feature fireplaces. You find the kitchen/diner sitting at the end of the hall with plenty of modern cabinetry. There's a six ring gas range, integrated dishwasher, integrated fridge/freezer and washing machine. Quartz counters run gracefully over the breakfast bar which supplies additional dining space. Abundant space for a a large dining table precedes French doors which open to your leafy and pretty rear garden.

Back inside you ascend upward via an original staircase which dons an original decorative Newel post and handrail, white treads and risers and a stunning hard-wearing runner. The split-level landing gives an impressive sense of width and height with tonnes of hanging space for your larger works of art. A skylight ensures noteworthy airiness. The front-facing master bedroom sprawls to full-width with a wide canted bay and additional sash window. There's such a lovely period streetscape to enjoy below - it's a bright pleasant space. Bedroom two is a fine-sized double with more tasteful floor coverings, original storage and additional mirrored cabients. There's also a charming feature fireplace with gorgeous tiled hearth. The bathroom and wc are separated for peaceful morning traffic and the third double bedroom is a reassuringly generous rear-facing room with another show-stopping feature fireplace.

The locale really leaves you within a stroll of anything you might need. Rye Lane offers its unique London bustle and all the high street shops. Transport wise you're equally well catered for with nearby Peckham Rye Station - which in addition to London Bridge services supplies the fab London Overground Line. Further services include Blackfriars and Victoria (all between 9-14 mins). Buses head into town from Rye Lane and Peckham Road, night buses included. Bar Story is close for a cocktail on the patio, and East Dulwich or Camberwell are near for a change of (local) scene. Bellenden Village is a matter of seconds on foot and supplies much to do. We love The Victoria for a pint, The Begging Bowl for some excellent nosh and Review book shop for a nose around the latest titles. The high street, Rye Lane, is a stone's throw for a cosmopolitan mix of food shops and other outlets. As for social life, good restaurants, bars and delis are on your doorstep and the Peckham Pulse, award winning library and Sunday farmers market are around the corner. This part of SE15 is also well located for East Dulwich and Dulwich Village where you have more excellent shopping, the Dulwich Foundation schools, the park and the Picture Gallery.

Localised underpinning was undertaken in the mid-1990s following the removal of a eucalyptus tree. No further movement has been reported since.

Tenure: Freehold

Council Tax Band: E

Property Ref: 34399529

Share:

Similar Properties

Chadwick Road, Peckham, SE15

3 Bedroom Terraced House | Guide Price £1,300,000

GUIDE PRICE £1,300,000 to £1,350,000A Unique and Well Proportioned Three Bedroom Period Charmer with Dishy Finish and Pr...

Dunstans Road, East Dulwich, SE22

4 Bedroom Terraced House | Guide Price £1,300,000

GUIDE PRICE £1,300,000 - £1,400,000.Impressively Refurbished Four Bedroom Victorian Home on Popular Mature Street - CHAI...

Graces Road, Camberwell, SE5

4 Bedroom Terraced House | Guide Price £1,250,000

Three/Four Bedroom Period Home With Gorgeous Decor and Generous Garden. GUIDE PRICE: £1,250,000 TO £1,300,000. This magn...

Anstey Road, Peckham, SE15

5 Bedroom Terraced House | £1,350,000

Sublime Four/Five Bedroom Period Home With Impressive Loft and Kitchen Extensions. With a magnificent full-width kitchen...

Choumert Road, Peckham, SE15

4 Bedroom Terraced House | £1,375,000

Wonderfully Mature Extended Four Bedroom Period Home With South-Facing Garden. There's an unmistakably homely sunny feel...

Knatchbull Road, Camberwell, SE5

5 Bedroom Terraced House | £1,375,000

Substantial Five Bedroom Period Home Seconds From Myatt's Field Park - CHAIN FREE.Enjoying a prized location but seconds...

Wooster & Stock (Nunhead)

Nunhead Green, Nunhead, London, SE15 3QQ

020 7952 0595

How much is your home worth?

Use our short form to request a valuation of your property.

Request a Valuation

Mortgage Calculator

Amount Borrowed: £
Total Amount Repayable: £
Total Monthly Payment: £
©2026 The Guild of Property Professionals. All rights reserved. Terms and Conditions | Privacy Policy | Cookie Policy | Complaints Policy | Members Login
The Guild of Property Professionals Trading Address: 121 Park Lane, London W1K 7AG. GPEA Limited. Registered in England & Wales.  Company No: 02819824.  Registered Office Address: 2 St. Stephen's Court, St. Stephen's Road, Bournemouth, Dorset, England, BH2 6LA.  VAT Registration No: 576 8795 61
Book a Property Valuation Update Cookies Preferences