Peckham Hill Street, Peckham, SE15

£1,350,000

4 Bedroom Semi-Detached House for sale in London

2 4 2
  • Thoughtful Georgian Restoration
  • Sympathetic Reclaimed Features
  • Gorgeous Garden with Studio
  • Double Fronted
  • Freehold

Expertly Restored Three/Four Bedroom Double-Fronted Georgian Home with Generous Garden and Studio - CHAIN FREE.

We've simply never seen such a sincere and lovingly executed Georgian restoration. The current owners of this sublime double-fronted home have painstakingly sourced and instated every square inch with expertise and respect to the building's original charm.

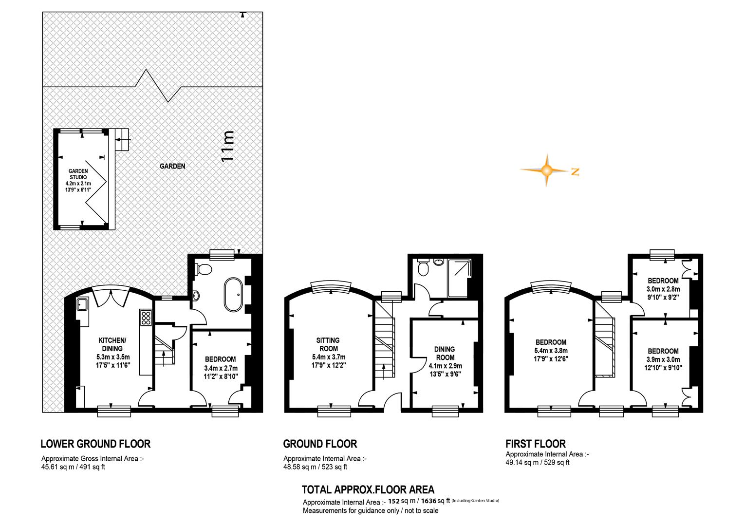
Built circa 1810, and sitting in the centre of the Peckham Hill Street Conservation Area the property sits back from the street behind a symmetrical front garden and privacy-affording greenery. Indeed, the accommodation follows a similarly solid and proportional layout. The attention to detail is truly breathtaking - reclaimed window shutters, stairs, cornicing, doors, architraves and windows - to name but a few of the features that will wow you. The accommodation glides over three equally charming floors currently laid out to include three/four double bedrooms, sitting room, formal dining room, kitchen/diner, larder/guest bedroom, shower room and bathroom. There's a fantastic garden studio in the beautifully manicured rear kitchen garden which has abundant planter beds, a vine-clad pergola, fragrant mature foliage and herbs and direct rear access to Bonar Road with residents parking plentiful.

The best of this lush locale is right at your fingertips - everything you could need is within a stroll. Shops, cafes, pubs and transport all abound. You can even have a morning swim and gym session just a minute's stroll from your front door. Rye Lane offers a multitude of shopping and leisure facilities and nearby Bellenden Road enjoys an unmistakably villagey vibe. There are fast and frequent services to central London Bridge and Blackfriars from Peckham Rye station (about 10-minute walk away). The fab London Overground line leaves from here also and will have you slinking down Shoreditch High Street in a mere 20 mins! Clapham High Street, Islington and Clapham Junction are also easy. Alternatively, you can grab a bus within seconds of your house which will whisk you to Elephant and Castle, London Bridge, Waterloo the West End or the City.

The double-fronted exterior sits politely behind a period gates and high hedging. A stunningly recrafted arched fanlight - designed to replicate the original from next door - crowns an extra wide Georgian door. A handsome knocker set will confidently announce your gentleman callers. Inside you meet a welcoming hallway presented in Farrow and Ball's 'Green Smoke' and 'Pointing'. The rear side of the door reveals a wonderful period lock and keep.

To the left you find a glorious dual-aspect sitting room with double-flued Morso DEFRA approved eco wood burner, stone mantel and Little Greene 'Obsidian Green' on the walls. Your works of art will hang tough on a beautiful chrome antique brass picture rail and you'll note stunning sash windows to front and rear. For those evenings you just want to kick back and relax in front of the fire a 42" flatscreen built-in TV sits unobtrusively hidden behind a period mirror from Overmantels of Battersea. The front specimen enjoys reclaimed shutters whilst the rear bow-shaped bay boasts a picture-perfect Juliette balcony reclaimed from a similar period property in Bath. The doors and architraves throughout have been expertly reinstated to match the period.

The dining room sits across the entrance hall and also faces front through a signature arched sash window. Vertical shutters have been rebuilt with patience and attention - the current owners sourced a joinery manual from the Georgian period for an endlessly impressive result. There's a fine feature fireplace and studious blue walls too. To the rear of the hall you'll enjoy a long picture window that supplies a further enticing vista of your lush rear garden. This precedes the shower room which dons an oversized 1920s Art Deco Porcher wash hand basin with restored original taps and waste, Art Deco cistern, and a double walk-in shower with 1920 Porcher brass shower unit. The floorboards throughout the hall, reception rooms and landings are reclaimed, wide and Georgian, carefully cleaned and rewaxed to retain the original patina.

Heading downward to the lower ground floor you pass an exposed section of original brickwork. It compliments perfectly the recrafted staircase which benefits from solid Georgian treads, handrail and newel post. There's a handy utility cubby tucked underneath the stairs and the storage doors are made from reclaimed Georgian shutters! The bathroom has a restored 1890s extra-deep roll top bath from Parisian Belle Epoque manufacturer L'Hygiene Moderne for an indulgent evening soak, nickel plated Jacob Delafon capstan bath taps, similar period original and increasingly rare ceramic Jacob Delafon washstand and art deco mirror. A stunning corner wooden wall cabinet will house the loo roll and all your lotions and potions.

The kitchen/diner is simply delightful! With exposed original wooden beams, front-facing sash window (avec shutters) and cathedral-grade flag stone flooring it transports you effortlessly to the 19th century. A bespoke period wooden dresser has been deftly redesigned to host a large Armitage Shanks butler unit above. It is finished perfectly by wall mounted brass taps and a suitably charming period wooden dish rack. There's a healthy smattering of rustic Dutch cheese board both on the walls and windowsills. It exemplifies perfectly the confident craftsmanship and eye for meaningful detail that sets the house apart. A reclaimed period feature mantel and hob grate flanks the left wall also. To the rear you find the French doors are actually French and are accompanied by a stunning Victorian era wrought iron security gate both sourced from UK Architectural Heritage. There's a guest bedroom across the lower landing. Currently arranged as a larder, it offers a versatile space and more gorgeous period detail.

The curved exterior steps leading upward to the garden seamlessly ascend crowned on either side with mature rosemary. Numerous wooden planter beds host an array of mature posies, herbs and veggies including sage, mint, tomatoes, oregano, courgette, Peruvian Lily and Crocosmia. The wonderfully versatile garden studio sits next to a trio of dwarf birch trees. It's a bright, dual aspect space perfect for guest storage, working from home or a spot of yoga. A large mature olive tree supplies dappled shade next to the rear access point which leads to Bonar Road - handy for mucky dogs and kids. Last but not least comes a Wisteria, Bamboo and Jasmine-clad pergola - we can't think of anywhere nicer to host a late summer evening gathering!

Back inside ascend your wonderful staircase to a bright landing with more reclaimed Georgian floorboards, a rear-facing sash window, shutters and a show-stopping multi-bulb light fixture. The master bedroom fronts the street with wonderful dusky 'Breton Blue' walls, high skirting boards and a noteworthy Georgian mantel and hob grate. The front-facing sash window has more vertical sliding shutters whilst the rear window enjoys leafy views toward the Bonar Road Allotments. Bedroom two shares the front spot with another reclaimed mantel and hob grate. The rebuilt period storage slots reassuringly into the alcove and there are more 'modesty' shutters to retain your good name while disrobing. The third and final charming bedroom faces rear over the garden with recrafted Georgian storage, hob grate and mantel.

A Sunday 'Farmers Market' and monthly 'French Market' are held next to the Pulse leisure centre - it's a great spot for local produce and nice to know you're reducing your carbon footprint to baby steps. Peckham's art scene is thriving. The South London Gallery is 10 minutes walk and the local Camberwell College of Arts ensures a flood of creative types. London's coolest rooftop bar, Frank's pop-up Café

Property Ref: 58297_34231802

Share:

Similar Properties

Anstey Road, Peckham, SE15

5 Bedroom Terraced House | £1,350,000

Sublime Four/Five Bedroom Period Home With Impressive Loft and Kitchen Extensions. With a magnificent full-width kitchen...

Chadwick Road, Peckham, SE15

3 Bedroom Terraced House | Guide Price £1,300,000

GUIDE PRICE £1,300,000 to £1,350,000A Unique and Well Proportioned Three Bedroom Period Charmer with Dishy Finish and Pr...

Graces Road, Camberwell, SE5

4 Bedroom Terraced House | Guide Price £1,250,000

Three/Four Bedroom Period Home With Gorgeous Decor and Generous Garden. GUIDE PRICE: £1,250,000 TO £1,300,000. This magn...

Knatchbull Road, Camberwell, SE5

5 Bedroom Terraced House | £1,375,000

Substantial Five Bedroom Period Home Seconds From Myatt's Field Park - CHAIN FREE.Enjoying a prized location but seconds...

Camberwell Grove, Camberwell, SE5

4 Bedroom Terraced House | £1,395,000

Gorgeous Georgian Grade II Listed Four Bedroom Home in Conservation Area. This charming four bedroom period home, sittin...

Ewelme Road, Forest Hill, SE23

5 Bedroom Semi-Detached House | £1,400,000

Double-Fronted Five Bedroom Victorian Home Over Three Lovely Floors - CHAIN FREE.This fantastic five bedder is spread ge...

Wooster & Stock (Nunhead)

Nunhead Green, Nunhead, London, SE15 3QQ

020 7952 0595

How much is your home worth?

Use our short form to request a valuation of your property.

Request a Valuation

Mortgage Calculator

Amount Borrowed: £
Total Amount Repayable: £
Total Monthly Payment: £
©2025 The Guild of Property Professionals. All rights reserved. Terms and Conditions | Privacy Policy | Cookie Policy | Complaints Policy | Members Login
The Guild of Property Professionals Trading Address: 121 Park Lane, London W1K 7AG. GPEA Limited. Registered in England & Wales.  Company No: 02819824.  Registered Office Address: 2 St. Stephen's Court, St. Stephen's Road, Bournemouth, Dorset, England, BH2 6LA.  VAT Registration No: 576 8795 61
Book a Property Valuation Update Cookies Preferences