Cambria Road, London, SE5

£975,000

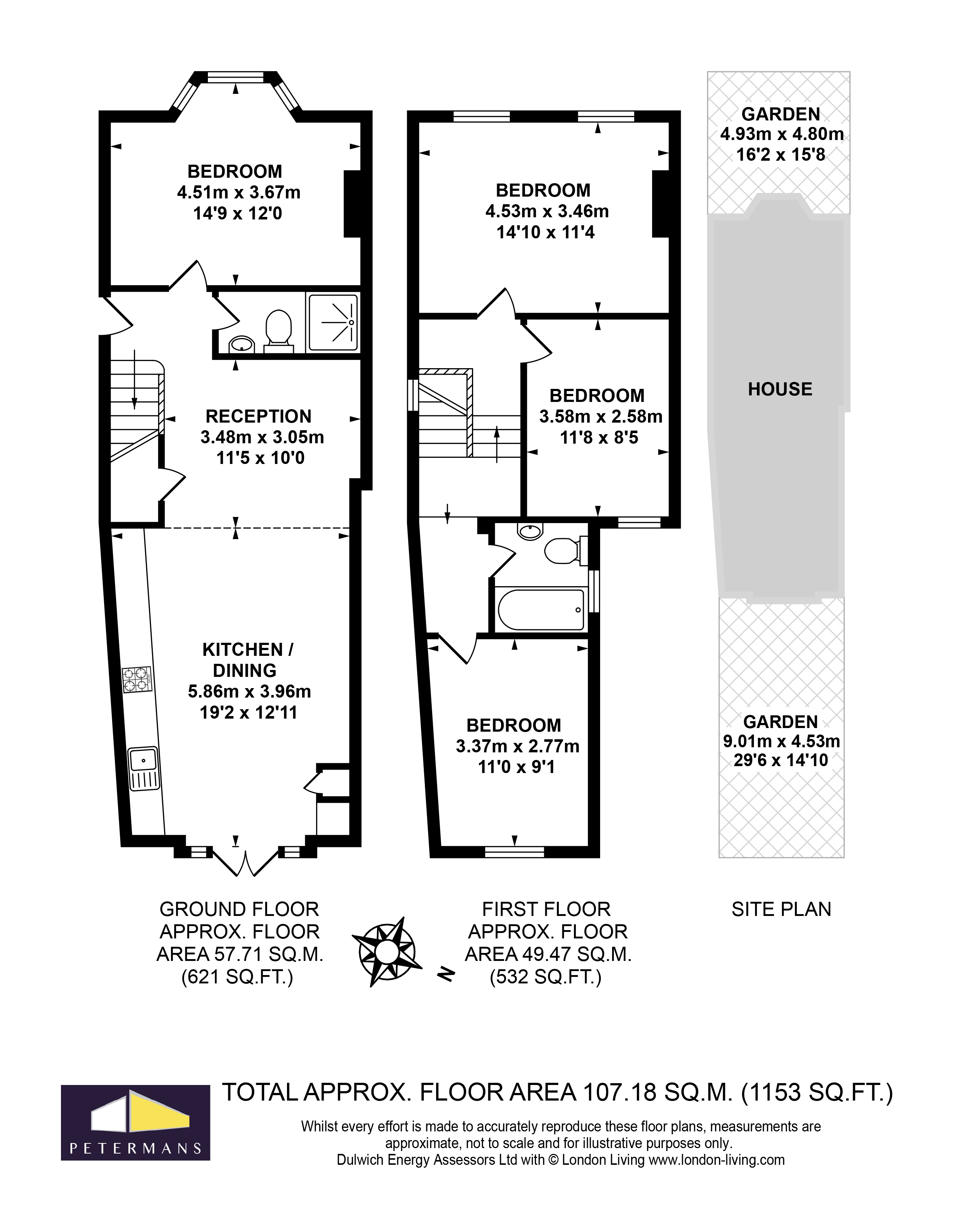
4 Bedroom End of Terrace House for sale in London

1 4 2
  • Four double bedrooms
  • Private garden
  • Large kitchen/living room/diner
  • Two bathrooms
  • Short walk to Loughbrough Junction Station

Victorian property comes to the market offering four good size bedrooms, large living area and new kitchen leading onto the garden via french doors. With the benefit of off street parking the property is located within walking distance of Loughborough Jct BR as well as the popular Ruskin Park.

Newly refurbished four double bedroom Victorian house. The ground floor boasts a large reception, an impressive period fire place and French doors leading onto a rear garden.

The Property is within walking distance to Loughborough Junction which will get you into the heart of London within 10-15 minutes as well as the many bus routes serving the area. Ruskin Park and Denmark Hill Overground/BR are also within walking distance.

Property Ref: HNH250011

Share:

Similar Properties

Cambria Road, London, SE5

4 Bedroom End of Terrace House | Fixed Price £975,000

Herne Hill, London, SE24

3 Bedroom Terraced House | Guide Price £890,000

Three-bedroom family home near North Dulwich Triangle with kitchen/living room, flexible second reception room, off-stre...

Eastlake Road, London, SE5

2 Bedroom Apartment | Guide Price £550,000

This charming two bedroom period garden flat is adorned with character and bespoke charm set in the vibrant Camberwell c...

Acland Crescent, London, SE5

3 Bedroom Semi-Detached House | £1,300,000

Three bedroom semi on quiet, tree-lined road in top school catchment. Spacious layout, large garage with off street park...

Railton Road, London, SE24

4 Bedroom Terraced House | Fixed Price £1,450,000

Stunning new four-bed, three-bath home in Poet’s Corner. Modern design, private garden, luxury kitchen, great transport,...

Brantwood Road, London, SE24

4 Bedroom Detached House | Fixed Price £1,500,000

Petermans (London)

London, SE24 9NE

020 7733 5454

How much is your home worth?

Use our short form to request a valuation of your property.

Request a Valuation

Mortgage Calculator

Amount Borrowed: £
Total Amount Repayable: £
Total Monthly Payment: £
©2026 The Guild of Property Professionals. All rights reserved. Terms and Conditions | Privacy Policy | Cookie Policy | Complaints Policy | Members Login
The Guild of Property Professionals Trading Address: 121 Park Lane, London W1K 7AG. GPEA Limited. Registered in England & Wales.  Company No: 02819824.  Registered Office Address: 2 St. Stephen's Court, St. Stephen's Road, Bournemouth, Dorset, England, BH2 6LA.  VAT Registration No: 576 8795 61
Book a Property Valuation Update Cookies Preferences