High Street, Mablethorpe

£299,950
SSTC
This property listing is now SSTC

4 Bedroom Detached House for sale in Mablethorpe

4 1
  • EPC Ratings - C/D
  • Work/Live Opportunity
  • Parking to the rear
  • Seaside Location/East Coast
  • Council Tax Band - A

Location The property is prominently located on Mablethorpe's High Street, being on the left hand side as you enter the town centre, located adjacent to Heron Foods Supermarket, the Coop and Lidi, where there is ample car parking space available. Additionally, the property is located adjacent to Mablethorpe's popular market and within a few minutes of the sandy beaches that Mablethorpe has to offer, making it an excellent business location.  

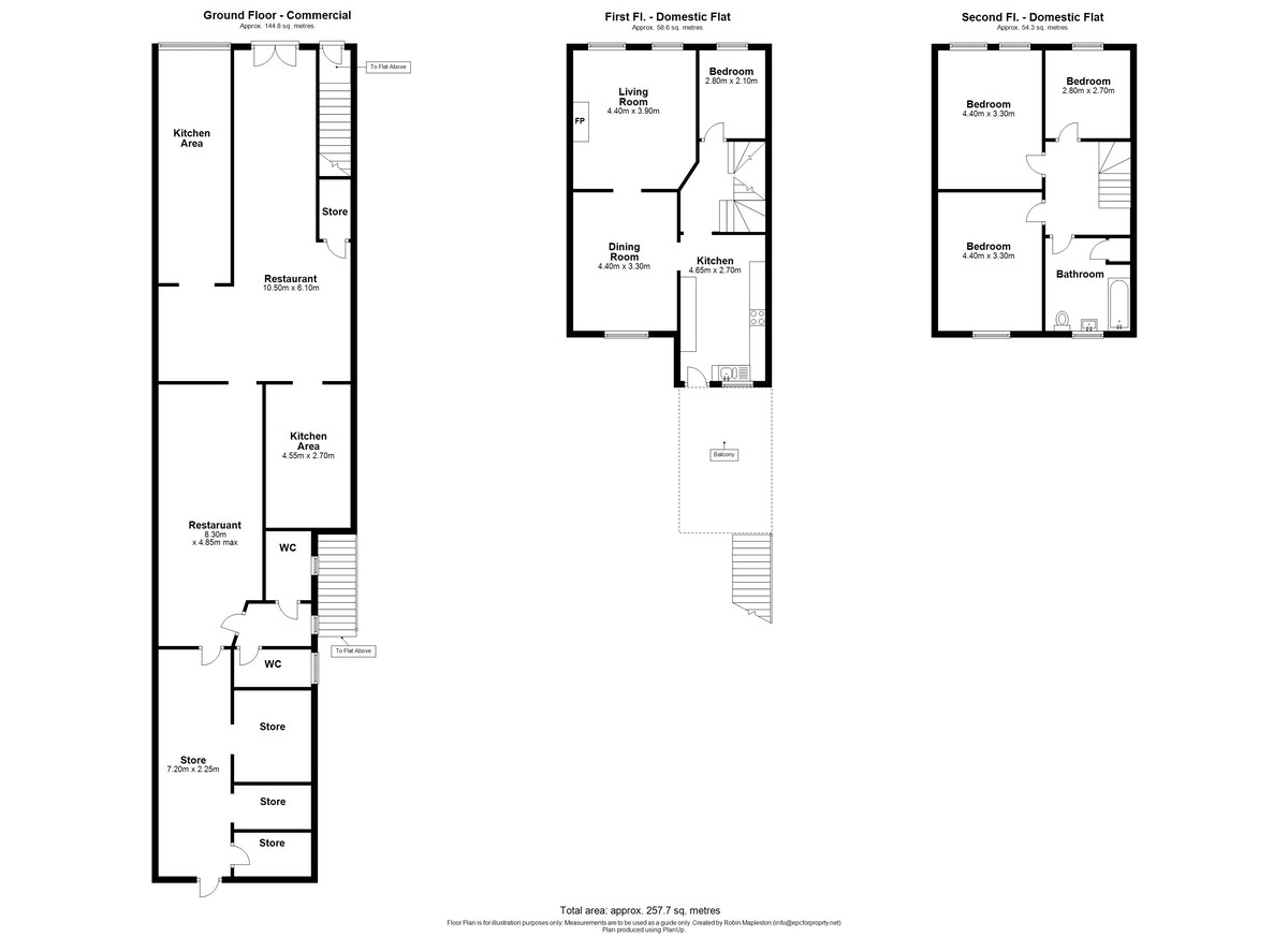
Description Thriving Fish & Chip Shop Restaurant with Living Accommodation above - We are pleased to offer this thriving business and freehold property for sale, prominently located within the popular tourist resort of Mablethorpe, which enjoys an excellent reputation with locals and tourists. Whilst the business has been within the same family ownership for many years, the accommodation is well-presented and the business accommodation has been recently refurbished throughout. The ground floor accommodation is self-contained comprising a fish and chip restaurant/takeaway facility with ancillary kitchens, preparation rooms and store rooms, offering seating for approximately 45 diners. The self-contained living accommodation at first and second floor is well-presented comprising two reception rooms, a fitted kitchen, four bedrooms and a bathroom/WC combined. There is also parking space to the rear for two vehicles. It is possible that the living accommodation could be separated from the business accommodation given that each element is separately serviced/self-contained. Being located on Mablethorpe's High Street, the property occupies a prominent position, adjacent to many national retailers such as Coop, Lidi and Heron, yet is just a few minutes walk from the expansive sandy beaches that Mablethorpe has to offer. This rare opportunity would ideally suit those looking for a change in lifestyle.  

ACCOMMODATION The ground floor business premises comprise an open-plan retail area, fully equipped with a range of excellent frying ranges and food warmers together with seating for approximately 45 diners. In addition, there is a dedicated kitchen, once again, fully equipped to a catering standard and there is also a further store/preparation area and additional storage areas offering refrigeration and racking for stock.

Accessed from the dining area are male and female customer WCs which are disabled access compliant. The floor area at ground level extends to 138 sq.m (1,485 sq.ft).

The living accommodation has separate access to the front and rear (where there are two car parking spaces) and comprises a living room (4m x 4.4m), dining room (3.3m x 4.3m), fitted kitchen (2.7m x 4.6m) and fourth bedroom (2m x 2.8m). At second floor level, there are three further bedrooms (2.7m x 3.2m, 3.2m x 4.4m and 3.2m x 4.2m) together with a bathroom/WC combined. The living accommodation has the benefit of gas central heating and uPVC double glazing throughout.  

SERVICES Both the shop and the living accommodation have a shared water supply but are separately serviced with gas and electricity. The ground floor premises and the upper floor living accommodation each have independent gas fired central heating systems.

EPC Ratings:
Commercial - C(54)
Domestic - D(56) 

COUNCIL TAX & BUSINESS RATES Council Tax Band - A

Business Rateable Value - £7,200

Small Business Multiplier (2023/2024) 49.9p in the £.

The property qualifies for Small Business Rates Relief, depending on individual circumstances.  

VAT The Vendor has confirmed that VAT is not chargeable in addition to the purchase price.  

OTHER Further information regarding turnover and trading records associated with the business are available to interested parties once a viewing has taken place.  

Property Ref: 58704_102125029186

Share:

Similar Properties

Doddington Road, Lincoln

3 Bedroom Detached House | £299,000

Situated in a sought-after non-estate location to the south of the Cathedral City of Lincoln, this spacious three-bedroo...

Lodge Lane, Nettleham, Lincoln

3 Bedroom Detached Bungalow | Offers in excess of £295,000

A non-estate detached bungalow situated within the sought after village of Nettleham and being within close proximity of...

Bentley Drive, Bracebridge Heath, Lincoln

3 Bedroom Detached Bungalow | £295,000

spacious and extended detached bungalow situated in a pleasant corner position within the popular village of Bracebridge...

Winchester Drive, Washingborough

4 Bedroom Detached Bungalow | Offers in excess of £300,000

Situated in the popular village of Washingborough, a fully refurbished four bedroom detached bungalow with spacious acco...

Cecil Mews, Lincoln

4 Bedroom End of Terrace House | £300,000

This is a three/four bedroom, extended, end of terrace town house situated in this quiet cul-de-sac position, just off C...

Lime Grove, Bardney

4 Bedroom Detached House | £300,000

Open Afternoon – Thursday 9th October, 1:30pm–5pm! No appointment needed – visit Lime Grove in Bardney and explore the f...

Mundys (Lincoln)

29 Silver Street, Lincoln, Lincolnshire, LN2 1AS

01522 510044

How much is your home worth?

Use our short form to request a valuation of your property.

Request a Valuation

Mortgage Calculator

Amount Borrowed: £
Total Amount Repayable: £
Total Monthly Payment: £
©2025 The Guild of Property Professionals. All rights reserved. Terms and Conditions | Privacy Policy | Cookie Policy | Complaints Policy | Members Login
The Guild of Property Professionals Trading Address: 121 Park Lane, London W1K 7AG. GPEA Limited. Registered in England & Wales.  Company No: 02819824.  Registered Office Address: 2 St. Stephen's Court, St. Stephen's Road, Bournemouth, Dorset, England, BH2 6LA.  VAT Registration No: 576 8795 61
Book a Property Valuation Update Cookies Preferences