2a The Brambles, Magherafelt

£225,000

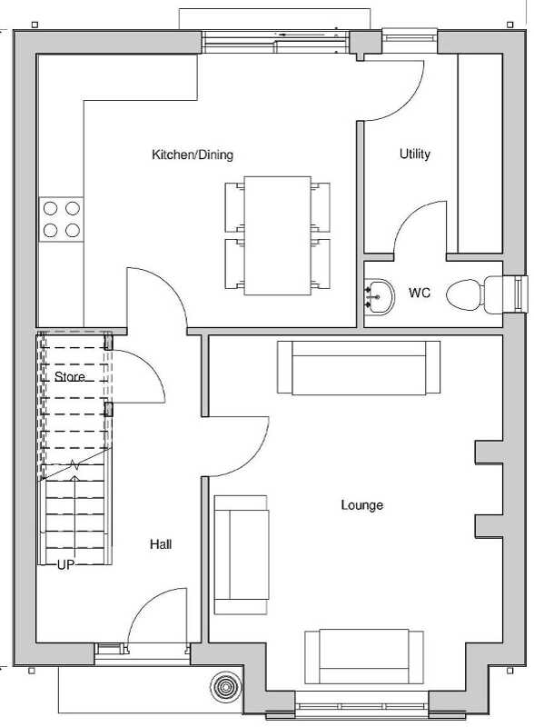
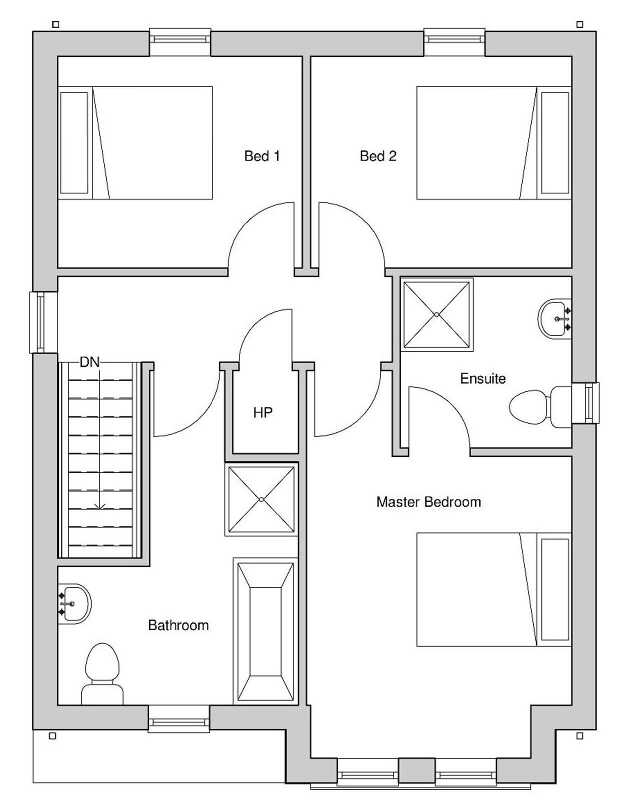
3 Bedroom Detached House for sale in Magherafelt

1 3 2
  • Beautifully Designed Three Bedroom Detached Family Home
  • New Build with Excellent Turn Key Specification
  • Accommodation Includes: Entrance Hallway, Lounge, Kitchen/Dining, Utility Room, Three Bedrooms, Master En-Suite, Family Bathroom & Downstairs Wc
  • Oil Fired Central Heating
  • Double Glazed PVC Windows
  • Parking to the Front of House Finished with Tarmacadem
  • Great Location only a Short Stroll into the Town & Schools

SpecificationA comprehensive, modern turnkey specification using the very best in terms of quality products and stylish finishes.Kitchen & UtilityQuality units with a choice of door colour, handle and engineered work tops from standard range
Integrated appliances to include electric hob & oven, extractor hood, dishwasher and fridge/freezerBathroom, En-suite and WcContemporary white sanitary ware with chrome fittings
Shower pods in the bathroom & en-suite
Thermostatically controlled showers in the bathroom & en-suiteFloor Coverings and TilingCeramic tiled floor to kitchen/dining areas, entrance hallway, bathroom, en-suite &, wc
Splash back tiling around bath and above sinks in en-suite, bathroom and wc where possible
Laminate wood floor to lounge
Carpets to bedrooms, stairs and landings Internal FeaturesInternal décor walls and ceilings paintedWood burning stove to loungeMains supply smoke detectorsLow energy lightingSkirting and architraves paintedTimber staircase paintedPainted internal doors with quality ironmongeryOil fired central heating systemHigh thermal InsulationExternal FeaturesRear gardens graded and seeded
Surfaced driveway in Tarmacadem Double glazed PVC windows with lockable system
Concrete interlocking roof tiles
PVC fascia and guttering
Composite front doors
Boundary fencing where applicable
External lighting to front and rear doors
Supply allowed for car charging point (to be installed by the purchaser)
Please note specification is subject to change and all images are for illustration purposes only.

Property Ref: 11632781_848423

Share:

Similar Properties

33 Tobermore Road, Desertmartin, Magherafelt

4 Bedroom Detached Bungalow | Offers in excess of £219,950

23 Long Meadow, Portglenone, Ballymena

3 Bedroom Semi-Detached House | Offers in excess of £209,950

House Type 3, Gorteade Park, Kilrea Road, Upperlands

3 Bedroom Detached House | £209,950

The Vardan, Crockmore View, Draperstown, Magherafelt

3 Bedroom Detached House | £229,950

17 Glovers Lane, Toomebridge

3 Bedroom Semi-Detached House | Offers in excess of £239,950

Paul Birt (Magherafelt)

Magherafelt, Magherafelt, Co. Londonderry, BT45 5DD

028 7930 1116

How much is your home worth?

Use our short form to request a valuation of your property.

Request a Valuation

Mortgage Calculator

Amount Borrowed: £
Total Amount Repayable: £
Total Monthly Payment: £
©2025 The Guild of Property Professionals. All rights reserved. Terms and Conditions | Privacy Policy | Cookie Policy | Complaints Policy | Members Login
The Guild of Property Professionals Trading Address: 121 Park Lane, London W1K 7AG. GPEA Limited. Registered in England & Wales.  Company No: 02819824.  Registered Office Address: 2 St. Stephen's Court, St. Stephen's Road, Bournemouth, Dorset, England, BH2 6LA.  VAT Registration No: 576 8795 61
Book a Property Valuation Update Cookies Preferences