Manor Close, Sherston

£550,000

3 Bedroom Detached House for sale in Malmesbury

1 3 1
  • Excellent detached house
  • Stunning upgraded interior and exterior
  • Stylish accommodation perfect for modern life
  • Large corner plot garden
  • Kitchen/dining room connecting to the garden
  • Living room with wood-burning stove
  • 3 bedrooms
  • Parking and garage
  • Sought-after Cotswold village

Description



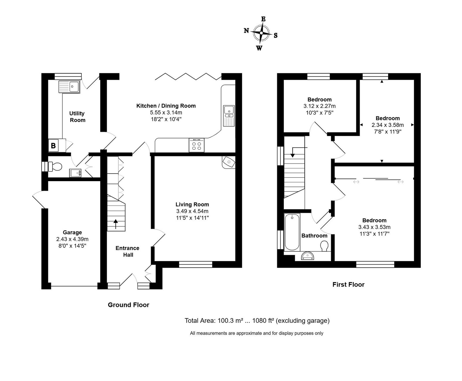
This detached modern home has undergone a stunning transformation over the last four years. With fantastic attention to detail, the current owners have made considerable improvements with the practicalities of everyday family-life at the forefront of the design. The standard of workmanship and finishes are excellent whilst the new layout configuration includes an open plan kitchen/dining room and improved bedroom accommodation, perfectly suited to modern day living. Other updates include a new oil-fired central heating system. Arranged over two floors, the accommodation extends to around 1,080 sq.ft. while externally the property enjoys an above average sized garden.


The ground floor opens to a spacious entrance hall with a front living room off complete with corner wood-burning stove. The entrance hall has excellent fitted storage beneath the stairs. Warmed by underfloor heating, the kitchen/dining room occupies the rear of the house with stylish Slide and Swing doors connecting the superb garden patio as an extension of the interior creating fashionable inside-outside living. The kitchen is fitted with curved gloss units and integrated oven, microwave, dishwasher and induction hob. Adjoining the kitchen there is a generous utility room with rear access and a WC off. Upstairs, there are three bedrooms. The main bedroom has ample fitted wardrobes and the updated bathroom has Jack & Jill style access to the principal suite. There is potential to extend the first floor over the garage as many properties have done so within the close.


Occupying a corner plot, the property’s garden is of an excellent size and has been landscaped with a lawn, established shrub borders and seating terraces thoughtfully placed to enjoy the sun. There is private off-road parking at the front as well as a garage.



Situation


The beautiful, ancient and much sought after village of Sherston with its broad High Street and historic stone houses is set in an Area of Outstanding Natural Beauty conveniently located on the edge of the Cotswolds. Sherston has a thriving community and offers many facilities, including a church, popular primary school, doctors surgery, Co-op shop and post office, coffee shops, hairdresser, Indian restaurant, garden centre and the highly regarded 16th century Rattlebone Inn, with its excellent food and friendly atmosphere. The facilities and amenities in Sherston more than adequately provide for everyday need with a whole host of societies and clubs meeting on a regular basis offering entertainment and social events for young and old alike. Schooling locally is second to none, with very good state and independent schools providing transport to and from the village on a daily basis. Close by are the market towns of Malmesbury and Tetbury which are both approximately 5 miles away. Malmesbury is reputed to be the oldest Borough in the country dating back to the 11th Century. Both towns offer a wider range of shops, services, schooling and leisure facilities. There are main line stations to London-Paddington at Kemble (14 miles) and Chippenham (12 miles) whilst Junctions 17 & 18 of the M4 are both within 15 minutes' drive providing convenient access to Bath, Bristol and Swindon.

Additional Information


The property is Freehold with oil-fired central heating, mains drainage, water and electricity. The property is located within the Cotswold Area of Outstanding Natural Beauty. Superfast broadband is available. Information taken from the Ofcom mobile and broadband checker website, please check the website for more information and mobile coverage. Wiltshire Council Tax Band D.

Important Information

  • This is a Freehold property.
  • This Council Tax band for this property is: D

Property Ref: 2775_1279363

Share:

Similar Properties

Magdalen Road, Tetbury

4 Bedroom Semi-Detached House | £550,000

Situated within a popular no-through road close to amenities, a semi-detached family-sized home with light-filled living...

Pike Cottages, Tetbury

2 Bedroom Detached House | £525,000

Located 1 mile from the town centre, this detached former tollhouse offers well-proportioned 2 bedroom accommodation wit...

The Street, Hullavington

3 Bedroom Detached House | £505,000

Situated in the heart of this village community close to its amenities, a charming DETACHED period cottage which has bee...

High Street, Sherston

3 Bedroom Terraced House | £595,000

Situated in the highly sought-after High Street in Sherston within a moments walk of its many amenities, a delightful pe...

Easton Town, Sherston

3 Bedroom Semi-Detached House | £595,000

With an exceptional 300ft garden and private off-street parking, this Cotswold stone cottage is very deceptive offering...

Mermaid Court, Christian Malford

4 Bedroom Semi-Detached House | £595,000

Tucked away in the corner of a small exclusive village development comprising only 7 homes, this semi-detached house is...

James Pyle & Co (Sherston)

Swan Barton, Sherston, Wiltshire, SN16 0LJ

01666 840886

How much is your home worth?

Use our short form to request a valuation of your property.

Request a Valuation

Mortgage Calculator

Amount Borrowed: £
Total Amount Repayable: £
Total Monthly Payment: £
©2025 The Guild of Property Professionals. All rights reserved. Terms and Conditions | Privacy Policy | Cookie Policy | Complaints Policy | Members Login
The Guild of Property Professionals Trading Address: 121 Park Lane, London W1K 7AG. GPEA Limited. Registered in England & Wales.  Company No: 02819824.  Registered Office Address: 2 St. Stephen's Court, St. Stephen's Road, Bournemouth, Dorset, England, BH2 6LA.  VAT Registration No: 576 8795 61
Book a Property Valuation Update Cookies Preferences