Shropshire Street, Market Drayton, TF9

Offers in excess of
£725,000

6 Bedroom House for sale in Market Drayton

3 6 3
  • Authentic Georgian Architecture – High ceilings, original wide wooden floorboards, classic wooden panelling, and fireplaces in every room offer timeless period charm throughout the property.
  • Seven Bedrooms with Fireplaces – Spacious and full of character, each bedroom features its own fireplace, with highlights including exposed beams, garden views, and a rare servants' staircase.
  • Elegant Reception Spaces – The living room features a dramatic floor-to-ceiling window, while the drawing and dining rooms include alcoves, built-in bookshelves, and ornate fireplaces.
  • Private, Gated Grounds – An expansive garden with two patio areas, with a two-bay car port including electric car charging point and a long driveway secured with electric gates provides

An exquisite Georgian character residence set in the heart of Market Drayton, offering grand proportions, rich period detailing, and exceptional versatility across three floors plus a basement, coach house, and extensive gardens.

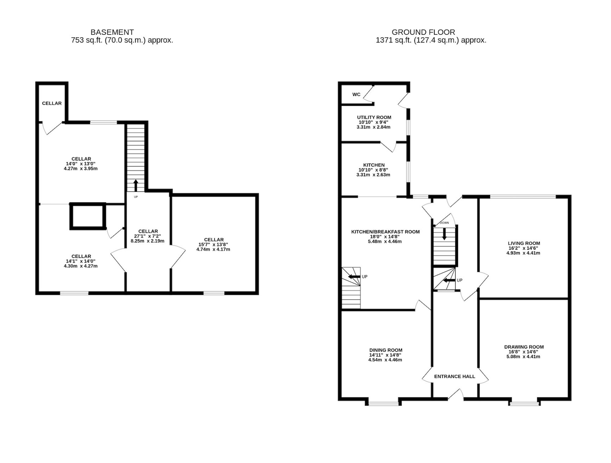
From the moment you step inside, the charm of this historic home is undeniable. The entrance hall is a statement in itself. A wide, welcoming corridor featuring original wide-plank wooden floorboards, high ceilings, and classic Georgian wooden panelling. A beautifully preserved stained glass window separates two internal corridors, serving as a striking architectural feature that adds colour, character, and period authenticity to the space.

The living room is a grand yet inviting space, dominated by a spectacular floor-to-ceiling window that spans the width of the room, flooding it with light and offering views of the grounds. A period fireplace adds warmth and charm, one of many found throughout the home. Equally impressive is the drawing room, where two charming alcoves provide both visual interest and storage, complemented by built-in bookshelves stretching across two walls. Another original fireplace stands as a centrepiece, preserving the home's elegant heritage. The dining room is designed for entertaining, with ample space for a large table and guests. A beautifully detailed fireplace lends the room a sense of formality and timeless character. The kitchen combines generous proportions with practicality, featuring extensive cabinetry and counter space, an integrated fridge and dishwasher, and room for a range-style oven and hob. A feature fireplace here adds a rare and traditional touch not often seen in modern kitchens.

The adjacent utility room adds further convenience, housing an additional integrated fridge and freezer and space for a washing machine. A discreet ground-floor WC completes the living accommodation on this level.

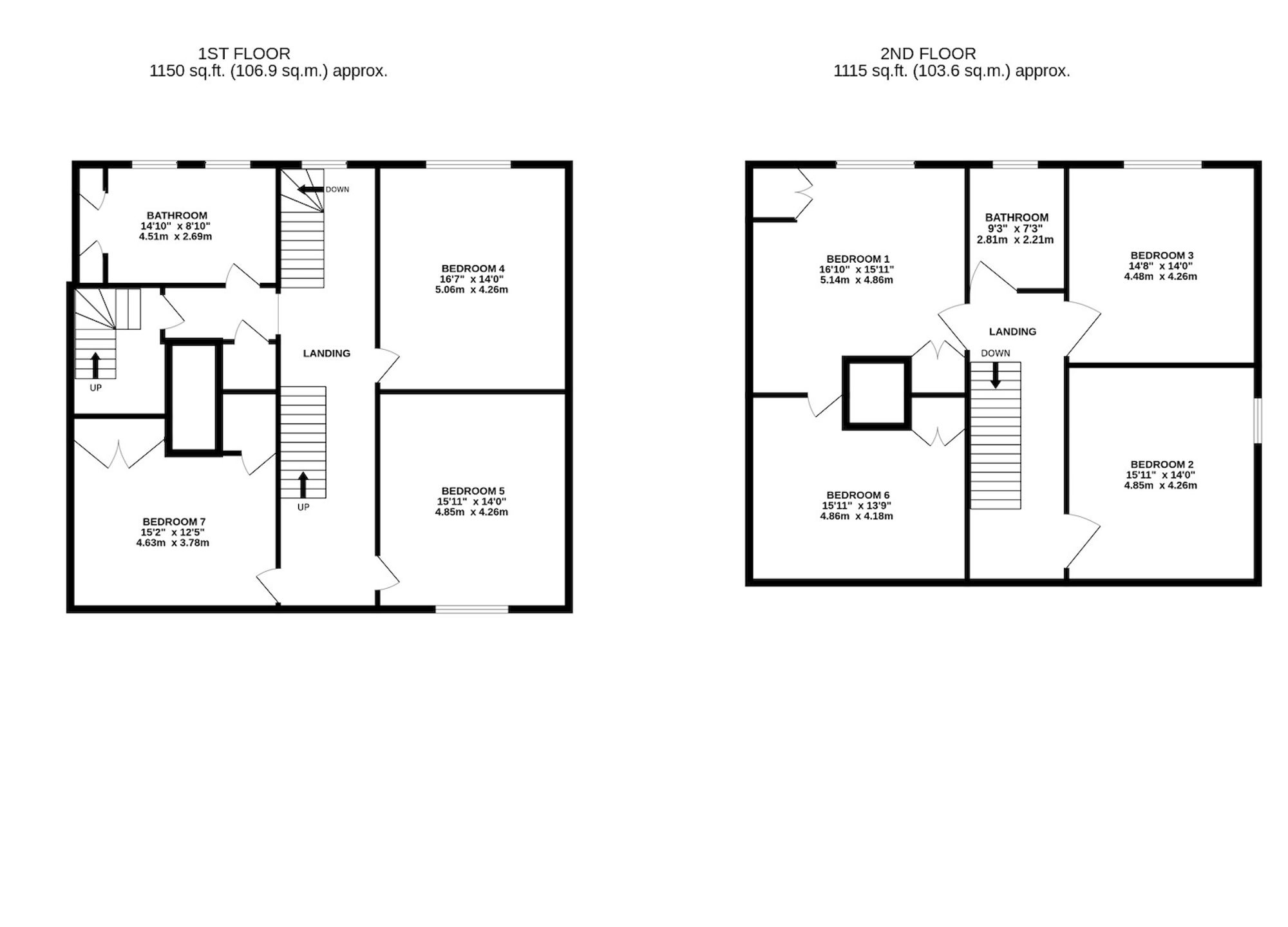
Upstairs, the home continues to impress with seven bedrooms, each offering its own unique character and each featuring its own fireplace, further emphasising the Georgian elegance woven into every room. The principal bedroom one is a large, elegant space with twin built-in wardrobes and a rare original servants’ staircase leading down to the kitchen an authentic nod to the home’s history. Bedroom two is a generous double, enhanced by its own feature fireplace and exposed wooden ceiling beams, adding warmth and texture. Bedroom three enjoys a tranquil rear garden view and includes a fireplace that adds further comfort and charm. Bedroom four features a beautiful marble and wood fireplace beneath a large window that fills the room with light. Bedroom five also offers a large window and its own period fireplace, while bedroom six slightly smaller and located just off the main bedroom makes an ideal office, nursery, or dressing room, and includes its own character fireplace as well. Bedroom seven, with two built-in storage cupboards and a traditional fireplace, completes the upper-floor accommodation.

There are two family bathrooms the first on the main floor offering a freestanding bath perfect for indulgent soaks, while the second, on the top floor, includes both a walk-in shower and a bath, providing flexibility for modern living.

The basement adds significant potential, currently divided into four generous rooms, ideal for use as storage, a wine cellar, workshop, or future conversion into additional living space, gym, or cinema room.

Outside, the property is framed by mature gardens and thoughtful landscaping. A detached coach house with an adjoining storage area is perfect for tools, garden equipment, or further development. It also includes a two-bay carport and an electric car charging point, offering both traditional charm and modern convenience.

The extensive rear garden features two paved patios, ideal for sunbathing, outdoor dining, or entertaining. A long private driveway perfect for multiple vehicles leads from the electric gated entrance, ensuring both privacy and security.

This remarkable Georgian home is a rare opportunity to acquire a piece of architectural history beautifully preserved, generously proportioned, and ready to be cherished for generations to come.

Location

Market Drayton is a market town in north Shropshire, England, close to the Welsh and Staffordshire border and located along the River Tern, between Shrewsbury and Stoke-on-Trent. The Shropshire Union Canal and Regional Cycle Route 75 pass through the town whilst the A53 road by-passes the town providing access to links further afield. Market Drayton possesses a rich history with some traditions being continued today, such as the weekly Wednesday markets having being chartered by King Henry III in 1245. There are a number of pubs, restaurants and shops including two supermarkets within this market town, making amenities easily accessible.

Important Information

  • This is a Freehold property.
  • This Council Tax band for this property is: E

Property Ref: 536ca3c9-0e49-4788-aee1-6d6f52c7e7c8

Share:

Similar Properties

Pixley Lane, Hinstock, TF9

4 Bedroom House | Offers in excess of £725,000

Gather your cavalry & march quickly to view your dream country residence at Pixley Cottages, a tranquil paradise at the...

Lakesedge, Stone, ST15

5 Bedroom Detached House | Offers in excess of £700,000

Step into the spotlight with this dazzling 5 bedroom, 3 bathroom detached showpiece, a true jewel that sparkles with con...

Coppenhall, Stafford, ST18

4 Bedroom Detached House | £700,000

Step into your own fairytale and reign supreme at Castle View Cottage, a home fit for kings, queens and anyone seeking a...

Charnes Road, Ashley, TF9

4 Bedroom Detached House | Offers in excess of £750,000

Captivating four bed detached house in picturesque Ashley village. Luxury galore with landscaped gardens, grand entrance...

Eccleshall Road, Loggerheads, TF9

5 Bedroom Detached House | £750,000

Richmond Close, Weston, CW2

6 Bedroom House | Offers in region of £750,000

Gated 6-bed home in Wychwood Park. Elegant & contemporary. Expansive kitchen, open plan living, 5 bedrooms on 1st floor,...

James Du Pavey Estate Agents (Eccleshall)

Eccleshall, Staffordshire, ST21 6BH

01785 851886

How much is your home worth?

Use our short form to request a valuation of your property.

Request a Valuation

Mortgage Calculator

Amount Borrowed: £
Total Amount Repayable: £
Total Monthly Payment: £
©2026 The Guild of Property Professionals. All rights reserved. Terms and Conditions | Privacy Policy | Cookie Policy | Complaints Policy | Members Login
The Guild of Property Professionals Trading Address: 121 Park Lane, London W1K 7AG. GPEA Limited. Registered in England & Wales.  Company No: 02819824.  Registered Office Address: 2 St. Stephen's Court, St. Stephen's Road, Bournemouth, Dorset, England, BH2 6LA.  VAT Registration No: 576 8795 61
Book a Property Valuation Update Cookies Preferences