Waltham Road Thorpe Arnold

Asking Price
£1,150,000

5 Bedroom Detached House for sale in Melton Mowbray

3 5 3
  • Individual Detached Home
  • Five Bedrooms
  • Two Luxury En-Suites and Family Bathroom
  • Three Reception Rooms
  • Fabulous Living Dining Kitchen
  • Utility Room and Cloaks WC
  • Beautifully Landscaped Gardens
  • Energy Rating C
  • Council Tax Band F
  • Tenure Freehold

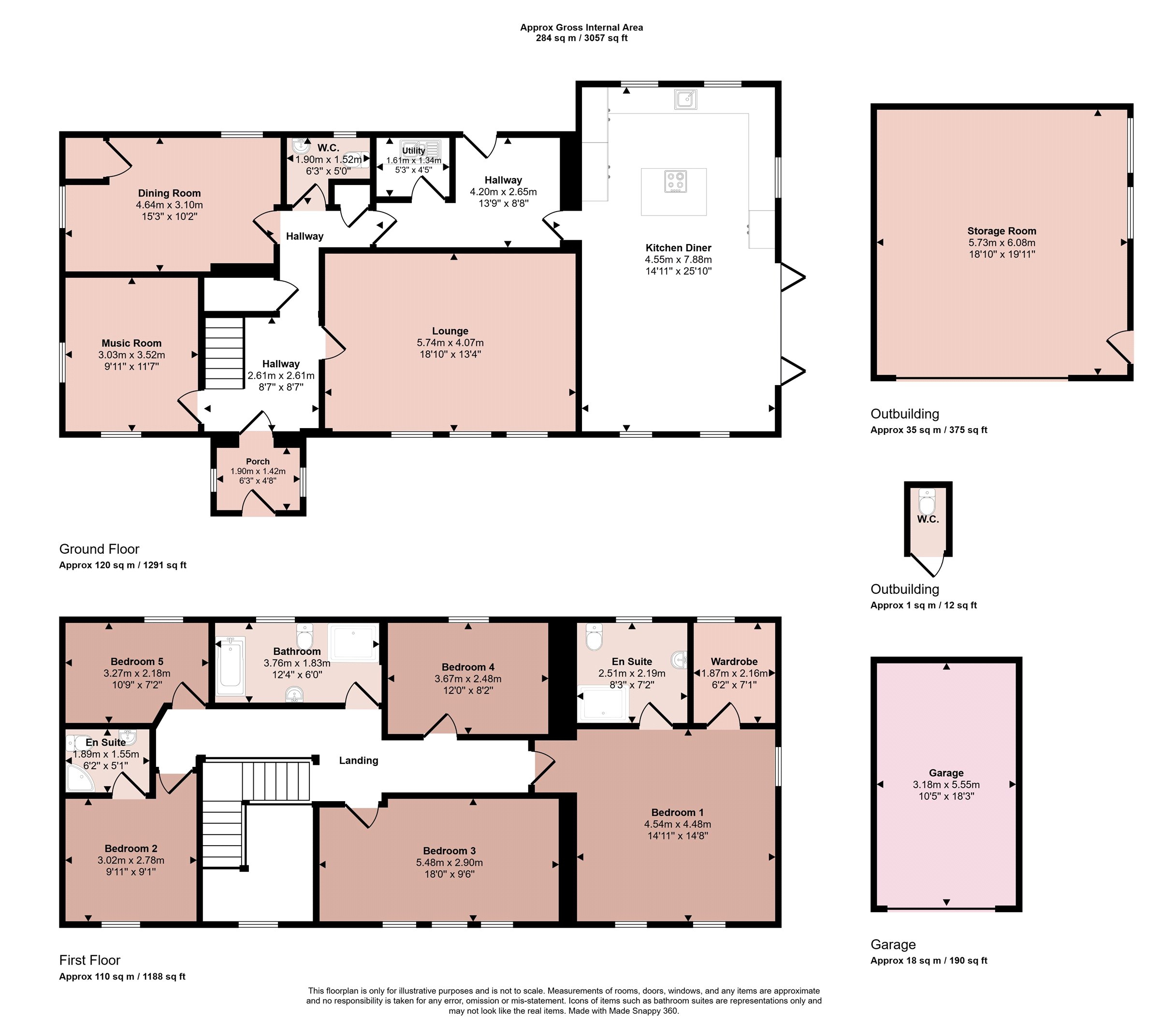
De Bosco house is a rare offering to the open market, a quintessential English country home offering a high quality and beautifully presented accommodation. The entrance to the property is most impressive with a sweeping return staircase with views to a galleried landing and double height ceiling. On the ground floor there are three reception rooms in addition to a large, refitted living/dining kitchen, all with tall Georgian style sash windows. The kitchen has recently been refitted with family living and entertaining in mind with a central island, integrated appliances and wide bi-folding doors opening on to an external patio terrace. Completing the ground floor is a rear hallway, utility and cloaks WC. On the first floor a central landing leads off to five impressive bedrooms with the principal bedroom having its own luxury refitted shower room and dressing room. There is also a second bedroom with luxury en-suite and a refitted luxury family bathroom serving the remaining of the rooms. Outside, the property is located off a private driveway with triple garaging and beautifully designed and landscaped manicured gardens which incorporates a large wrap around paved terrace, seating area with fire pit and copse. The property has been recently and sympathetically upgraded and oozes style and sophistication combining character features with modern fittings. The property has an idyllic location overlooking the village church and rolling countryside to the front aspect and is offered to the market with no chain.

Important Information

  • This is a Freehold property.
  • This Council Tax band for this property is: F
  • EPC Rating is C

Property Ref: BNT_BNT250700

Share:

Similar Properties

Station Road Cropston

4 Bedroom Detached House | Asking Price £1,150,000

Oak Lodge is a fabulous custom built home located on the regarded Station Road in Cropston. Built in 2002 by Pearson Pro...

Leicester Road Markfield

4 Bedroom Detached House | Guide Price £1,000,000

A stunning, 1711 originally built, four bedroomed residence being skillfully extended and luxuriously appointed. With no...

Main Street Pickwell

5 Bedroom Detached House | Guide Price £1,000,000

A most appealing, period residence having been significantly extended and modernised to the highest standard and offerin...

Main Street Newtown Linford

5 Bedroom Detached House | Guide Price £1,200,000

A stunning five bedroomed, individually styled detached residence lying in magnificent grounds extending to approximatel...

Station Lane Kirby Bellars

6 Bedroom Detached Bungalow | Guide Price £1,250,000

A rare offering to the market and offering substantial versatility, Lakeview House is set privately at the end of an imp...

The Ridings Rothley

5 Bedroom Detached House | Guide Price £1,250,000

A rare opportunity to acquire an original Arts & Craft architect designed home originally commissioned as part of the Ro...

Bentons (Melton Mowbray)

47 Nottingham Street, Melton Mowbray, Leicestershire, LE13 1NN

01664 563892

How much is your home worth?

Use our short form to request a valuation of your property.

Request a Valuation

Mortgage Calculator

Amount Borrowed: £
Total Amount Repayable: £
Total Monthly Payment: £
©2026 The Guild of Property Professionals. All rights reserved. Terms and Conditions | Privacy Policy | Cookie Policy | Complaints Policy | Members Login
The Guild of Property Professionals Trading Address: 121 Park Lane, London W1K 7AG. GPEA Limited. Registered in England & Wales.  Company No: 02819824.  Registered Office Address: 2 St. Stephen's Court, St. Stephen's Road, Bournemouth, Dorset, England, BH2 6LA.  VAT Registration No: 576 8795 61
Book a Property Valuation Update Cookies Preferences