Eastern Road, Willaston, CW5

£185,000
SSTC
This property listing is now SSTC

2 Bedroom Terraced House for sale in Nantwich

2 2 1
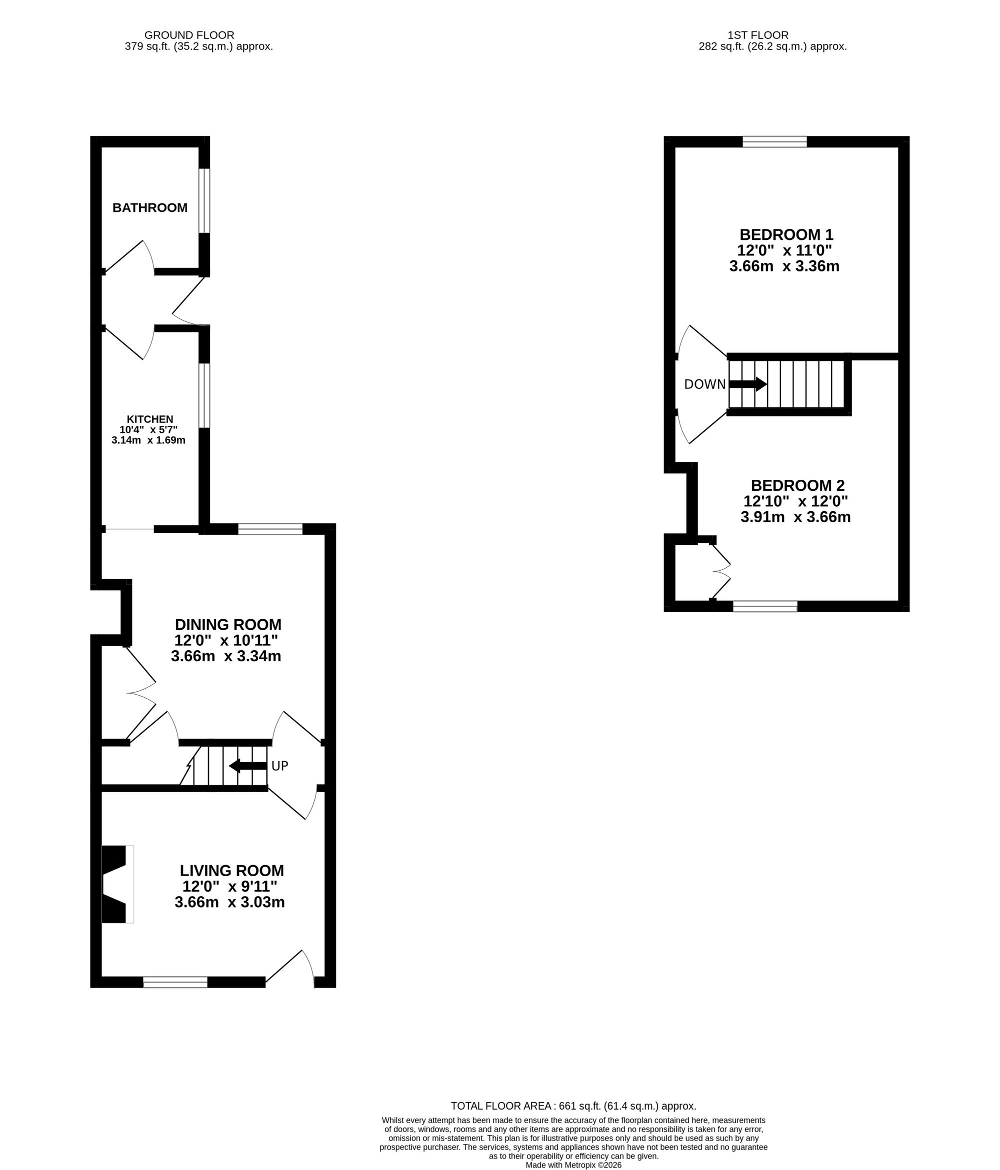
  • Two well-proportioned double bedrooms.
  • Cosy living room with fireplace and large window.
  • Separate dining room with excellent built-in and under-stairs storage.
  • Ground floor bathroom with bath and overhead shower.
  • Patio rear garden ideal for outdoor seating, plus on-road parking to the front.

This charming two-bedroom terraced home in the popular village of Willaston offers well-proportioned living space with a warm and welcoming feel throughout.

The cosy living room features a characterful fireplace and a large front-facing window, allowing plenty of natural light to flood the room and create an inviting space to relax. To the rear, the dining room is of a similar size and comfortably accommodates a dining table, making it ideal for entertaining and socialising. Multiple storage cabinets, including valuable under-stairs storage, provide excellent solutions for keeping the home clutter-free.

The kitchen is narrow yet well designed and fully functional, offering ample worktop space and room for essential appliances including an oven, fridge/freezer, and washing machine. The main bathroom is conveniently located on the ground floor and includes a built-in bath with an overhead shower.

Upstairs, bedroom one is a generous double room with a window overlooking the rear of the property, providing a peaceful retreat. Bedroom two is also well sized, with space for a double bed and the added benefit of a built-in wardrobe.

Externally, the rear garden features a paved patio area, perfect for enjoying sunny days, outdoor dining, and socialising with friends and family. To the front of the property, there is convenient on-road parking directly in front of the house.

Location:

The quaint Cheshire village of Willaston offers a range of handy and convenient amenities while the larger market town of Nantwich is just a short drive away and boasts a plethora of independent businesses including cafes, restaurants, pubs, bars and boutiques, as well as larger supermarkets and highly accredited primary and secondary schools. Those needing to commute will have little concern thanks to the conveniently accessible A500 and M6 road links while Crewe railway station offers direct links to larger cities all across the country.

Important Information

  • This is a Freehold property.
  • This Council Tax band for this property is: B
  • EPC Rating is D

Property Ref: 290275d0-0e07-402b-b48b-8c482bfd42b1

Share:

Similar Properties

High Street, Alsagers Bank, ST7

2 Bedroom Terraced House | Offers in excess of £185,000

Charming 2-bed terraced home in Alsagers Bank with original features, countryside views & parking. Well-presented with s...

John Robinson Place, Crewe, CW1

2 Bedroom End of Terrace House | £180,000

Modern two-bedroom semi in Crewe with stylish living room, integrated kitchen, garden, and parking. Ideal for first-time...

Alton Street, Crewe, CW2

3 Bedroom Terraced House | Offers in region of £170,000

Chain free three-bedroom terraced home in Crewe. Spacious, flexible layout, kitchen, utility, garden, scope to update. I...

Haydn Jones Drive, Nantwich, CW5

3 Bedroom Mews House | £190,000

Charming 3-bed Mews House in esteemed development near schools & Nantwich town. Stylish kitchen, spacious living room, g...

Lords Mill Road, Shavington, CW2

2 Bedroom Semi-Detached Bungalow | £190,000

Whittaker Close, Crewe, CW1

2 Bedroom Terraced House | £190,000

Modern two-bedroom semi-detached home with en suite, family bathroom, spacious parking, stylish kitchen/diner, rear gard...

James Du Pavey Estate Agents (Nantwich)

52 Pillory St, Nantwich, Cheshire, CW5 5BG

01270 445678

How much is your home worth?

Use our short form to request a valuation of your property.

Request a Valuation

Mortgage Calculator

Amount Borrowed: £
Total Amount Repayable: £
Total Monthly Payment: £
©2026 The Guild of Property Professionals. All rights reserved. Terms and Conditions | Privacy Policy | Cookie Policy | Complaints Policy | Members Login
The Guild of Property Professionals Trading Address: 121 Park Lane, London W1K 7AG. GPEA Limited. Registered in England & Wales.  Company No: 02819824.  Registered Office Address: 2 St. Stephen's Court, St. Stephen's Road, Bournemouth, Dorset, England, BH2 6LA.  VAT Registration No: 576 8795 61
Book a Property Valuation Update Cookies Preferences