Victoria Road, Newtownards

Offers in region of
£229,950
SSTC
This property listing is now SSTC

3 Bedroom Bungalow for sale in Newtownards

1 3 2

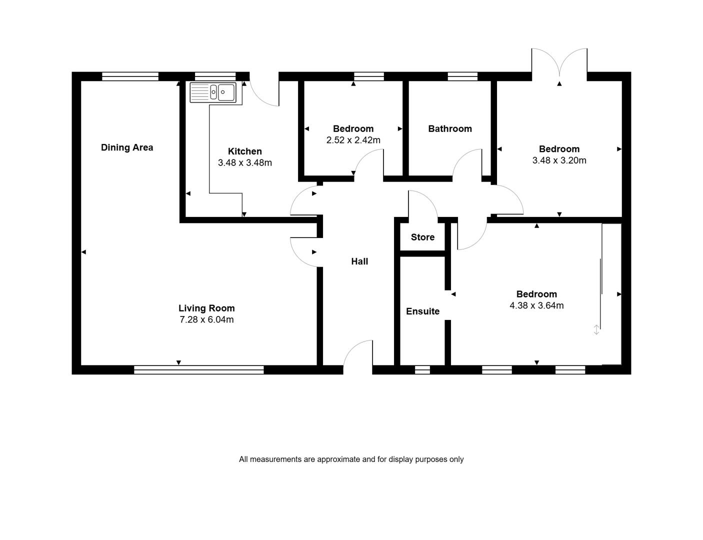
Here is an ideal opportunity to purchase an attractive detached bungalow with no onward chain. The accommodation is bright, spacious and flexible comprising L-shaped living room which is open plan to a dining area with the living room having an attractive carved mahogany fireplace and open fire (?). There is also a kitchen with a casual dining area, three bedrooms, including main bedroom with extensive range of built-in wardrobes and en suite shower room, as well as a bathroom with four piece suite to include bath and separate shower. Outside there are front gardens in lawns with flowerbeds in plants and shrubs, driveway in brick paviour and fully enclosed landscaped rear garden with extensive paved terrace and southerly aspect making it ideal for children at play, outdoor entertaining or enjoying the sun. Other benefits include Phoenix Gas heating, uPVC double glazed windows and detached garage. This property is conveniently positioned with easy access into Donaghadee's thriving town centre and its amenities which include shops, cafes, restaurants and primary schools. Newtownards has a variety of tourist attractions close by which include Scrabo Tower, Killynether Forest Park, Mount Stewart Gardens and Helen's Tower. Demand is anticipated to be high and from a wide range of prospective purchasers including first time buyers, young professionals, families, the retired and those looking to downsize.

As part of our obligations under the Money Laundering, Terrorist Financing and Transfer of Funds (Information on the Payer) Regulations 2017, all Estate Agents are required to verify the identity of purchasers involved in a property transaction.
To comply with these obligations, all purchasers will be required to complete Customer Due Diligence (AML) identity checks. These checks are carried out on our behalf by our trusted third-party provider, Thirdfort.
A charge will apply of ?20 + VAT per purchaser.

.Attractive Detached Bungalow with No Onward Chain
.Popular Residential Area with Easy Access to Newtownards
.L-Shaped Living Room with Attractive Mahogany Fireplace and Open Fire
.Living Room is Open Plan to Casual Dining Area
.Kitchen with Casual Dining Area
.Three Well Proportioned Bedrooms
.Main Bedroom with an En Suite Shower Room
.Bathroom with Four Piece Suite to Include Bath and Separate Shower
.Front Garden in Lawns with Flowerbeds in Plants and Shrubs
.Driveway in Brick Paviour
.Detached Garage
.Fully Enclosed Landscaped Rear Garden with Extensive Paved Terrace
. Raised Flowerbeds in Plants and Shrubs and Southerly Aspect
.Rear Garden is an Ideal Space for Children at Play
.In Close Proximity to Many Amenities
.Newtownards Has a Variety of Tourist Attractions Close by
.Demand Anticipated to be High
.Early Viewing Essential

Ground Floor -

Reception Hall - Laminate wood effect floor, cloakroom with storage, access to roofspace.

L-Shaped Living Room Open Plan To Dining Area - 13'4 x 7'10 - Attractive carved mahogany fireplace, granite inset and hearth, open fire (?), cornice ceiling, dado rail.

Dining Area - 13'4" x 7'10" - Dado rail, cornice ceiling, service hatch to kitchen.

Kitchen With Casual Dining Area - 11'5" x 9'5" - Range of high and low level Shaker style units, granite work surfaces, double bowl stainless steel sink unit with mixer tap, matching granite drainer, integrated Bosch four ring hob, tiled splashback, extractor fan above, integrated oven, integrated microwave, integrated plate warming drawer, space for fridge freezer, integrated dishwasher, glass display cabinets, fully tiled floor, part tiled walls, uPVC double glazed door to rear garden.

Bedroom One - 11'10 x 14'5 - Extensive range of built-in wardrobes with mirror fronted sliding doors, dado rail.

En Suite Shower Room - Three piece suite comprising shower cubicle, wash hand basin, mixer tap, storage beneath, low flush WC, fully tiled floor.

Bedroom Two - 11'5 x 10'5 - Laminate wood effect floor, uPVC double glazed French doors to rear garden.

Bedroom Three - 8'1 x 7'10 - Laminate wood effect floor.

Bathroom - Four piece suite comprising panelled bath with mixer tap, separate built-in fully tiled shower cubicle, wash hand basin with mixer tap, storage beneath, low flush WC, fully tiled floor, fully tiled walls, chrome heated towel rail, extractor fan.

Outside - Front garden in lawns, flowerbeds in plants and shrubs, driveway in brick paviour, parking leading to detached garage, fully enclosed landscaped rear garden with extensive paved terrace, raised flowerbeds in plants and shrubs and southerly aspect making it ideal for children at play, outdoor entertaining or enjoying the sun.

Offering the peace and quiet of a semi-rural town, perfectly balanced with an abundance of amenities and attractions, Newtownards is regarded as one of the prime places to live in Northern Ireland. Its close proximity to Belfast means it is perfect for the daily commuter who prefers the solace of a quieter setting for residency. Many attractive homes enjoy the appeal of unrivalled idyllic seaside or rolling countryside views.

Property Ref: 34301133

Share:

Similar Properties

98 Frances Street

Restaurant | Offers in region of £229,950

Located in the thriving town of Newtownards here is an excellent opportunity to let commercial premises with a variety o...

24 Ashbrooke

3 Bedroom Semi-Detached House | Offers in region of £229,950

Backing onto the Water Tower and with direct access here is an ideal opportunity to purchase an exceptional extended sem...

3 Rosepark Avenue

4 Bedroom Semi-Detached House | Offers in region of £229,950

Here is an ideal opportunity to purchase an attractive semi detached home situated in this extremely popular area with n...

Rivenwood, Newtownards

3 Bedroom Semi-Detached House | Offers in region of £234,950

Located in this extremely popular residential area here is an ideal opportunity to purchase a stylish recently construct...

9 Burr Point Cove

4 Bedroom Semi-Detached House | Offers in region of £244,950

Located in this extremely small coastal development here is an ideal opportunity to purchase a fantastic semi detached h...

Quarter Road, Cloughey, Newtownards

3 Bedroom Detached Bungalow | Offers in region of £249,950

Located in this extremely popular location here is an ideal opportunity to purchase an extended detached bungalow which...

John Minnis Estate Agents (Donaghadee)

Donaghadee, County Down, BT21 0AG

028 9188 8881

How much is your home worth?

Use our short form to request a valuation of your property.

Request a Valuation

Mortgage Calculator

Amount Borrowed: £
Total Amount Repayable: £
Total Monthly Payment: £
©2026 The Guild of Property Professionals. All rights reserved. Terms and Conditions | Privacy Policy | Cookie Policy | Complaints Policy | Members Login
The Guild of Property Professionals Trading Address: 121 Park Lane, London W1K 7AG. GPEA Limited. Registered in England & Wales.  Company No: 02819824.  Registered Office Address: 2 St. Stephen's Court, St. Stephen's Road, Bournemouth, Dorset, England, BH2 6LA.  VAT Registration No: 576 8795 61
Book a Property Valuation Update Cookies Preferences