Silver Street, Wellingborough, Northamptonshire, NN8

£525,000

2 Bedroom Commercial Property for sale in Northamptonshire

2

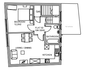
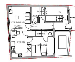
An attractive freehold investment opportunity presents itself in the form of this three storey building located in Wellingborough Town Centre and comprising of a ground floor commercial unit and two self contained apartments above.

The ground floor commercial unit is leased out and measures a total of 63.36 Sqm (671.2 sq ft)

A total rental for the property including the two apartments is in the region of £40,000 pa

Viewings and further information is available by contacting Mario Bartella.

Rateable value £7,300

• Freehold Investment
• Town Centre Location
• Commercial Ground Floor
• Two Self Contained Apartments
• Solar Panels
• Commercial Tenant

Important Information

  • This is a Freehold property.

Property Ref: NTS250320

Share:

Similar Properties

Abington Avenue, Northampton, Northamptonshire, NN1

8 Bedroom Terraced House | £495,000

A rare opportunity has arisen to purchase this established 8 bedroom, fully Licenced Guest House/HMO in the heart of Abi...

Main Street, Little Harrowden, Wellingborough, Northamptonshire, NN9

2 Bedroom Detached House | £460,000

Opportunity To Purchase This Beautifully Converted Methodist Chapel Built in 1882 Within The Sought After Village Of Lit...

Cub Close, Bugbrooke, Northampton, Northamptonshire, NN7

4 Bedroom Detached House | £435,000

Chelton Brown are pleased to bring to market this beautifully presented four-bedroom modern home Situated in the highly...

Kings Close, Northampton, Northamptonshire, NN4

4 Bedroom Detached House | £529,995

Chelton Brown is delighted to present this spacious four-bedroom detached family home, newly available to the market.Ide...

Swift Close, Grange Park, West Northamptonshire, NN4

5 Bedroom Detached House | £535,000

Chelton Brown is delighted to offer this incredibly spacious 5-bedroom, 3 bathroom detached home, new to the market.

Northampton Road, Earls Barton, Northampton, Northamptonshire, NN6

4 Bedroom Semi-Detached House | £575,000

Chelton Brown Proudly Present This Delightful Extended Four Double Bedroom, Three Bathroom, Three Reception Room Propert...

Chelton Brown (Northampton)

George Row, Northampton, Northamptonshire, NN1 1DF

01604 603433

How much is your home worth?

Use our short form to request a valuation of your property.

Request a Valuation

Mortgage Calculator

Amount Borrowed: £
Total Amount Repayable: £
Total Monthly Payment: £
©2026 The Guild of Property Professionals. All rights reserved. Terms and Conditions | Privacy Policy | Cookie Policy | Complaints Policy | Members Login
The Guild of Property Professionals Trading Address: 121 Park Lane, London W1K 7AG. GPEA Limited. Registered in England & Wales.  Company No: 02819824.  Registered Office Address: 2 St. Stephen's Court, St. Stephen's Road, Bournemouth, Dorset, England, BH2 6LA.  VAT Registration No: 576 8795 61
Book a Property Valuation Update Cookies Preferences