Goatham Lane Osbaston

Guide Price
£3,000,000

5 Bedroom Detached House for sale in Nuneaton

7 5 7
  • Exceptional Georgian Residence
  • Boasting Over 9,000 sqft of Accommodation
  • Five Bedroomed Home
  • Large Modern Leisure Complex Including Swimming Pool, Sauna, Steam & Bar
  • 12.5 Acres of Grounds
  • Large 6.2 Acre Paddock with Gallop
  • Energy Rating E
  • Council Tax Band H
  • Tenure Freehold
  • Range of Outbuildings Including Stabling and Workshops

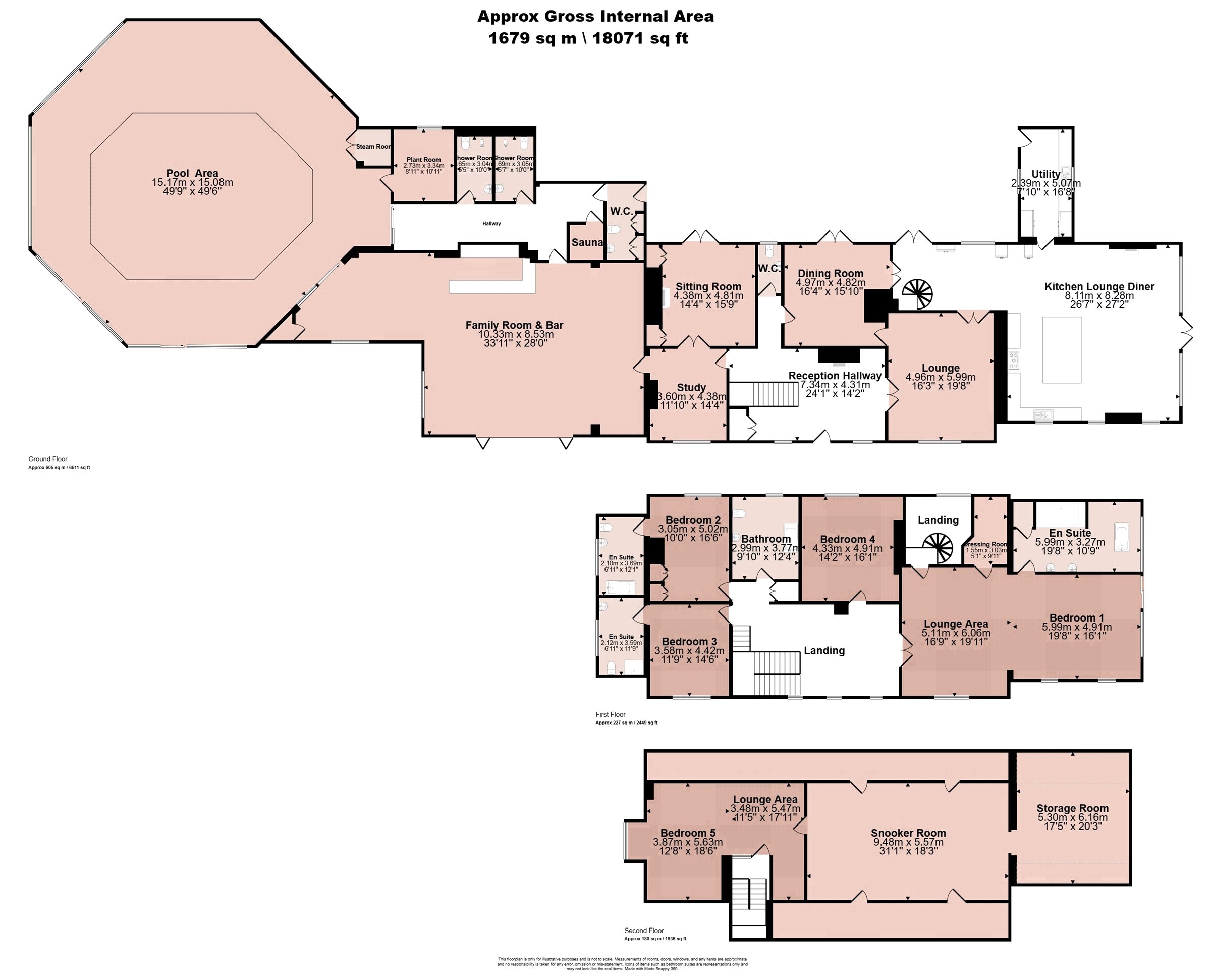
Fields Farm is an exquisite country residence set in 12.5 acres of beautiful mature grounds offering a lifestyle home to a family buyer. This Georgian farmhouse has been comprehensively extended and updated and boasts over 9,000 sqft of accommodation. There are a vast range of outbuildings which could be used for a variety of uses currently comprising stabling, gym, workshops and a most impressive helicopter hangar and landing pad. The property also has its own leisure complex with large octagonal swimming pool, sauna, steam room and changing rooms. In the main home there are a number of reception rooms as well as a fabulous living/dining kitchen and a recently built family room and bar. Upstairs there are five large bedrooms with a most impressive split-level principal bedroom suite consisting of bedroom, lounge area, en-suite and dressing room. In total there are seven shower rooms/bathrooms throughout the property and complementing the main home are tremendous grounds consisting of large formal gardens with two ponds, outdoor tennis lawn and a large 6.2 acre paddock with gallop. Fields Farm really does present the ideal opportunity for a forever family home and must be viewed to be fully appreciated.

Fields Farm is an exquisite country residence set in 12.5 acres of beautiful mature grounds offering a lifestyle home to a family buyer. This Georgian farmhouse has been comprehensively extended and updated and boasts over 9,000 sqft of accommodation. There are a vast range of outbuildings which could be used for a variety of uses currently comprising stabling, gym, workshops and a most impressive helicopter hangar and landing pad. The property also has its own leisure complex with large octagonal swimming pool, sauna, steam room and changing rooms. In the main home there are a number of reception rooms as well as a fabulous living/dining kitchen and a recently built family room and bar. Upstairs there are five large bedrooms with a most impressive split-level principal bedroom suite consisting of bedroom, lounge area, en-suite and dressing room. In total, there are seven shower rooms/bathrooms throughout the property and complementing the main home are tremendous grounds consisting of large formal gardens with two ponds, outdoor tennis lawn and a large 6.2 acre paddock with gallop. Fields Farm really does present the ideal opportunity for a forever family home and must be viewed to be fully appreciated.

Important Information

  • This is a Freehold property.
  • This Council Tax band for this property is: H
  • EPC Rating is E

Property Ref: BNT_BNT240258

Share:

Similar Properties

Polly Botts Lane Ulverscroft

5 Bedroom Detached House | Guide Price £2,500,000

Approached along an impressive tree lined driveway, Chitterman Grange occupies a spectacular position in the Charnwood F...

Main Street Newtown Linford

6 Bedroom Detached House | Guide Price £2,300,000

Linford House offers over 7,400 sqft of lavishly remodelled and appointed 1700s built period detached family home with s...

King Street Seagrave

6 Bedroom Detached House | Guide Price £2,000,000

A truly remarkable 18th century Grade II listed former Rectory sitting adjacent to the Church of All Saints in the much...

Brook Road Woodhouse Eaves

9 Bedroom Detached House | Guide Price £3,150,000

A rare and unique visitor to the open market, an outstanding country house of style, quality and character situated amon...

Polly Botts Lane Ulverscroft

5 Bedroom Detached House | Guide Price £4,000,000

Approached along an impressive tree lined driveway, Chitterman Grange occupies a spectacular position in the Charnwood F...

Bentons (Melton Mowbray)

47 Nottingham Street, Melton Mowbray, Leicestershire, LE13 1NN

01664 563892

How much is your home worth?

Use our short form to request a valuation of your property.

Request a Valuation

Mortgage Calculator

Amount Borrowed: £
Total Amount Repayable: £
Total Monthly Payment: £
©2025 The Guild of Property Professionals. All rights reserved. Terms and Conditions | Privacy Policy | Cookie Policy | Complaints Policy | Members Login
The Guild of Property Professionals Trading Address: 121 Park Lane, London W1K 7AG. GPEA Limited. Registered in England & Wales.  Company No: 02819824.  Registered Office Address: 2 St. Stephen's Court, St. Stephen's Road, Bournemouth, Dorset, England, BH2 6LA.  VAT Registration No: 576 8795 61
Book a Property Valuation Update Cookies Preferences