- NO CHAIN - Grade II Listed stone-built barn conversion - Set tucked away in a sought after location
- Light and spacious accommodation with character features
- Two reception rooms
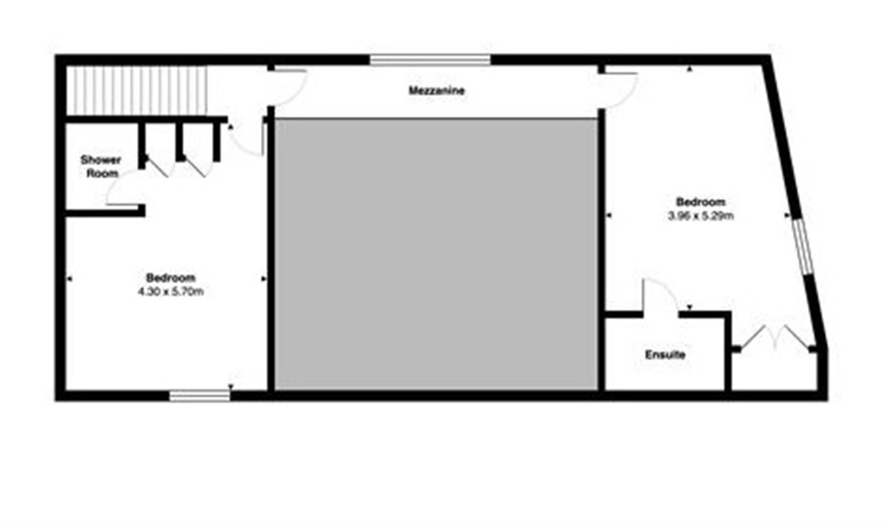
- Five bedrooms (three ground floor)- Three en-suites
- Open-plan kitchen, dining room and family room- Utility room
- Established landscaped gardens with patio & seating areas
- Off-road parking and double garage
- EPC Exempt