High Causeway, Whittlesey, PE7

Offers Over
£125,000

2 Bedroom Apartment for sale in Peterborough

1 2 1
  • MODERN APARTMENTS
  • 2 BEDROOMS
  • OPEN PLAN LIVING
  • GAS CENTRAL HEATING
  • UPVC DOUBLE GLAZING
  • TOWN CENTRE LOCATION
  • LONG LEASE
  • INVESTMENT OPPORTUNITY
  • CURRENTLY LET AT �675 PCM
  • GENERATED A YIELD OF OVER 6%**

Malcolm James are pleased to offer this 1st floor two bedroomed fully converted apartment. Benefits include security intercom system, gas central heating, uPVC double glazed, fitted kitchen and open plan. 6 panel internal doors and flooring throughout. Close to town centre. NO CHAIN

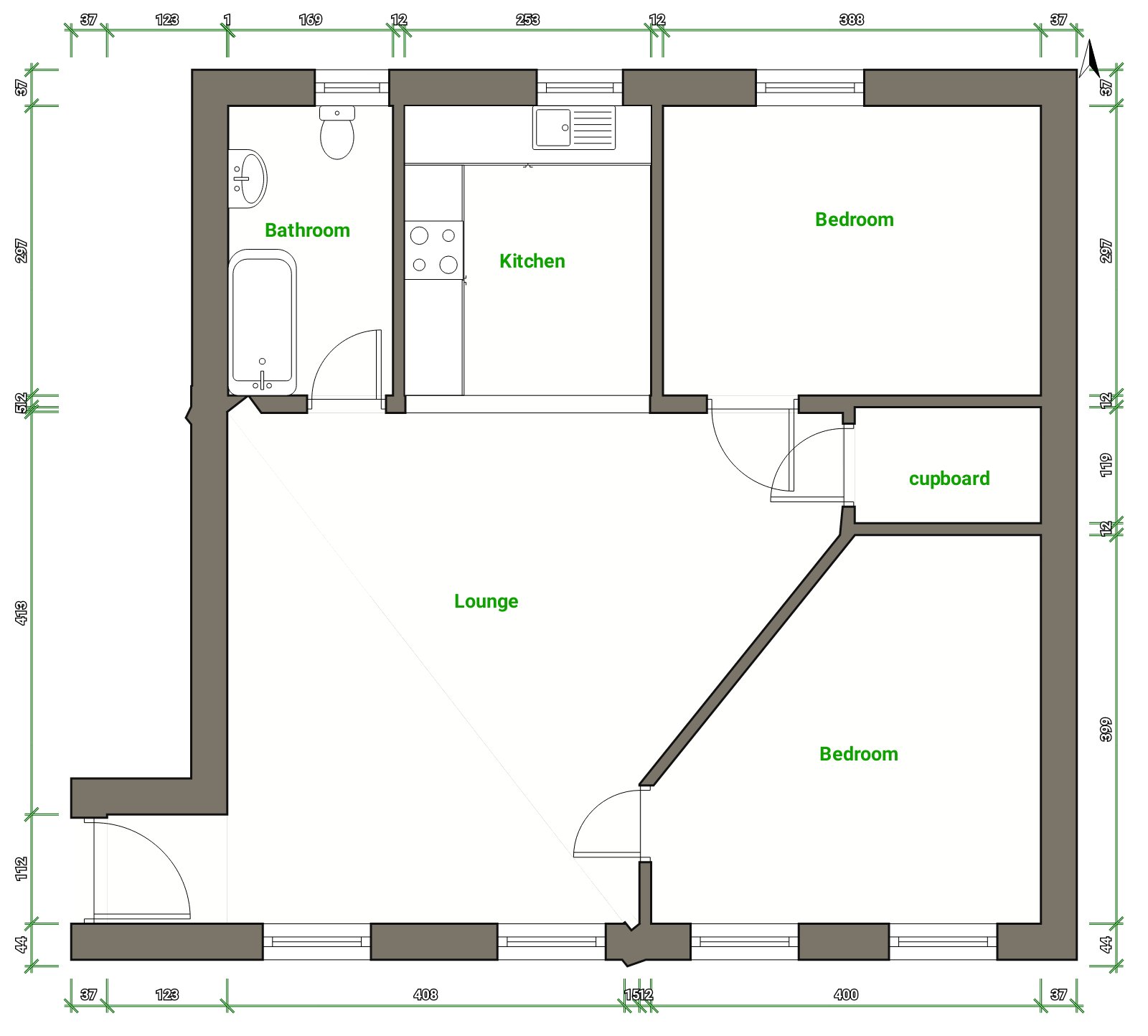
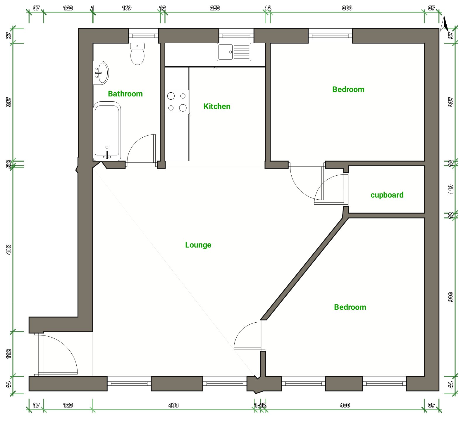
GAS METER, SECURITY INTERCOM AND POST BOXES LEADING TO: DOOR INTO:

COMMUNAL HALLWAY AND STAIRS TO 1ST FLOOR:: Corridor leading to the four self contained flats door into:

LOUNGE/KITCHEN: 5.68m x 4.41m (18'8" x 14'6"), (Angled). Security intercom system, two radiators, Television and telephone points. Three uPVC double glazed windows to front elevation. Walk in cupboard with access to roof space. Open to:


KITCHEN: 3.06m x 2.13m (10'0" x 6'12"), uPVC double glazed window to rear elevation. Range of eye and base level units. Inset electric oven and four ring gas hob and hood over. Splashback tiling and worksurface. Space for washing machine. Inset stainless steel single drainer sink unit and mixer taps over. Rack of spotlights to ceiling. Wall mounted Central Heating boiler. Space for Fridge Freezer. Radiator.


BEDROOM ONE: 3.72m x 2.81m (12'2" x 9'3"), (Angled) Two uPVC double glazed window, to front elevation. Radiator.

BEDROOM TWO: 2.94m x 2.90m (9'8" x 9'6"), uPVC double glazed window to rear elevation. Radiator.

BATHROOM: uPVC double glazed window to rear elevation. Three piece suite comprising low level W.C., pedestal wash hand basin. Panelled bath with cradle mixer shower and screen. Full height wall tiling around bath.

TENURE:: Leasehold: 123 years
Ground rent/maintenance charge approx £960.00 per Year.

AGENTS NOTES: 1st floor two bedroomed fully converted apartment. Benefits include security intercom system, gas central heating, uPVC double glazed fitted kitchen. Six panel internal doors and flooring throughout.

Important Information

  • This is a Leasehold property.

Property Ref: 58037_MJREF005418

Share:

Similar Properties

Eastgate Mews, Whittlesey, PE7

Commercial Property | £850pcm

THIS LARGE CORNER SHOP IS AVAILABLE TO RENT WITH PLENTY OF SHOP FRONTAGE. IT EXISTS OF ONE LARGE OFFICE WITH A SEPERATE...

Bruces Court, Whittlesey, PE7

2 Bedroom House | £169,995

Malcolm James are pleased to offer this semi detached house, 2 bedroomed accommodation offering open plan lounge kitchen...

Davie Lane, Whittlesey, PE7

2 Bedroom Bungalow | Offers Over £210,000

Malcolm James are pleased to offer this semi-detached bungalow offering 2 bedrooms, bathroom, lounge, kitchen, rear gard...

Ellwood Avenue, Stanground, PE2

2 Bedroom House | £290,000

Malcolm James are pleased to offer this 2/3 bedroomed detached chalet situated in Stanground. Stanground is a suburb loc...

Malcolm James Estate Agents (Peterborough)

16 High Causeway, Whittlesey, Peterborough, Cambridgeshire, PE7 1AE

01733 202602

How much is your home worth?

Use our short form to request a valuation of your property.

Request a Valuation

Mortgage Calculator

Amount Borrowed: £
Total Amount Repayable: £
Total Monthly Payment: £
©2026 The Guild of Property Professionals. All rights reserved. Terms and Conditions | Privacy Policy | Cookie Policy | Complaints Policy | Members Login
The Guild of Property Professionals Trading Address: 121 Park Lane, London W1K 7AG. GPEA Limited. Registered in England & Wales.  Company No: 02819824.  Registered Office Address: 2 St. Stephen's Court, St. Stephen's Road, Bournemouth, Dorset, England, BH2 6LA.  VAT Registration No: 576 8795 61
Book a Property Valuation Update Cookies Preferences