Bridge End, Wansford, Peterborough, PE8

Guide Price
£1,300,000

7 Bedroom Town House for sale in Peterborough

7
  • Georgian Character Home
  • Seven Bedrooms
  • Grade 2 Listed
  • Palatial In Size
  • Three Reception Rooms
  • Large Landscaped Grounds


SUMMARY
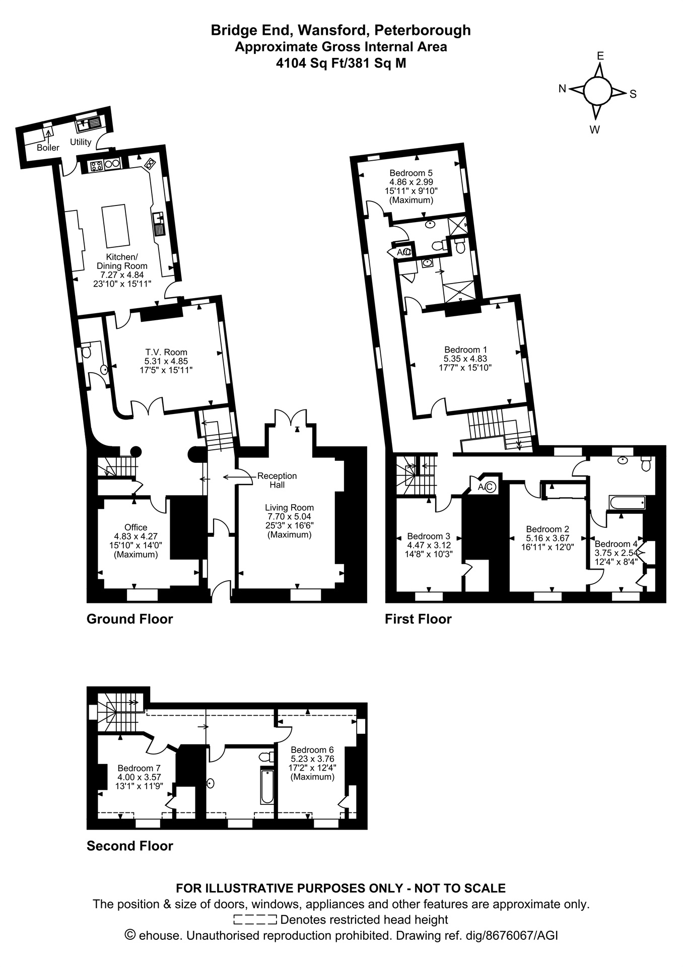
A characterful Grade II listed Georgian townhouse-style residence of substantial proportions, set in the very heart of the historic and highly regarded village of Wansford. Dating back over 250 years, this impressive home blends period charm with thoughtful modern living.

DESCRIPTION
At the heart of the property lies a bespoke fitted kitchen breakfast room, featuring traditional flagstone flooring, an iconic AGA, and a generous central island-ideal for large families, informal dining, entertaining, or gathering around the bar area. This space truly serves as the social hub of the home.

The welcoming entrance hall makes an immediate statement with its feature tiled flooring and elegant sweeping staircase, rising to the first and second floors. Across these levels are seven well-proportioned bedrooms and three bathrooms, with the principal bedroom suite standing out as a notable highlight, complete with an impressive ensuite.

To the rear, the grounds are both mature and expansive, perfectly matching the scale and heritage of the main house. The garden enjoys a high degree of privacy and offers a tranquil setting befitting a property of this calibre. Complementing the outdoor space is a raised swimming pool, with direct access through to an oversized double garage beyond. The garage is served by ample additional off-road parking for several vehicles and benefits from an EV charging point.

This palatial-sized home represents a rare opportunity to acquire a magnificent period residence of significant character, scale, and presence in one of the area's most sought-after villages.

Council Tax Band: C Tenure: Unknown

1. MONEY LAUNDERING REGULATIONS: Intending purchasers will be asked to produce identification documentation at a later stage and we would ask for your co-operation in order that there will be no delay in agreeing the sale.
2. General: While we endeavour to make our sales particulars fair, accurate and reliable, they are only a general guide to the property and, accordingly, if there is any point which is of particular importance to you, please contact the office and we will be pleased to check the position for you, especially if you are contemplating travelling some distance to view the property.
3. Measurements: These approximate room sizes are only intended as general guidance. You must verify the dimensions carefully before ordering carpets or any built-in furniture.
4. Services: Please note we have not tested the services or any of the equipment or appliances in this property, accordingly we strongly advise prospective buyers to commission their own survey or service reports before finalising their offer to purchase.
5. THESE PARTICULARS ARE ISSUED IN GOOD FAITH BUT DO NOT CONSTITUTE REPRESENTATIONS OF FACT OR FORM PART OF ANY OFFER OR CONTRACT. THE MATTERS REFERRED TO IN THESE PARTICULARS SHOULD BE INDEPENDENTLY VERIFIED BY PROSPECTIVE BUYERS OR TENANTS. NEITHER SHARMAN QUINNEY NOR ANY OF ITS EMPLOYEES OR AGENTS HAS ANY AUTHORITY TO MAKE OR GIVE ANY REPRESENTATION OR WARRANTY WHATEVER IN RELATION TO THIS PROPERTY.

Important Information

  • This is a Freehold property.

Property Ref: HUC104108

Share:

Similar Properties

Folksworth Road, Norman Cross, Peterborough, PE7

6 Bedroom Detached House | £1,250,000

This luxurious 5,177 sq ft property offers exceptional accommodation, including an impressive annexe currently serving a...

Thorpe Road, Peterborough, PE3

4 Bedroom Character Property | Guide Price £1,250,000

A fantastic opportunity to acquire a beautiful Listed residence in the sought after area of Longthorpe. The property dat...

Church Lane, Helpston, Peterborough, PE6

5 Bedroom Detached House | Offers Over £1,000,000

This stunning home, previously The Exeter Arms has been beautifully refurbished now offering a large 5 bedroom detached...

Hurfords (Castor)

5 The Barns, Milton Lane, Castor, Peterborough, PE5 7DH

01733 380956

How much is your home worth?

Use our short form to request a valuation of your property.

Request a Valuation

Mortgage Calculator

Amount Borrowed: £
Total Amount Repayable: £
Total Monthly Payment: £
©2026 The Guild of Property Professionals. All rights reserved. Terms and Conditions | Privacy Policy | Cookie Policy | Complaints Policy | Members Login
The Guild of Property Professionals Trading Address: 121 Park Lane, London W1K 7AG. GPEA Limited. Registered in England & Wales.  Company No: 02819824.  Registered Office Address: 2 St. Stephen's Court, St. Stephen's Road, Bournemouth, Dorset, England, BH2 6LA.  VAT Registration No: 576 8795 61
Book a Property Valuation Update Cookies Preferences