1a, Edge Hill, Plumstead, SE18

£525,000

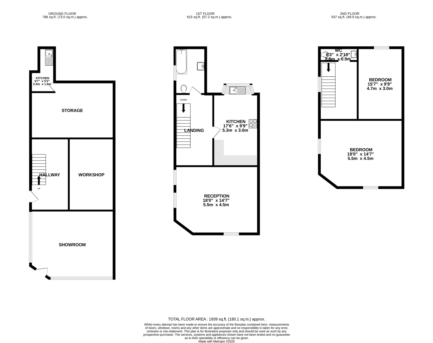
2 Bedroom Shop for sale in Plumstead

1 2 1
  • Freehold Victorian building over three floors
  • Ground floor commercial unit
  • Large 2-bedroom flat over upper two floors
  • Rear yard space
  • Gas central heating & double glazing
  • Walking distance to Woolwich Elizabeth Line, DLR & mainline stations
  • Excellent development potential (STPP)
  • Close to Herbert Road amenities

Hi Residential are pleased to present this spacious and versatile Victorian property arranged over three floors, offering both residential and commercial accommodation with significant development potential (STPP).
The ground floor comprises a well-proportioned retail unit with excellent street frontage, while the upper floors host a large two-bedroom split-level flat, accessed separately. The entire property is in good condition throughout and benefits from double glazing, gas central heating, and a private yard to the rear.
This freehold opportunity presents exceptional scope for investors or developers. Subject to the necessary planning permissions, there is potential to extend to the rear with a double-storey addition and convert the ground floor retail unit into a residential dwelling—potentially transforming the building into three self-contained units.
Ideally located just a short walk from Woolwich town centre, with Elizabeth Line, DLR and mainline rail services, and only minutes from the local shopping amenities of Herbert Road, this property combines convenience, character, and long-term potential in a high-demand area.
Key Features:
Freehold Victorian building over three floors
Ground floor commercial unit
Large 2-bedroom flat over upper two floors
Rear yard space
Gas central heating & double glazing
Excellent development potential (STPP)
Walking distance to Woolwich Elizabeth Line, DLR & mainline stations
Close to Herbert Road amenities
This is an excellent opportunity for both seasoned developers and buy-to-let investors. Contact Hi Residential today for further details or to arrange a viewing.

Property Ref: S_10611043

Share:

Similar Properties

26, Brookhill Road, Woolwich, SE18

4 Bedroom House | Guide Price £525,000

Guide Price £525,000 - £550,000.

Benares Road, Plumstead, SE18

4 Bedroom Terraced House | Offers in excess of £525,000

**Stunning Newly Refurbished 4-Bedroom Family Home with Loft Conversion in Plumstead, SE18**This beautifully refurbished...

St. Johns Terrace, Plumstead Common, London, SE18

2 Bedroom Terraced House | Guide Price £500,000

Nestled in a peaceful cul-de-sac overlooking the Plumstead Bowls Club, this delightful 2-bedroom Victorian house offers...

Danson Crescent, Welling, DA16

3 Bedroom House | £530,000

Situated in a highly desirable location, this well-presented three-bedroom semi-detached family home offers a fantastic...

Moordown, Shooters Hill, SE18

4 Bedroom End of Terrace House | £550,000

HI Residential is delighted to present this beautifully maintained four-bedroom terraced house, perfectly located in a q...

Plumstead Common Road, Plumstead, SE18 2RT

4 Bedroom Terraced House | £575,000

Nestled in one of the most sought-after locations, this delightful Victorian terrace house boasts a prime position overl...

hi-residential (Plumstead)

Plumstead, London, SE18 3TN

020 8316 6616

How much is your home worth?

Use our short form to request a valuation of your property.

Request a Valuation

Mortgage Calculator

Amount Borrowed: £
Total Amount Repayable: £
Total Monthly Payment: £
©2026 The Guild of Property Professionals. All rights reserved. Terms and Conditions | Privacy Policy | Cookie Policy | Complaints Policy | Members Login
The Guild of Property Professionals Trading Address: 121 Park Lane, London W1K 7AG. GPEA Limited. Registered in England & Wales.  Company No: 02819824.  Registered Office Address: 2 St. Stephen's Court, St. Stephen's Road, Bournemouth, Dorset, England, BH2 6LA.  VAT Registration No: 576 8795 61
Book a Property Valuation Update Cookies Preferences