- Detached three to five bedroom home
- Feature kitchen/dining/reception room
- Two family bathrooms Rural but with access to local towns
- Driveway parking for multiple vehicles
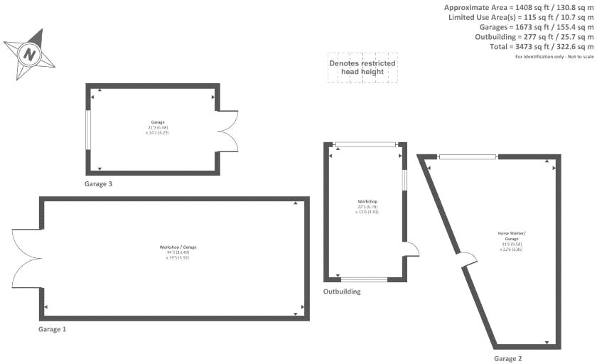
- Land and paddock included Workshop/storage facility included Fibre to the premises and mains water