Sycamore Square, Shenley, Radlett, Hertfordshire, WD7

£925,000
SSTC
This property listing is now SSTC

4 Bedroom Detached House for sale in Radlett

2 4 2

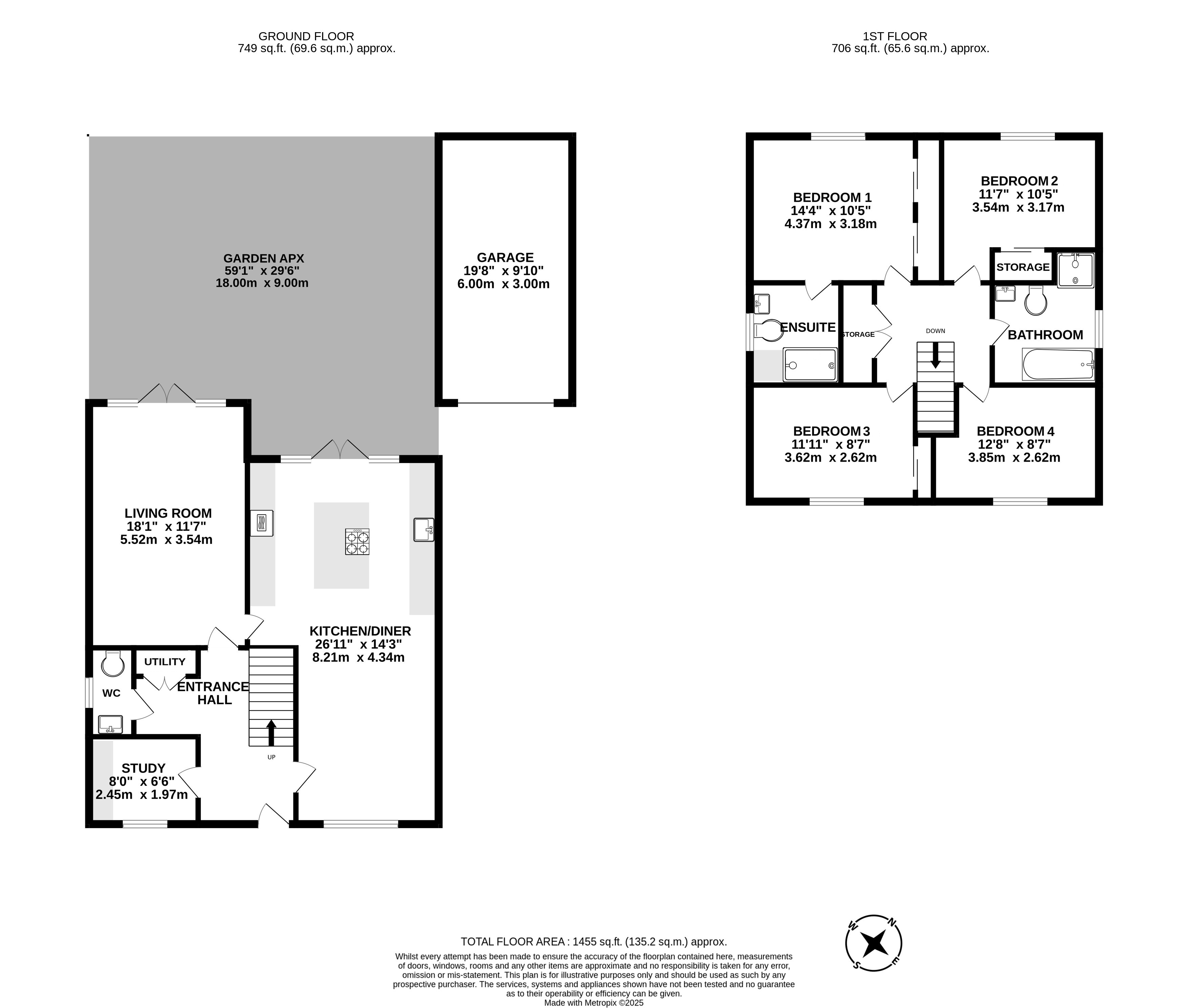
Tucked away in the sought-after Sycamore Square, WD7 9FN, this beautifully presented four-bedroom family home offers a perfect blend of modern luxury and smart living. Thoughtfully designed and extensively upgraded throughout, the property boasts a total floor area of approximately 1,455 sq. ft. and comes complete with a garage fully fitted with mains electric, as well as a generous landscaped garden.Upon entering, the spacious entrance hall immediately sets the tone, leading into a bright and contemporary living room enhanced by a bespoke, wall-to-wall media unit with integrated storage. The study has been custom fitted with a luxury office desk and storage that echoes the style of the living room, making it ideal for home working. The impressive kitchen/diner is a true centrepiece of the home, featuring a fully upgraded quartz island and work surfaces, under-cabinet lighting, high-end fixtures, and a filtered drinking water tap. Modern comforts are further elevated by CAT 6 sockets in the office, automated stair lights, and an under-stairs storage cupboard.Upstairs, the principal bedroom has been fully renovated with a bespoke built-in headboard, bed, and bedside tables, complemented by accent lighting and wall-to-wall fitted wardrobes. The remaining bedrooms have all been enhanced with LED coving, while bedroom two further benefits from integrated wardrobes. Both the ensuite and family bathroom are stylishly appointed, ensuring practicality is matched with comfort.The home has been extensively upgraded with smart technology and security features. A professional-grade CCTV system with five external cameras, a CCTV doorbell, a Yale smart lock, and a high-spec intruder alarm provide complete peace of mind. Automated electric blinds, radiator thermostats, upgraded ZigBee light switches, and matt black sockets are fitted throughout the property, all controlled via a single home automation dashboard. A dedicated server rack is neatly housed in the upstairs storage cupboard, while the loft is fully equipped with both power and internet.Externally, the property offers a large private garden, ideal for entertaining, and a garage with full electric supply. This modern home has been finished with meticulous attention to detail, combining contemporary style, convenience, and cutting-edge smart technology, making it one of the most desirable residences in Sycamore Square.

Important Information

  • This is a Freehold property.

Property Ref: 603603_LUM250299

Share:

Similar Properties

Hambleden Place, Gills Hill, Radlett, Hertfordshire, WD7

2 Bedroom Apartment | Guide Price £925,000

Set in a prestigious gated development, this exceptional two-bedroom penthouse apartment is ideally positioned in the ce...

Heath Way, Shenley, Radlett, Hertfordshire, WD7

4 Bedroom Detached House | £900,000

A stunning and ultra modern four bedroom detached property located in the extremely popular development recently built b...

Carrington Avenue, Borehamwood, Hertfordshire, WD6

4 Bedroom Semi-Detached House | Offers Over £900,000

Lumley Estates are proud to present this stunning four-bedroom semi-detached home located in the ever-desirable location...

Watling Street, Radlett, Hertfordshire, WD7

4 Bedroom Semi-Detached House | Guide Price £980,000

This charming and spacious family home offers a rare opportunity to secure a substantial property with exceptional poten...

Park Road, Radlett, Hertfordshire, WD7

3 Bedroom Link Detached House | £1,000,000

This elegant late Victorian link-detached home, dating back to 1894, blends timeless period character with modern family...

Bucknalls Lane, Watford, Hertfordshire, WD25

3 Bedroom Detached House | Offers Over £1,150,000

Situated on a generous 0.26-acre plot in the heart of Garston, this three-bedroom detached residence offers a unique ble...

Lumley Estates (Radlett)

72 Watling Street, Radlett, Hertfordshire, WD7 7NP

01923 853366

How much is your home worth?

Use our short form to request a valuation of your property.

Request a Valuation

Mortgage Calculator

Amount Borrowed: £
Total Amount Repayable: £
Total Monthly Payment: £
©2025 The Guild of Property Professionals. All rights reserved. Terms and Conditions | Privacy Policy | Cookie Policy | Complaints Policy | Members Login
The Guild of Property Professionals Trading Address: 121 Park Lane, London W1K 7AG. GPEA Limited. Registered in England & Wales.  Company No: 02819824.  Registered Office Address: 2 St. Stephen's Court, St. Stephen's Road, Bournemouth, Dorset, England, BH2 6LA.  VAT Registration No: 576 8795 61
Book a Property Valuation Update Cookies Preferences