Thaxted Road, Wimbish

Guide Price
£1,600,000

4 Bedroom Detached House for sale in Saffron Walden

3 4 4
  • Part of an exclusive gated development of just four homes
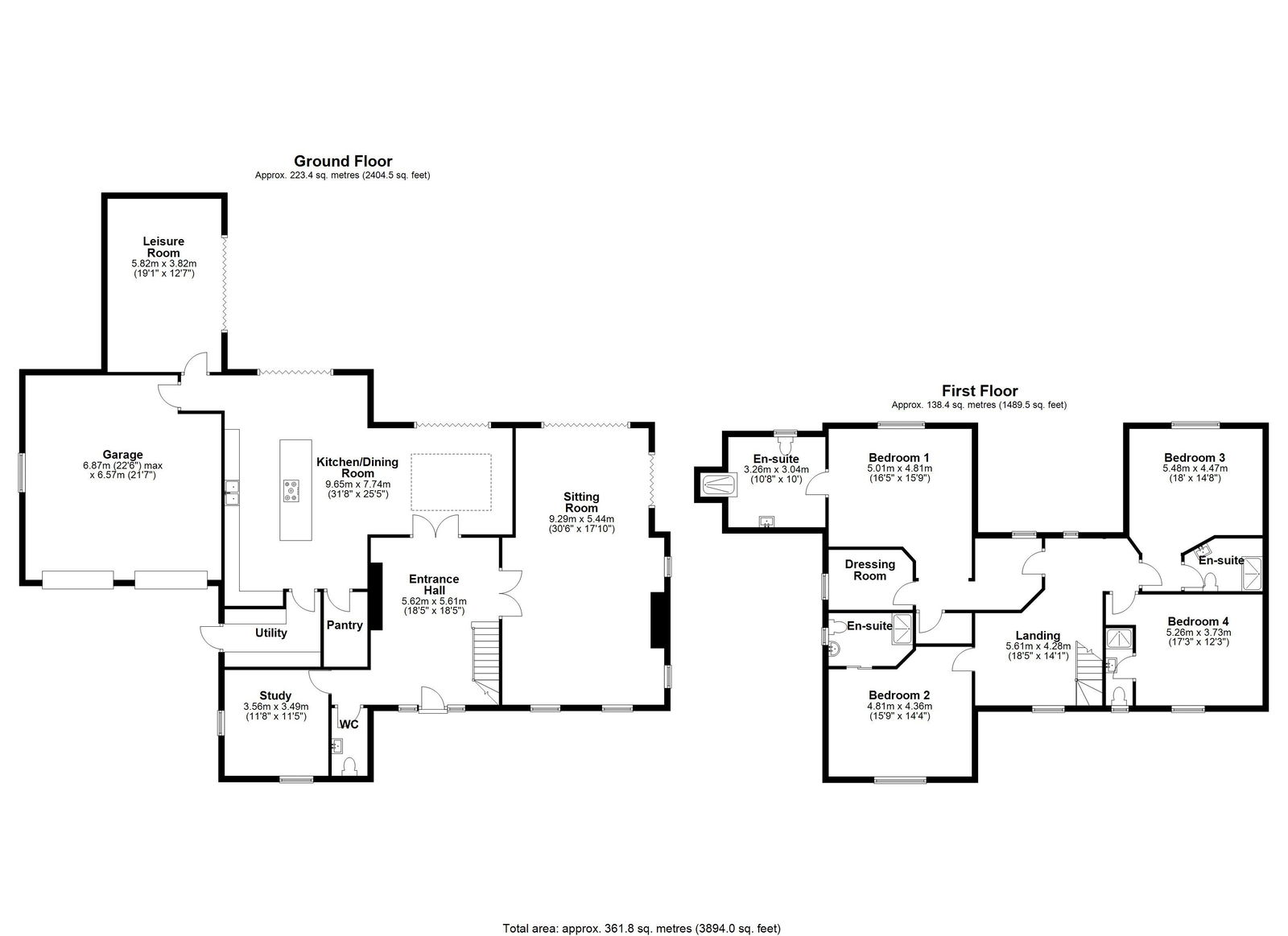
  • Spacious and versatile accommodation extending to approximately 3,894 sq ft
  • Impressive open-plan kitchen/dining room with island and doors to the garden
  • Elegant sitting room and leisure room, ideal for entertaining and relaxation
  • Study, utility, and pantry providing practical everyday living spaces
  • Four generous bedrooms, all with en suites, including a luxurious principal suite with dressing room
  • Internal images are from plot 3

Manor Wood is located on the edge of Wimbish, a charming village set amidst the rolling north Essex countryside, just three miles south-east of the historic market town of Saffron Walden. With its meandering lanes, traditional cottages and surrounding farmland, the village enjoys an authentic rural character, while remaining well connected for modern life. 


The village itself offers a welcoming community, with a highly regarded primary school, parish church, village hall and local amenities catering to day-to-day needs. A network of footpaths and bridleways provides wonderful walking and riding through unspoilt countryside, with opportunities to enjoy the peace and beauty of this delightful corner of Essex. 


For a broader range of shops, restaurants and services, the medieval town of Saffron Walden is close by, renowned for its vibrant market, excellent schooling and cultural attractions including the Fry Art Gallery and Saffron Hall concert venue. Cambridge lies only 16 miles to the north, offering world-class shopping, dining and academic facilities, while London is easily accessible via the M11 and regular rail services from Audley End into Liverpool Street. 


Wimbish is the kind of place that perfectly balances tranquillity with convenience – a true rural retreat, yet close enough to major centres for commuting, schooling and leisure.

Important Information

  • This is a Freehold property.

Property Ref: 2695_1196837

Share:

Similar Properties

South Road, Saffron Walden

6 Bedroom Semi-Detached House | Guide Price £1,500,000

A unique and attractive five/six-bedroom, five-bathroom semi-detached period residence, thoughtfully extended as well as...

Summerhill Road, Saffron Walden

5 Bedroom Detached House | Offers Over £1,500,000

A striking, five-bedroom detached home with a garden studio and individuality at its core. Tucked away on one of the tow...

Walden Road, Thaxted

6 Bedroom Detached House | Offers Over £1,500,000

Prouds Farm is a rare opportunity to acquire a historic country house of genuine architectural significance, offering el...

Little Sampford

5 Bedroom Detached House | Offers Over £1,750,000

An attractive and individual Grade II Listed farmhouse of immense character, occupying a generous plot extending to appr...

Thaxted Road, Wimbish

4 Bedroom Detached House | Guide Price £1,750,000

**OPEN DAY SATURDAY 22ND NOVEMBER 12-2PM** A stunning and exclusive gated development of just four executive new build h...

Upper Pond Street, Duddenhoe End

5 Bedroom Detached House | Guide Price £1,950,000

A most attractive Grade II listed, five-bedroom, three-bathroom country house, offered to the market for the first time...

Arkwright & Co (Saffron Walden)

Saffron Walden, Essex, CB10 1AR

01799 668600

How much is your home worth?

Use our short form to request a valuation of your property.

Request a Valuation

Mortgage Calculator

Amount Borrowed: £
Total Amount Repayable: £
Total Monthly Payment: £
©2026 The Guild of Property Professionals. All rights reserved. Terms and Conditions | Privacy Policy | Cookie Policy | Complaints Policy | Members Login
The Guild of Property Professionals Trading Address: 121 Park Lane, London W1K 7AG. GPEA Limited. Registered in England & Wales.  Company No: 02819824.  Registered Office Address: 2 St. Stephen's Court, St. Stephen's Road, Bournemouth, Dorset, England, BH2 6LA.  VAT Registration No: 576 8795 61
Book a Property Valuation Update Cookies Preferences