Sandhills Road, Salcombe, Devon

Guide Price
£625,000

2 Bedroom Apartment for sale in Salcombe

1 2 1
  • Stunning and uninterrupted sea views
  • Short walk to North Sands Beach
  • Balcony with incredible views
  • Well maintained communal gardens
  • The perfect lock-up-and-leave property
  • Own private entrance with level access
  • Private parking
  • Tranquil Salcombe setting

Perched in an enviable position on sought-after Sandhills Road in Salcombe, this beautifully presented apartment enjoys breathtaking, uninterrupted views across North Sands beach and out to sea. Just a short stroll from the golden sands and the ever-popular Winking Prawn café, the setting perfectly captures the relaxed coastal lifestyle for which Salcombe is so renowned.

Set within well-maintained communal grounds and benefiting from private parking, the apartment offers an ideal lock-up-and-leave retreat or a highly attractive holiday let investment.

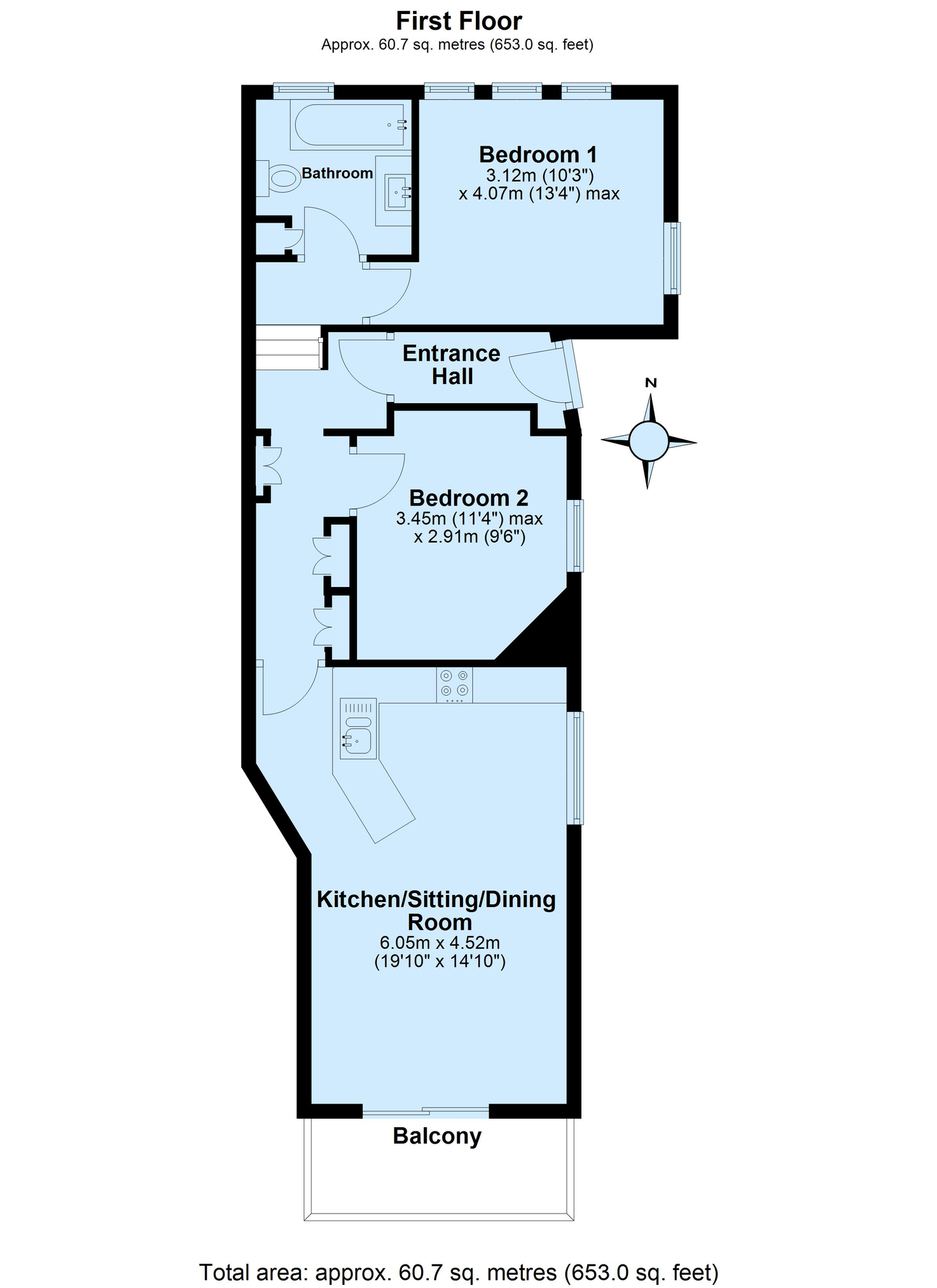
Accessed via a private entrance with level access from the car park, you step into a practical lobby with useful space for coats and outdoor gear — perfect after a day on the beach. To one side, a spacious family bathroom features both bath and shower, while a light and airy double bedroom enjoys dual-aspect windows that draw in plenty of natural light.

Further along the hallway, a generous built-in storage cupboard provides excellent everyday practicality, and a second well-proportioned double bedroom offers comfortable accommodation for family or guests.

At the end of the hall, the apartment opens into a bright, open-plan living space. The modern kitchen is thoughtfully arranged, flowing seamlessly into the lounge and dining area. Double patio doors frame the stunning coastal outlook and lead onto a balcony — an idyllic spot for morning coffee or relaxed evenings watching the light change over the water.

The interior décor is calm and coastal-inspired, complementing the spectacular sea views and tranquil setting that form the backdrop to the home.

Salcombe itself is one of the South West’s most desirable seaside towns, famed for its sailing waters, sheltered estuary and beautiful sandy beaches. The town offers an excellent selection of independent shops, waterside pubs and highly regarded restaurants, making this apartment a wonderful base from which to enjoy everything the area has to offer.

Services
Mains electricity, gas, water, and drainage. Gas central heating.

Fixtures and Fittings
All items in the written text of these particulars are included in the sale. All others are expressly excluded regardless of inclusion in any photographs. Purchasers must satisfy themselves that any equipment included in the sale of the property is in satisfactory order.

Viewings
Very strictly by appointment only through Marchand Petit (Salcombe Office) Tel: 01548 844473

Important Information

  • This is a Share of Freehold property.
  • The annual cost for the ground rent on this property is £5
  • The annual service charges for this property is £1388
  • This Council Tax band for this property is: E

Property Ref: JMQ966863

Share:

Similar Properties

Court Barton, South Huish

3 Bedroom Barn Conversion | Guide Price £625,000

A wonderful 3 bedroom holiday cottage boasting far-reaching sea and countryside views, set within beautiful grounds exte...

Gara Rock, East Portlemouth, Salcombe, Devon

3 Bedroom Apartment | Guide Price £625,000

A rare opportunity to own a coastal 3 bedroom apartment at the Gara Rock hotel with exceptional sea views.

Moult Road, Salcombe

3 Bedroom Apartment | Guide Price £625,000

A stunning 3 bedroom apartment in a sought-after location, boasting breathtaking sea views and just a short walk from th...

Ringrone, Sharpitor

2 Bedroom Flat | Guide Price £640,000

Discover the charm of this 2 bedroom apartment with a carport and off street parking. Enjoy stunning water views from yo...

Fore Street, Salcombe

2 Bedroom Maisonette | Guide Price £650,000

A stunning 2 floor maisonette in the centre of Salcombe High Street, right on the doorstep of Whitestrand Quay, offering...

Sandhills Road, Salcombe

2 Bedroom Apartment | Guide Price £675,000

A remarkable 2 bedroom apartment, set in an elevated position above the golden beach of North Sands, offering spectacula...

Marchand Petit (Salcombe)

24 Fore Street, Salcombe, Devon, TQ8 8ET

01548 844 473

How much is your home worth?

Use our short form to request a valuation of your property.

Request a Valuation

Mortgage Calculator

Amount Borrowed: £
Total Amount Repayable: £
Total Monthly Payment: £
©2026 The Guild of Property Professionals. All rights reserved. Terms and Conditions | Privacy Policy | Cookie Policy | Complaints Policy | Members Login
The Guild of Property Professionals Trading Address: 121 Park Lane, London W1K 7AG. GPEA Limited. Registered in England & Wales.  Company No: 02819824.  Registered Office Address: 2 St. Stephen's Court, St. Stephen's Road, Bournemouth, Dorset, England, BH2 6LA.  VAT Registration No: 576 8795 61
Book a Property Valuation Update Cookies Preferences