- SOUGHT AFTER VILLAGE LOCATION
- FULL PLANNING PERMISSION GRANTED
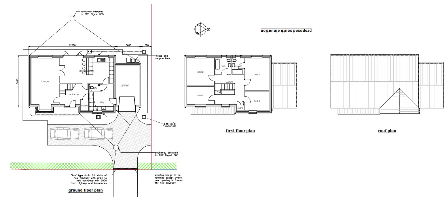
- SPACIOUS FOUR BEDROOM DETACHED FAMILY HOME
- OPEN PLAN KITCHEN DINER & UTILITY ROOM
- SPACIOUS LOUNGE
- FOUR GENEROUS BEDROOMS WITH MASTER EN-SUITE
- OPPORTUNITY FOR FUTHER LAND IF REQUIRED
**POPULAR VILLAGE LOCATION
**FANTASTIC OPPORTUNITY
**SUBSTANTIAL DETACHED FAMILY HOME
Rare Development Opportunity in the Sought-After Village of Winterton
A fantastic opportunity to purchase a prime residential site with full planning permission granted for a four-bedroom detached family home. Located in the highly regarded village of Winterton, this plot offers the chance to create a truly special and bespoke home in a well-connected and desirable location.
Winterton boasts a wide range of amenities, including shops, schools, pubs, and other local conveniences. The village is ideally situated just a short drive from the Humber Bridge and the towns of Brigg, Grimsby, and Immingham, as well as Humberside International Airport?making it perfect for commuters and families alike.
The site benefits from approved planning permission under application number PA/2024/20. The land currently included in the application is outlined in red; however, the seller is open to negotiating the inclusion of additional adjacent land?outlined in blue and pink?subject to offer.
Viewings are highly recommended to fully appreciate the scope and potential of this exceptional development plot.
Important Information
Property Ref: PFS250338
Detached House | Asking Price £110,000
** SUPERB RESIDENTIAL BUILDING PLOT ** PA/2025/780 ** A rare opportunity to purchase a superb residential building plot...
3 Bedroom Semi-Detached House | Asking Price £110,000
**SPACIOUS SEMI-DETACHED HOME**FANTASTIC INVESTMENT OPPORTUNITY**GENEROUS REAR GARDEN
Messingham Road, Scunthorpe, Lincolnshire, DN17
3 Bedroom Semi-Detached House | £110,000
**SPACIOUS SEMI-DETACHED HOME**FANTASTIC INVESTMENT OPPORTUNITY**GENEROUS REAR GARDEN
Warwick Road, Scunthorpe, DN16
3 Bedroom House | £115,000
**NO CHAIN****IDEAL INVESTMENT OPPORTUNITY****CENTRAL LOCATION****SPACIOUS SEMI-DETACHED HOME**
North Parade, Scunthorpe, DN16
2 Bedroom Semi-Detached House | £115,000
** MODERN METHOD OF AUCTION ** IDEAL INVESTOR PURCHASE ** CLOSE PROXIMITY TO ASHBY HIGH STREET ** A traditional semi-det...
Use our short form to request a valuation of your property.
Request a Valuation