Charlton

Offers in region of
£600,000

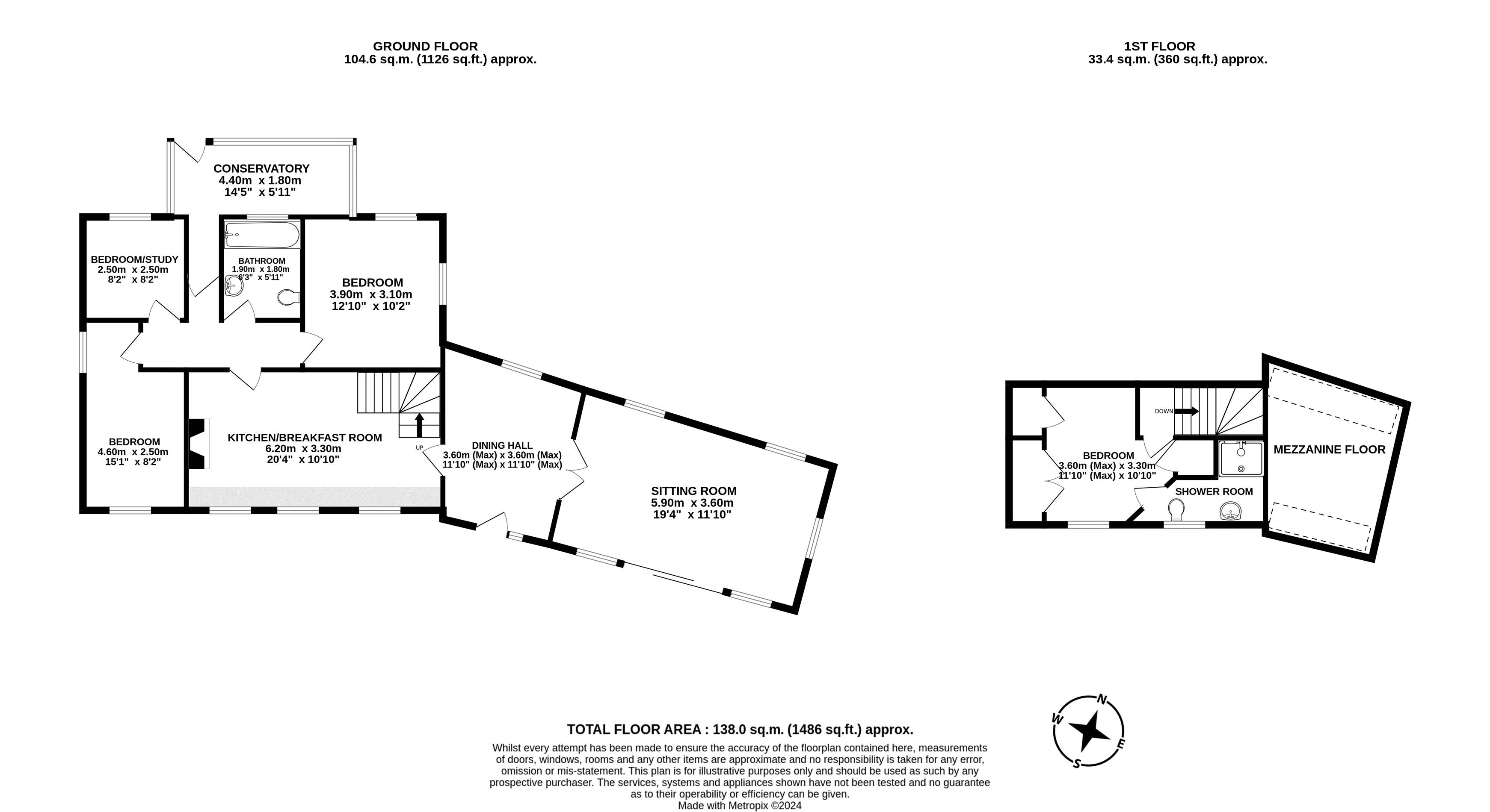
4 Bedroom Detached House for sale in Shaftesbury

2 4 2
  • No Forward Chain
  • Extended To Incorporate A Triple Aspect Sitting Room
  • Vaulted Ceilings With Additional Mezzanine Floor
  • Newly Installed Air Source Heat Pump, Full Rewire & Replumbed throughout
  • South Facing Garden
  • Occupying A Plot Of 0.2 Acres
  • EPC: E


Nestled in a popular rural hamlet on the outskirts of Shaftesbury is this charming four-bedroom cottage that has been sympathetically updated and extended by the current owners. The house further benefits by being sold with no forward chain.

The Property

Upon arriving at the property, you are first drawn to the delightful, timber clad extension of the property which houses a magnificent, triple aspect sitting room including sliding doors to the garden and an additional mezzanine floor which offers potential of a further office space or hobby area, as well as the addition of Velux windows and space saver staircase for ease. The extension to the home also allows for a dining area before then leading into the original stone structure whereby the characterful features remain to create an exciting combination of modern and period property sympathetically intertwined. The kitchen has been moved from its original placing to now form an impressive 20’ft kitchen breakfast room that provides ample work surface and storage solutions in addition to built-in and free-standing appliances.

The Property Cont.

Further located on the ground floor are three of the bedrooms along with a modern family bathroom that is tiled in finish and incorporates a shower over bath unit. The conservatory completes the ground floor and is predominantly used as a utility space. Upstairs the principal bedroom benefits from a bank of built in wardrobes and further shower room.

Outside

A gated driveway first leads to a shingled driveway that provides plentiful off-road parking with a hardstanding providing the potential footings for a garage if desired (STPC) before opening to an attractive combination of lawn, established flower beds, a pond and multiple hedgerows to create a secluded garden that takes full advantage of the Southerly facing aspect. In addition, there is a productive orchard area secluded from the driveway. Positioned to the rear of the property is a further gated driveway with access from the bridleway of which leads to the nearby village of Ludwell with its amenities.

What3Words

///pelt.weedy.mingles

Location

The village of Charlton is situated within the Cranborne Chase AONB and enjoys being located within a dark skies reserve whilst geographically lying within easy reach of Tisbury, with its independent shops and galleries and main line station to Waterloo (1hr 40 mins) and the South West, and the ancient hilltop town of Shaftesbury. The village is situated in an area of outstanding natural beauty offering enormous potential for walking, riding, and cycling, with the Chalke Valley a short drive away.
Shaftesbury, a few minutes drive, has an excellent weekly produce market, hotels, restaurants, The Shaftesbury Arts Club and numerous other amenities. The A303 is 5 miles away giving fast access towards London and the South West. There is also a range of excellent primary and secondary schools locally.

Tenure

Freehold.

Services

The property is warmed via an air source heat pump.
Drainage is provided via a private septic tank.

Council Tax

Wiltshire Council Tax Band E.

Viewings

Strictly by appointment only via Boatwrights Estate Agents.
01747 213106
Sales@boatwrights.co.uk
www.boatwrights.co.uk

Important Information

  • This is a Freehold property.

Property Ref: BWSH1311

Share:

Similar Properties

Moorside

3 Bedroom Detached House | Asking Price £600,000

A charming stone built, detached cottage being offered to the market with no forward chain. The property boasts three b...

Melbury Abbas

3 Bedroom Detached House | Asking Price £600,000

A charming Grade II listed cottage that proudly stands within roughly 0.3acres of stunning gardens set against the beaut...

Magdalene Lane, Shaftesbury

4 Bedroom House | Offers Over £599,995

A rare opportunity to purchase a fine example of a Victorian town house located close to Shaftesbury Town Centre, that h...

Long Cross, Shaftesbury

7 Bedroom Detached House | Guide Price £650,000

A substantial, detached home located on the outskirts of Shaftesbury offering an exceptional level of accommodation laid...

Corner Lane, Motcombe

5 Bedroom House | Offers in excess of £650,000

A spacious five bedroom detached chalet-style bungalow with flexible accommodation, situated in a large plot on the out...

Donhead St. Mary

4 Bedroom Detached House | Offers in excess of £650,000

A substantial, well laid out executive home located on the Wiltshire/Dorset boarder offering the most amazing view of th...

Boatwrights Estate Agents (Shaftesbury)

Shaftesbury, Dorset, SP7 8JG

01747 213106

How much is your home worth?

Use our short form to request a valuation of your property.

Request a Valuation

Mortgage Calculator

Amount Borrowed: £
Total Amount Repayable: £
Total Monthly Payment: £
©2026 The Guild of Property Professionals. All rights reserved. Terms and Conditions | Privacy Policy | Cookie Policy | Complaints Policy | Members Login
The Guild of Property Professionals Trading Address: 121 Park Lane, London W1K 7AG. GPEA Limited. Registered in England & Wales.  Company No: 02819824.  Registered Office Address: 2 St. Stephen's Court, St. Stephen's Road, Bournemouth, Dorset, England, BH2 6LA.  VAT Registration No: 576 8795 61
Book a Property Valuation Update Cookies Preferences