Acacia Avenue, Shepperton, TW17

Guide Price
£450,000

2 Bedroom Semi-Detached House for sale in Shepperton

1 2 1
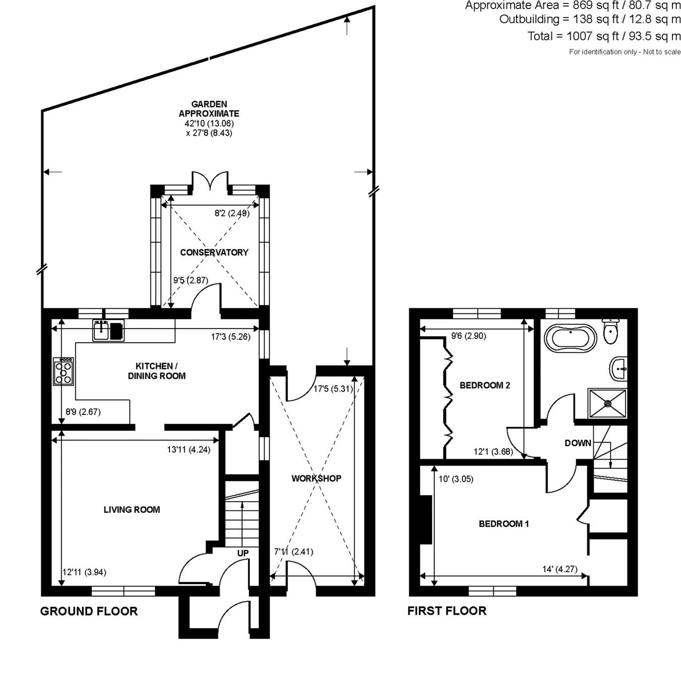
  • Two Double Bedrooms
  • Beautiful Four Piece Bathroom Suite
  • Off Street Parking
  • Ideal First Time Buy
  • Close To Schools & Shops
  • Good Size Rear Garden
  • Conservatory
  • Workshop

A beautifully improved 1930s semi-detached home offering two generous double bedrooms, a delightful westerly facing rear garden and a highly convenient location within a short stroll of local shops and just 0.7 miles from Shepperton High Street and mainline station. The property has been thoughtfully upgraded in recent years, including the installation of sealed unit double glazing, a modern central heating boiler, upgraded consumer unit and the addition of a welcoming entrance porch and a conservatory to the rear, creating a comfortable and well-balanced home ideally suited to first-time buyers, downsizers or young families. The front aspect living room is a light and inviting space, featuring a LVT flooring that flows seamlessly throughout the ground floor, enhancing the sense of space and natural light. To the rear, the bright kitchen has been fitted with a comprehensive range of contemporary cream fronted units, incorporating an integrated gas hob, electric double oven, extractor hood and dishwasher, with space provided for further appliances and a dining table. This opens directly into the conservatory, which benefits from a radiator for year-round use and double doors leading out onto the garden. To the first floor are two well-proportioned double bedrooms, both enjoying built-in wardrobes, with the principal bedroom further benefiting from a deep over-stairs storage cupboard currently arranged as a dressing area. The accommodation is completed by a beautifully appointed bathroom fitted with a period-style four-piece suite, including a roll-top bath and separate shower cubicle. Outside, the westerly backing rear garden enjoys a sunny aspect and extends to approximately 30 feet, featuring a raised deck, central lawn and established shrub borders. To the side is gated access to a useful workshop with additional front access, while a private driveway provides off-street parking for one vehicle. An attractive and well-presented home in a convenient and popular position, offering comfortable modern living with excellent access to local amenities and transport links.

Important Information

  • This is a Freehold property.

Property Ref: 29882639

Share:

Similar Properties

Sheep Walk, Shepperton, TW17

2 Bedroom Semi-Detached Bungalow | Offers in excess of £450,000

This charming semi-detached bungalow is ideally located in a sought after residential road, only half a mile from Sheppe...

Gaston Bridge Road, Shepperton, TW17

2 Bedroom Semi-Detached Bungalow | Offers in excess of £450,000

Situated in a popular residential location, this well-maintained two double bedroom semi-detached bungalow offers spacio...

Pentland Avenue, Shepperton, TW17

4 Bedroom End of Terrace House | Guide Price £450,000

A fantastic opportunity to purchase this well-proportioned three/four bedroom family home, ideally situated in Shepperto...

Oberon Way, Shepperton, TW17

3 Bedroom End of Terrace House | Guide Price £475,000

Tucked away in a peaceful residential cul-de-sac, this well-presented three bedroom family home offers balanced accommod...

Gaston Bridge Road, Shepperton, TW17

1 Bedroom Detached Bungalow | Guide Price £475,000

An immaculately presented detached bungalow offering a deceptively spacious and well-balanced layout, complemented by of...

Watersplash Road, Shepperton, TW17

2 Bedroom Detached Bungalow | Guide Price £475,000

A truly unique detached home tucked away in one of Shepperton’s most discreet and sought-after positions. Approached via...

Bazely & Co (Shepperton)

105 High Street, Shepperton, Middlesex, TW17 9BL

01932 221252

How much is your home worth?

Use our short form to request a valuation of your property.

Request a Valuation

Mortgage Calculator

Amount Borrowed: £
Total Amount Repayable: £
Total Monthly Payment: £
©2026 The Guild of Property Professionals. All rights reserved. Terms and Conditions | Privacy Policy | Cookie Policy | Complaints Policy | Members Login
The Guild of Property Professionals Trading Address: 121 Park Lane, London W1K 7AG. GPEA Limited. Registered in England & Wales.  Company No: 02819824.  Registered Office Address: 2 St. Stephen's Court, St. Stephen's Road, Bournemouth, Dorset, England, BH2 6LA.  VAT Registration No: 576 8795 61
Book a Property Valuation Update Cookies Preferences