Sithney, Helston

Guide Price
£595,000

4 Bedroom Country House for sale in Sithney

2 4 2
  • VERSATILE HOME WITH INTERCONNECTING ONE-BEDROOM SELF-CONTAINED ANNEXE
  • PREVIOUSLY CONFIGURED AS A FOUR BEDROOM FAMILY HOME
  • PERFECT FOR MULTI-GENERATIONAL LIVING OR INCOME POTENTIAL
  • ENCLOSED GARDENS AND PARKING
  • STATIC CARAVAN AND USEFUL WORKSHOP
  • EXTENSIVE PARKING AND APPROXIMATELY 3.5 ACRES OF LAND WITH RURAL AND TOWNSCAPE VIEWS
  • FREEHOLD
  • COUNCIL TAX D
  • EPC F25

Opportunities like this are incredibly rare - a home that doesn't just offer space, but genuine freedom to live the way you choose.

This wonderfully flexible property is currently arranged as a two double bedroom home with an interconnecting self-contained one-bedroom annexe. Perfect for multi-generational living, welcoming extended family, creating an independent space for older children, or generating additional income, it adapts effortlessly to changing needs. Previously configured as a four-bedroom family home, it could easily be returned to a single, spacious residence if desired.

Inside, the atmosphere is both bright and comforting. Many of the rooms are dual aspect, providing for lovely natural light, while multiple log burners including in both sitting rooms and the kitchen create a warm, homely feel - perfect for cosy winter evenings after long countryside walks.

Outside is where the lifestyle truly unfolds. Enclosed gardens wrap around the front, side and rear, providing safe and private spaces for children and pets to roam, summer barbecues with friends, or simply quiet moments in the sunshine. A useful workshop with additional store offers exciting potential for hobbies, home business use or creative projects.

The grounds extend further still, with ample parking, a discreetly positioned self-contained static caravan - currently long let by the vendors - and an impressive 3.5-acre field enjoying fabulous townscape and rural views.

Whether you're dreaming of smallholding life, space for family to stay, an income stream, or simply room to breathe, this is a property that offers not just a home - but a lifestyle.

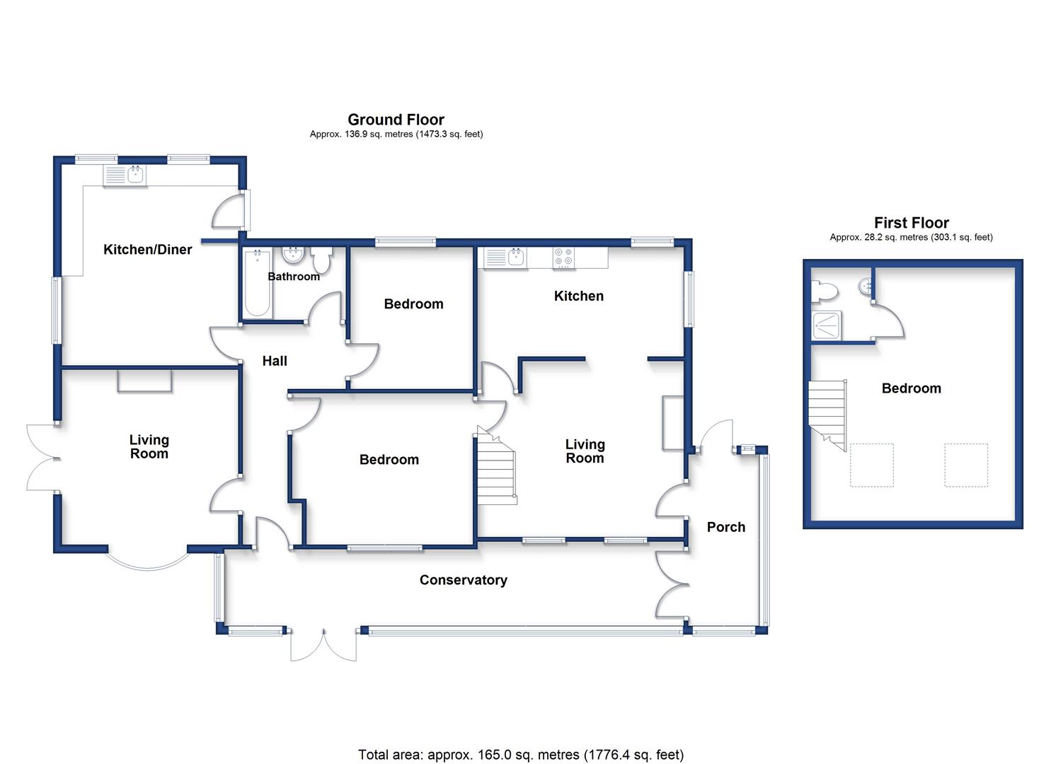
The Accommodation Comprises (Dimensions Approx) -

Door To -

Sun Room - 10.44m x 1.42m (34'3" x 4'8") - offering access to the utility/side porch and to the:

Hallway - With radiator and doors to various rooms.

Sitting Room - 4.06m x 4.06m (13'4" x 13'4") - A lovely cosy but light dual aspect room with Bow style window to front and patio doors to side accessing the garden. Log burner set on granite hearth and radiator.

Kitchen/Breakfast Room - 4.75m x 3.78m (15'7" x 12'5") - A dual aspect room with tiled floor, fitted with a range of base units with work surfaces over, space and point for fridge/freezer, space and plumbing for slimline dishwasher, Chef Master Level range oven featuring four ovens, five gas burners including a wok burner and a dual electric plate (available by separate negotiation), window to the side overlooking the garden and two windows to rear and door to the rear garden. Wall mounted Worcester gas boiler, space for table, larder style cupboard and log burner.

Bedroom One - 3.76m x 3.28m (12'4" x 10'9") - With window to rear and radiator.

Bedroom Two/Dining Room - 3.73m x 3.45m (12'3" x 11'4") - With windows to front, radiator and log burner. A versatile room currently being used by the present vendors as a bedroom but also ideal as a dining room/second reception room.

Bathroom - 2.36m x 1.83m (7'9" x 6' ) - With tiled floor and suite comprising of a bath with tiled surround and Mira Go electric shower over, pedestal wash hand basin, low level W.C., obscured window to rear and chrome effect ladder style radiator.

Utility/Side Porch - 4.04m x 1.83m (13'3" x 6') - A useful space with tiled floor, space and plumbing for washing machine, windows to front and side and connects to the front sun porch. Door to

Annexe Sitting Room - 4.72m x 4.11m (15'6" x 13'6") - A lovely cosy room with two windows to front, radiator, log burner set in stone surround, stairs rising to the first floor, connecting door to the bedroom/dining room in the main property and concertina doors and door to

Kitchen/Breakfast Room - 4.72m x 2.57m (15'6" x 8'5") - A bright dual aspect room with windows to side and rear fitted with base and wall units with work surfaces over and ceramic sink with mixer tap, space and point for gas oven, free standing butcher block style unit providing for additional storage and work surface space, space and point for under counter fridge freezer.

First Floor -

Bedroom - 5.18m x 4.75m(max measurements restricted head hei - With radiator, access to eaves storage, two velux style windows to front and door to

En Suite Shower Room - 1.65m x 1.35m (5'5" x 4'5") - With tiled floor, tiled cubicle housing Mira Jump electric shower, low level W.C., wash hand basin in vanity unit and velux style window.

Outside - To the front of the property is a large gravelled parking area offering off road parking for multiple vehicles. There are enclosed garden areas to the both the side and the rear of the property these are mostly laid to lawn with the garden to the side being particularly attractive and providing for a patio seating area and generous area of lawn. There are a variety of useful storage areas including a log store. To the rear of the property is a

Workshop - 4.95m x 3.15m (16'3" x 10'4") - With work bench, power and light and windows to side and front. To the rear of the workshop is a

Utility/Store - 3.12mx 1.45m (10'3"x 4'9") - A useful storage area with power currently used by the present vendors as a freezer room.

Static Caravan - Sited in a separate area to the rear is a one bedroom static caravan which we have not inspected internally. This enjoys its own separate garden area and is currently long let by the present vendors. Please ask for further details.

The Field - Extending to approximately 3.5 acres is the field offering good quality land with fantastic far reaching town scape and rural views suitable for a variety of uses.

Services - Private drainage, septic tank, LPG gas fired central heating, mains water and electricity.

What3words - browsers.crawled.employers

Anti-Money Laundering - We are required by law to ask all purchasers for verified ID prior to instructing a sale

Council Tax - Council Tax Band D.

Date Details Prepared. - 17th February, 2026.

Mobile And Broadband - To check the broadband coverage for this property please visit -
https://www.openreach.com/fibre-broadband
To check the mobile phone coverage please visit -
https://checker.ofcom.org.uk/

Proof Of Finance - Purchasers - Prior to agreeing a sale, we will require proof of financial ability to purchase which will include an agreement in principle for a mortgage and/or proof of cash funds.

Property Ref: 34490497

Share:

Similar Properties

West End, Porthleven

4 Bedroom Semi-Detached House | Guide Price £595,000

Situated in the Breageside area of this popular Cornish fishing village is this charming, four bedroom, semi-detached pe...

Nansloe Close, Helston

4 Bedroom Detached Bungalow | Guide Price £595,000

An opportunity to purchase a three/four bedroom detached property in a highly regarded residential area of the market to...

Parc Halligey, Coverack

3 Bedroom Detached House | Guide Price £595,000

INTERESTED TO SEE WHAT THIS EXCITING DEVELOPMENT HAS TO OFFER? JOIN US AT OUR OPEN HOUSE EVENTS - NO APPOINTMENT NECESSA...

Tregoon, Gweek

4 Bedroom Detached House | Guide Price £599,950

Nestled on the outskirts of the creekside village of Gweek, this exceptional home enjoys a truly special position, offer...

Torleven Road, Porthleven

4 Bedroom Detached House | Guide Price £599,950

Situated in the heart of the Cornish fishing village of Porthleven is this four bedroom, detached modern house. The resi...

Tresowes Hill, Ashton

6 Bedroom Detached House | Guide Price £600,000

Located in a tranquil and picturesque setting on Tresowes Hill, is this substantial, six bedroomed detached residence. O...

Christophers Estate Agents Porthleven (Porthleven)

Fore St, Porthleven, Cornwall, TR13 9HJ

01326 573737

How much is your home worth?

Use our short form to request a valuation of your property.

Request a Valuation

Mortgage Calculator

Amount Borrowed: £
Total Amount Repayable: £
Total Monthly Payment: £
©2026 The Guild of Property Professionals. All rights reserved. Terms and Conditions | Privacy Policy | Cookie Policy | Complaints Policy | Members Login
The Guild of Property Professionals Trading Address: 121 Park Lane, London W1K 7AG. GPEA Limited. Registered in England & Wales.  Company No: 02819824.  Registered Office Address: 2 St. Stephen's Court, St. Stephen's Road, Bournemouth, Dorset, England, BH2 6LA.  VAT Registration No: 576 8795 61
Book a Property Valuation Update Cookies Preferences