Avishayes Road, Chard, Somerset, TA20

£90,000

2 Bedroom Apartment for sale in Somerset

1 2 1

A renovated two bedroom first floor flat with views over the park offered to the market with no onward chain. Modern fitted kitchen with built-in appliances, open plan living area, two bedrooms and a modern fitted bathroom.

A perfect first time buyers property or investment.

Tenure: Leasehold
Council Tax Band: A
EPC Rating: D

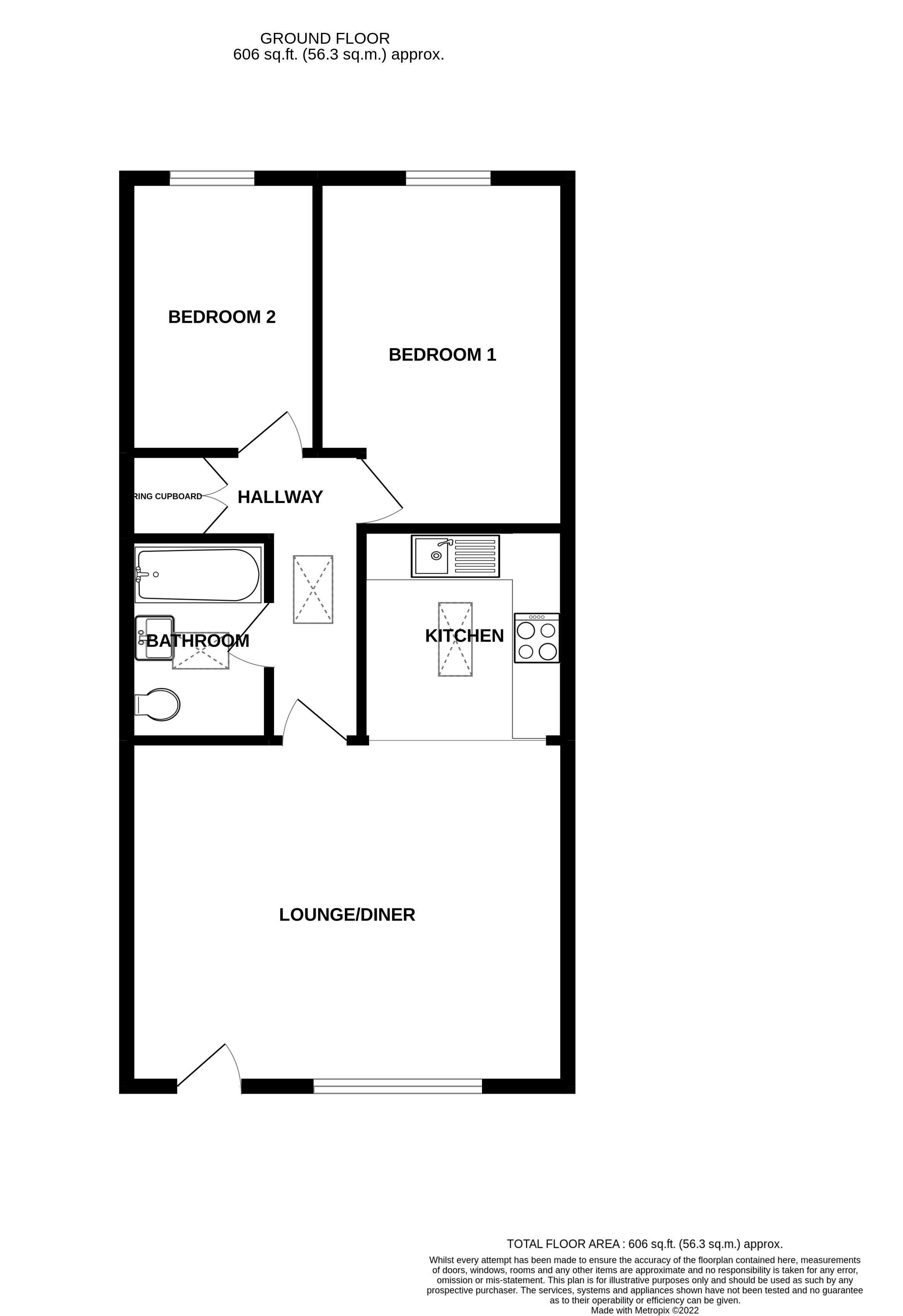
Lounge/Diner 17'2" x 13'6" (5.23m x 4.11m). uPVC double glazed front entrance door and uPVC double glazed window. Laminate flooring, inset spotlights and electric heaters.

Kitchen 8'2" x 7'11" (2.5m x 2.41m). Fitted with a range of modern high gloss wall and base units with adjoining work top preparation surface and inset stainless steel sink and drainer with mixer tap over complemented by tiled splash backs. Fitted oven and hob with cooker hood over. Fitted fridge/freezer and washing machine. Skylight and spotlights.

Inner Hallway    Electric heater, built in airing cupboard with tank, inset spotlights and skylight.

Bedroom One 13'9" (4.19m) x 9'8" (2.95m) narrowing to 7'11" (2.42m). uPVC double glazed window and electric heater.

Bedroom Two 10'7" x 7' (3.23m x 2.13m). uPVC double glazed window and electric heater.

Bathroom    Benefiting a three piece suite consisting of a panelled bath, pedestal wash hand basin and low level W.C. Ceramic tiled splash backs, inset spotlights and skylight.

Property Information    Services

Mains electric, drainage, water.

Broadband and Mobile Coverage
Superfast Broadband is available in this area and mobile signal should be available outdoors from all four major providers and limited access indoors from two of the four major providers. Information supplied by ofcom.org.uk

Sold with 125 year lease, peppercorn ground rent and service charge �411 PA. Perfect Investment Opportunity � AST Rent of �10,200, giving gross yield of 10.20%

The property comes with the potential of a right to park for one vehicle at the carpark at the rear of the building.

Please note that there is currently a tenant in the property and the photos that we are advertising are before the tenant was in occupation.



Important Information

  • This is a Leasehold property.

Property Ref: 131978_PFE220222

Share:

Similar Properties

The Bungalows, Furzehill, Chard, Somerset, TA20

2 Bedroom Semi-Detached Bungalow | Guide Price £90,000

*** AUCTION PROPERTY **** AUCTION DATE 14th JANUARY 2026 AT 1PM.A two bedroom semi-detached bungalow of non-traditional...

Victoria Court, Chard, Somerset, TA20

1 Bedroom Apartment | £70,000

A One Bedroom retirement apartment for the over 55's with views over the town offered to the market with NO ONWARD CHAIN...

Highfield Terrace, Bower Hinton, Martock, Somerset, TA12

3 Bedroom Semi-Detached House | £1,250pcm

A beautifully presented, redecorated and re-carpeted 3 bedroom semi-detached home, located in the village of Bower Hinto...

Foundry Mews, Combe Street, Chard, Somerset, TA20

1 Bedroom Apartment | £95,000

This well-presented ground floor apartment offers a fantastic opportunity for first-time buyers or investors. Set within...

East Street, Chard, Somerset, TA20

3 Bedroom End of Terrace House | Guide Price £100,000

A three bedroom Grade II listed property situated just of Chard Town centre within walking distance of facilities and am...

Beckington Crescent, Chard, Somerset, TA20

3 Bedroom Terraced House | £100,000

A three bedroom shared ownership modern terraced home with enclosed rear garden and parking for two cars. Accommodation...

Paul Fenton Estate Agents (Chard)

34 Fore Street, Chard, Somerset, TA20 1PT

01460 68222

How much is your home worth?

Use our short form to request a valuation of your property.

Request a Valuation

Mortgage Calculator

Amount Borrowed: £
Total Amount Repayable: £
Total Monthly Payment: £
©2025 The Guild of Property Professionals. All rights reserved. Terms and Conditions | Privacy Policy | Cookie Policy | Complaints Policy | Members Login
The Guild of Property Professionals Trading Address: 121 Park Lane, London W1K 7AG. GPEA Limited. Registered in England & Wales.  Company No: 02819824.  Registered Office Address: 2 St. Stephen's Court, St. Stephen's Road, Bournemouth, Dorset, England, BH2 6LA.  VAT Registration No: 576 8795 61
Book a Property Valuation Update Cookies Preferences