Tottehale Close, North Baddesley, Southampton

£210,000
SSTC
This property listing is now SSTC

1 Bedroom End of Terrace House for sale in Southampton

1 1 1

Situated within a quiet cul-de-sac in North Baddesley, this delightful one bedroom cluster house offers spacious rooms throughout. The house is presented in good condition, ensuring that you can move in with ease and start enjoying your new home right away. The ground floor benefits a sitting/dining area and a modern kitchen. The first floor provides a double bedroom with built in wardrobes as well as a tidy bathroom. Externally the property benefits a parking space and large shingled front garden. This home has no forward chain.

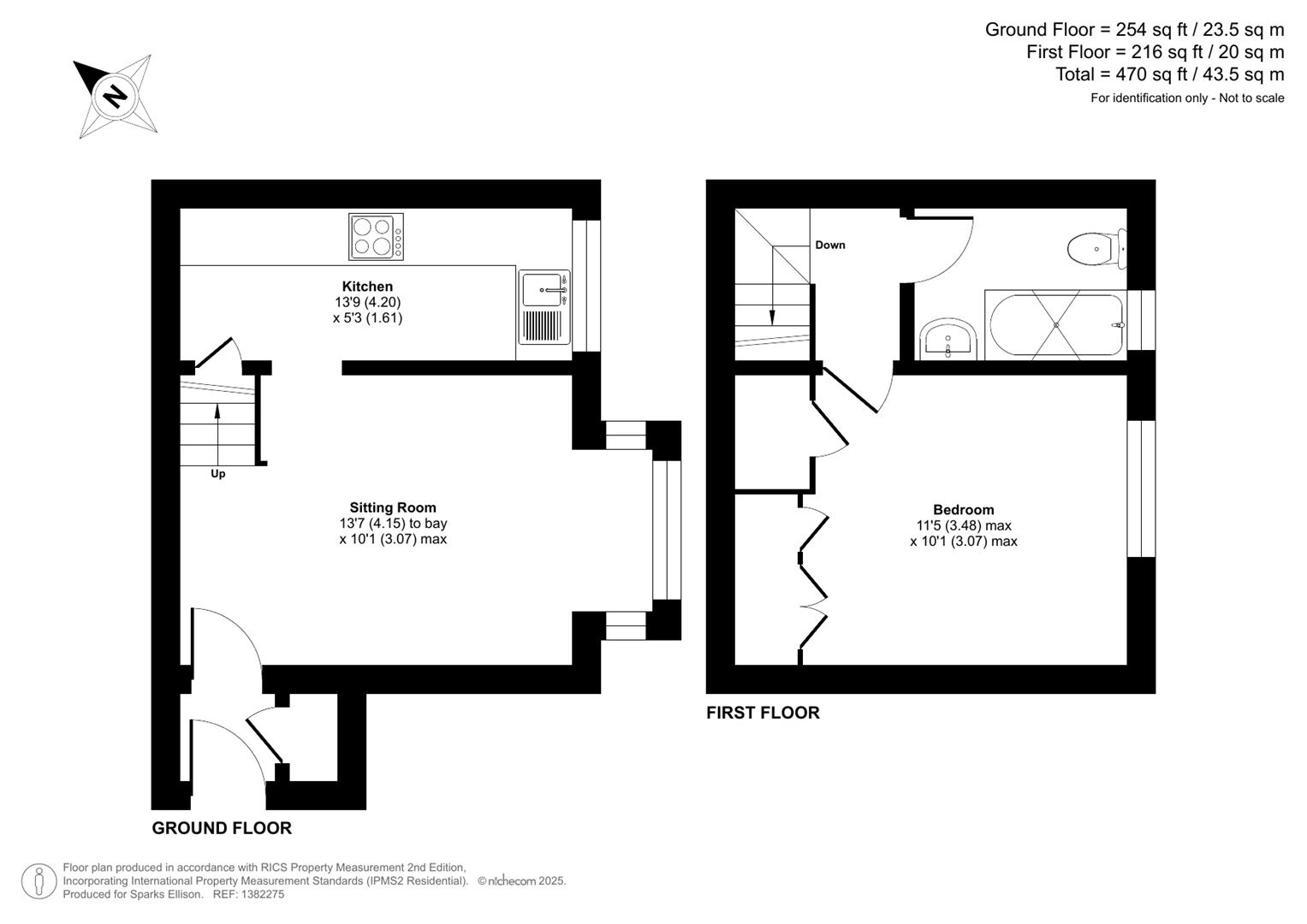
Accommodation -

Ground Floor -

Porch: - Storage cupboard, accommodating fuse board and meter.

Sitting/Dining Room: - 13'7" to bay x 10'1" max (4.15m x 3.07m) Bay window.

Kitchen: - 13'9" x 5'3" (4.20m x 1.61m) Range of units including gas hob, electric oven, fridge, freezer and space for washing machine. Under stair cupboard.

First Floor -

Landing: - Access to loft space.

Bedroom 1: - 11'5" x 10'1" (3.48m x 3.07m) Built in wardrobes and airing cupboard above stairs.

Bathroom: - White suite comprising bath with shower over, wash basin, and wc.

Outside -

Other Information -

Tenure: - Freehold

Approximate Age: - 1983

Approximate Area: - 470sqft/43.5sqm

Sellers Position: - No forward chain

Heating: - Gas central heating

Windows: - UPVC double glazing

Local Council: - Test Valley Borough Council - 01264 368000

Council Tax: - Band B

Front: - Parking for one car, shingled front garden

Property Ref: 34315248

Share:

Similar Properties

Hut Farm Place, Chandlers Ford

2 Bedroom Flat | Offers in excess of £210,000

Offered with no forward chain this modern purpose built two bedroom second floor apartment with balcony overlooking an o...

Hut Farm Place, Chandler's Ford

2 Bedroom Flat | Guide Price £210,000

Positioned within close proximity to the number one bus route and a long list of local amenities, this is a fantastic op...

Highwood Avenue, Eastleigh

1 Bedroom Flat | £200,000

Welcome to this exquisite first-floor flat located on Highwood Avenue in Eastleigh. This modern corner apartment, built...

Knightwood Mews, Shannon Way Valley Park, Chandlers Ford

2 Bedroom Retirement Property | £230,000

A well presented two bedroom first floor apartment forming part of this exclusive Brendon Care Development designed for...

Knightwood Mews, Knightwood Park, Chandler's Ford

2 Bedroom Retirement Property | £230,000

An exceptional two bedroom, first floor apartment forming part of this exclusive Brendon Care Development designed for t...

Parkway Gardens, Chandler's Ford, Eastleigh

2 Bedroom Maisonette | £235,000

Located in Parkway Gardens in the heart of Chandler's Ford, this delightful first-floor maisonette offers a perfect blen...

Sparks Ellison (Chandler's Ford)

Chandler's Ford, Hampshire, SO53 2GJ

02380 255333

How much is your home worth?

Use our short form to request a valuation of your property.

Request a Valuation

Mortgage Calculator

Amount Borrowed: £
Total Amount Repayable: £
Total Monthly Payment: £
©2026 The Guild of Property Professionals. All rights reserved. Terms and Conditions | Privacy Policy | Cookie Policy | Complaints Policy | Members Login
The Guild of Property Professionals Trading Address: 121 Park Lane, London W1K 7AG. GPEA Limited. Registered in England & Wales.  Company No: 02819824.  Registered Office Address: 2 St. Stephen's Court, St. Stephen's Road, Bournemouth, Dorset, England, BH2 6LA.  VAT Registration No: 576 8795 61
Book a Property Valuation Update Cookies Preferences