Wolseley Road, Stafford, ST16

£250,000

3 Bedroom Semi-Detached House for sale in Stafford

1 3 1
  • Beautifully presented three-bedroom semi-detached home with stunning countryside views and within easy walking distance of Stafford centre, top-rated schools and scenic walks.
  • Bright lounge/diner with dual-aspect windows and French doors leading to the garden, ideal for relaxing & entertaining.
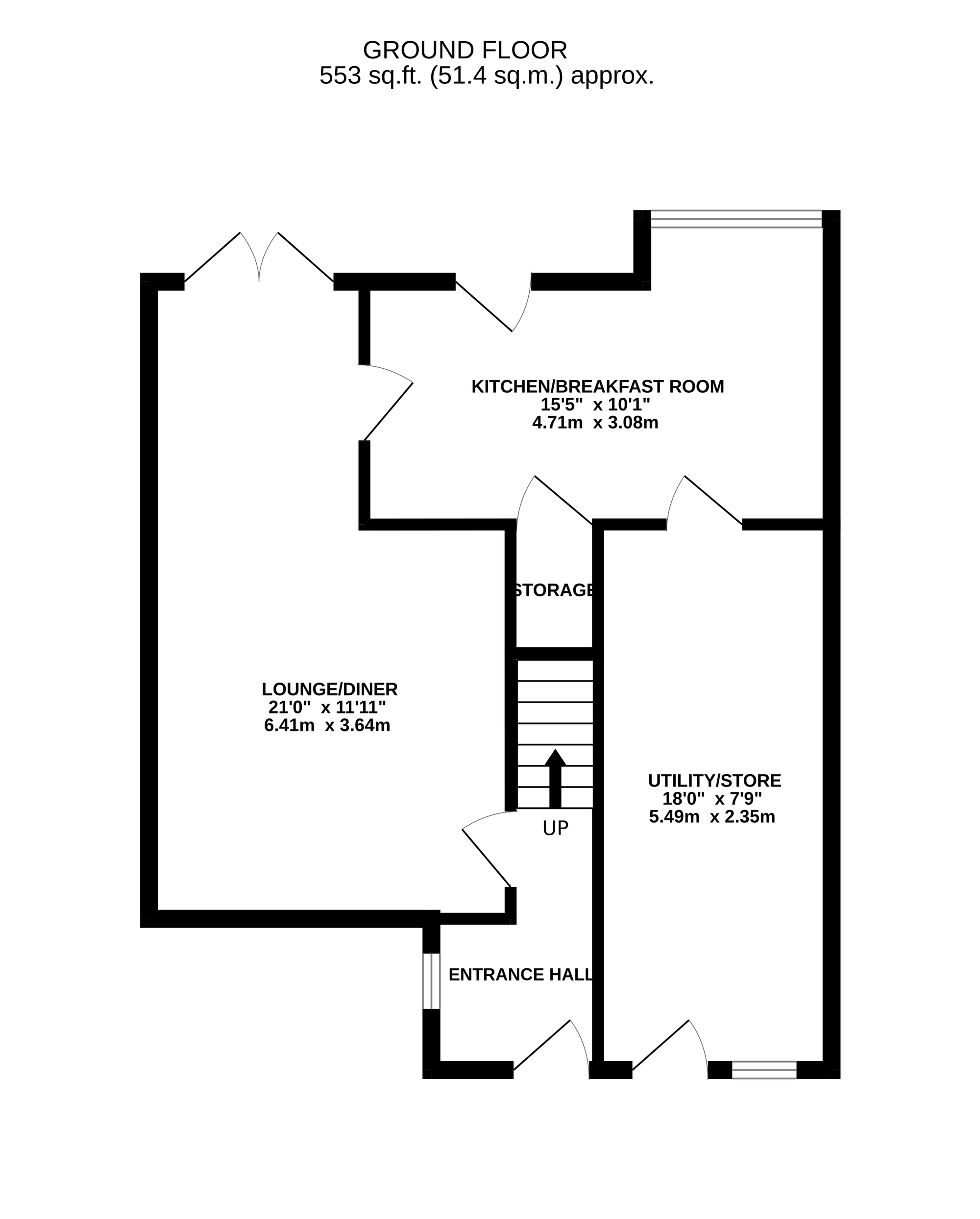
  • Upgraded kitchen with sleek white cabinetry, integrated appliances & an under-stairs pantry/storage and a utility/store space.
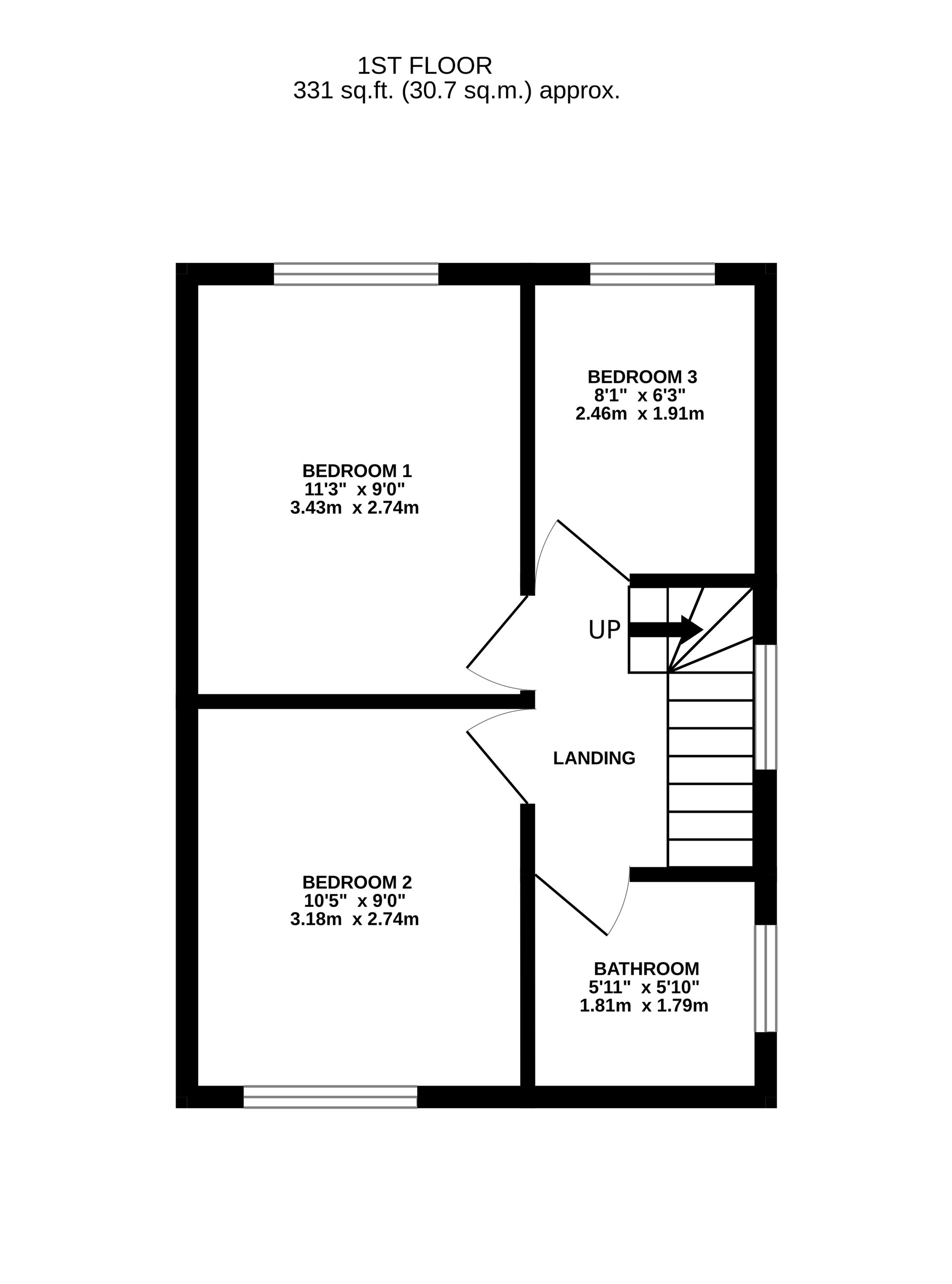
  • Three well-sized bedrooms including two doubles, one with breathtaking views, plus a versatile single room that would be ideal for a guest room, nursery, or study.
  • Direct South-facing rear garden with patio seating, lush grass lawn, and lower tiered patio space. To the front, a driveway providing off-road parking and steps leading down to the front door.

Step right onto the podium because this home on Wolseley Road is pure gold. Welcome to a beautifully presented three-bedroom semi-detached home that’s ready to sprint past the competition, with breathtaking countryside views and sitting within walking distance of top-rated schools, Stafford’s busy centre, and nearby scenic walking routes, this truly is a home that goes the distance, sticks the landing, and delivers a gold-medal lifestyle.

Step inside to a spacious entrance hall that guides you straight into a bright and well-sized lounge/diner, complete with bright dual-aspect windows, glazed French doors and a seamless flow that makes it perfect for both relaxing and entertaining. The kitchen has been upgraded and offers sleek white cabinetry, stunning views to the rear, integrated appliances, plus a handy under-stairs storage/pantry, and access into a large storage space that is perfect for a utility and storage space.

Upstairs is home to three spacious bedrooms, including two doubles, one of which offers beautiful views to the rear, plus a versatile single which could be used for a guest room, nursery, or a home office. The bathroom offers floor-to-ceiling tiling, a bath/shower duo, a sink, and a W/C.

Externally, a direct South-facing garden awaits with a well-maintained patio seating space, a lush grass lawn and a lower-tiered patio seating space and room for a shed. To the front, a block-paved driveway provides off-road parking and steps leading down to the front door.

Location

Living in Stafford combines character, heritage, and modern amenities, it’s an ideal location for those seeking a lively atmosphere with everything on their doorstep. Offering vibrant, convenient living at the heart of one of Staffordshire’s most historic and attractive market towns.

The town centre boasts an excellent range of shops, cafés, restaurants, and leisure facilities, including independent boutiques, national retailers, and a selection of popular bars and eateries.

For commuters, Stafford railway station offers direct services to London, Birmingham, Manchester, and Liverpool, while the nearby M6 motorway (Junctions 13 and 14) provides easy road access across the Midlands and beyond.

Stafford town centre is also rich in history, with landmarks such as Stafford Castle, Victoria Park, and the Ancient High House offering culture and green space within easy reach. Residential options range from stylish apartments and period terraces to modern townhouses, appealing to families, professionals, downsizers, and investors alike.

Important Information

  • This is a Freehold property.
  • This Council Tax band for this property is: B
  • EPC Rating is C

Property Ref: f81d06cd-8318-4e04-81ad-824ea05d0785

Share:

Similar Properties

Queensville, Stafford, ST17

3 Bedroom Semi-Detached House | Offers in excess of £250,000

Claim your crown on Queensville! Perfect for first-time buyers or upsizers, this 3-bed semi offers living room, dining r...

Wilson Road, Stoke-On-Trent, ST4

3 Bedroom Semi-Detached House | Offers in excess of £250,000

Beautifully presented 3-bed semi in Hanford with spacious kitchen/diner, family room, large garden, garage, off-road par...

Kingsland Close, Stone, ST15

3 Bedroom Semi-Detached House | Offers in excess of £250,000

Stylish, smart & surprisingly spacious! This leafy 3-bed gem in Aston Lodge boasts a converted garage, modern kitchen, p...

Douglas Avenue, Stoke-On-Trent, ST4

3 Bedroom Semi-Detached House | Offers in excess of £260,000

Every hero needs a great base. This three bedroom semi on Douglas Avenue, Oakhill features a living room with log burner...

Millstone Court, Stone, ST15

3 Bedroom Apartment | £265,000

Stylish, spacious three-bed apartment in central Stone with two en suites, Juliet balconies, two parking spaces and no o...

Oulton Road, Stone, ST15

3 Bedroom Semi-Detached House | Offers in excess of £265,000

Welcome to a home that’s anything but ordinary. This three-bedroom semi-detached gem is ready to steal your heart. Brigh...

James Du Pavey Estate Agents (Stone)

Christchurch Way, Stone, Staffordshire, ST15 8BZ

01785 814917

How much is your home worth?

Use our short form to request a valuation of your property.

Request a Valuation

Mortgage Calculator

Amount Borrowed: £
Total Amount Repayable: £
Total Monthly Payment: £
©2026 The Guild of Property Professionals. All rights reserved. Terms and Conditions | Privacy Policy | Cookie Policy | Complaints Policy | Members Login
The Guild of Property Professionals Trading Address: 121 Park Lane, London W1K 7AG. GPEA Limited. Registered in England & Wales.  Company No: 02819824.  Registered Office Address: 2 St. Stephen's Court, St. Stephen's Road, Bournemouth, Dorset, England, BH2 6LA.  VAT Registration No: 576 8795 61
Book a Property Valuation Update Cookies Preferences