Orchard Lane, Hyde Lea, ST18

£330,000

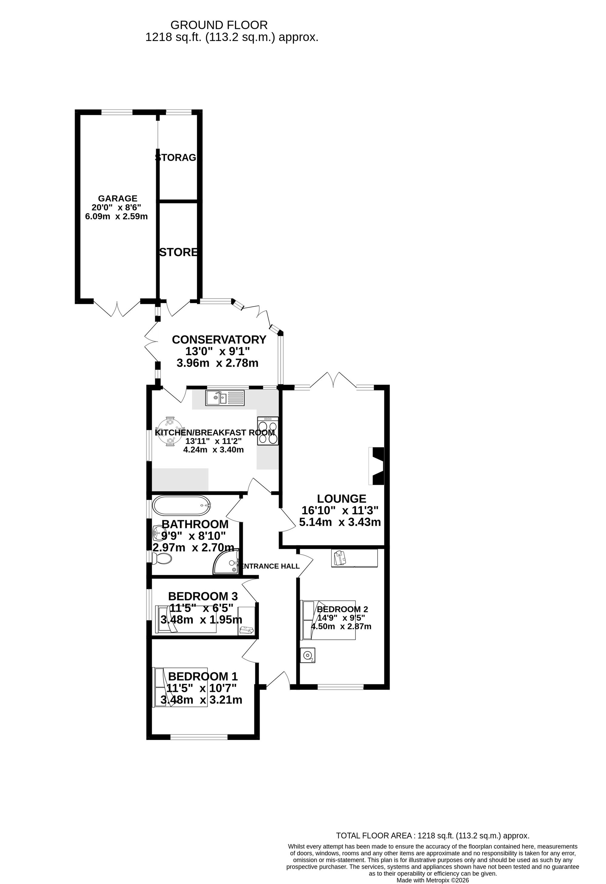
3 Bedroom Bungalow for sale in Stafford

3
  • Bright and welcoming living room with a feature cast iron stove and French doors opening onto the rear garden
  • Charming cottage style kitchen with integrated appliances, stable door, and open access to a versatile conservatory
  • Three well proportioned bedrooms served by a contemporary family bathroom with separate bath and shower
  • Generous gravelled driveway, established front garden, and detached garage with additional storage
  • Beautifully maintained, private rear garden with lawn, hedging, and seating areas perfect for relaxing or entertaining

Nestled in a peaceful residential setting, this delightful three bedroom semi detached bungalow offers a wonderful blend of character and modern comfort. Step inside to discover a bright and welcoming living room, where a feature cast iron stove creates a cosy focal point, and French doors open directly onto the rear garden, seamlessly merging indoor and outdoor living. The charming cottage style kitchen is thoughtfully fitted with integrated appliances, a stable door for added character, and open access to a versatile conservatory that can be used as a dining area, home office, or relaxing retreat. Each of the three well proportioned bedrooms is designed for comfort and flexibility, making this home ideal for families or those seeking extra space for guests or hobbies. The contemporary family bathroom is beautifully appointed, featuring both a separate bath and a walk in shower for added convenience. Practicality is further enhanced by a generous gravelled driveway, an established front garden, and a detached garage with additional storage, ensuring there is ample space for vehicles and belongings.

The outside space is equally impressive, offering a beautifully maintained and private rear garden that provides a tranquil escape from the bustle of daily life. A lush lawn is bordered by mature hedging, creating a sense of seclusion and privacy, while thoughtfully arranged seating areas are perfect for relaxing with a book or entertaining friends and family during the warmer months. The established front garden adds to the property’s kerb appeal, with attractive planting and a welcoming approach. The detached garage not only offers secure parking but also benefits from extra storage, making it ideal for gardening equipment, bikes, or seasonal items. Whether you are seeking a peaceful haven to unwind or a sociable space to host gatherings, this property’s outside areas are sure to impress and provide year round enjoyment.

Don’t delay your search a moment longer and get in touch today to arrange your visit to your future home.

Important Information

  • This is a Freehold property.
  • This Council Tax band for this property is: D
  • EPC Rating is D

Property Ref: a295d8d5-d785-4083-86d9-13d9d4cdd2d0

Share:

Similar Properties

Bridge Court, Woodseaves, ST20

4 Bedroom Semi-Detached House | £330,000

Spacious, stylish home with open-plan living, conservatory, modern kitchen, four bedrooms (two ensuite), Juliet balcony,...

Station Road, Gnosall, ST20

3 Bedroom Bungalow | Offers in region of £325,000

Charming 3-bed detached bungalow in the heart of a village. Bright living room, kitchen/diner, utility room, guest W.C,...

Highlows Lane, Yarnfield, ST15

2 Bedroom Detached Bungalow | Offers in region of £325,000

This charming detached bungalow is ready to become your next dream home. With NO UPWARD CHAIN, two double bedrooms and e...

Fountain Fold, Gnosall, ST20

4 Bedroom Detached House | Offers in excess of £335,000

Welcome to a home that’s truly written in the stars! This charming detached delight offers a cosmic combination of moder...

Corner Ways, Derrington, ST18

3 Bedroom Detached House | Fixed Price £335,000

Sitting proudly on a generous corner plot, this beautifully presented home delivers the perfect blend of modern style, c...

Whimbrel Park, Stafford, ST16

4 Bedroom Detached House | £345,000

Modern 4-bed detached home on a corner plot in Stafford. Features spacious kitchen/diner, ensuite master, utility, garag...

James Du Pavey Estate Agents (Eccleshall)

Eccleshall, Staffordshire, ST21 6BH

01785 851886

How much is your home worth?

Use our short form to request a valuation of your property.

Request a Valuation

Mortgage Calculator

Amount Borrowed: £
Total Amount Repayable: £
Total Monthly Payment: £
©2026 The Guild of Property Professionals. All rights reserved. Terms and Conditions | Privacy Policy | Cookie Policy | Complaints Policy | Members Login
The Guild of Property Professionals Trading Address: 121 Park Lane, London W1K 7AG. GPEA Limited. Registered in England & Wales.  Company No: 02819824.  Registered Office Address: 2 St. Stephen's Court, St. Stephen's Road, Bournemouth, Dorset, England, BH2 6LA.  VAT Registration No: 576 8795 61
Book a Property Valuation Update Cookies Preferences