Stafford Road, Woodseaves, ST20

£585,000
SSTC
This property listing is now SSTC

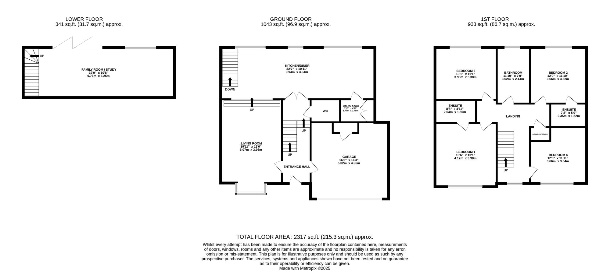
4 Bedroom Detached House for sale in Stafford

2 4 3
  • A beautiful three story, detached home in Woodseaves offering luxury living, stylish details throughout and scenic views.
  • Four double bedrooms and three bathrooms allows plenty of space for the whole family or welcomed guests to relax and unwind.
  • The ground floor offers a fully equipped kitchen/diner, utility, cloakroom and integral garage, with the whole lower floor being designated to a charming family/study area.
  • Outside, enjoy a generously sized rear garden with both lawn and patio area, all framed by onward, scenic views.
  • Located in Woodseaves, enjoy close by local amenities and the C of E Primary School, while Eccleshall and Newport are short drives away for further needs.

Straight from the glossy pages of your dream home magazine, this detached showstopper delivers luxury, elegance, and more picture-perfect details than you can fit in a double-page spread. Split across three levels, this four-bedroom, three-bathroom masterpiece is a best-seller in both contemporary design and spacious family living.

A modern brick façade, manicured front garden and driveway set the scene, with a garage offering plenty of off-road parking, because even dream homes need practical footnotes. Inside, the home showcases elegant oak herringbone flooring, black framed glass panelled French doors and an airy open plan layout. The true centrefold of the home is the kitchen/diner, styled to perfection with a range of integrated appliances, quartz worktops, a boiler tap and triple-aspect windows that flood the space with light. There’s even foundations in for a future balcony, because every headline deserves an expansion. Flow seamlessly into a versatile living space made for entertaining, complete with a bay window adding that extra dash of editorial charm. A utility and cloakroom keep the background tidy, so the star feature always shines. Head down to the lower floor, currently dedicated as family room/study area, where sliding and bi-fold doors create a dramatic double-page reveal onto landscaped gardens and rolling countryside views, perfect for parties or peaceful evenings. Underfloor heating across the ground and lower floor ensures cosy, cover-worthy comfort.

Head upstairs to the first floor and discover four double bedrooms and three bathrooms. The principle bedroom and second bedroom both include their own en suites for optimal luxury living, while bedrooms three and four remain generous in size. Each bedroom benefits from large windows and plush carpeting, offering relaxing retreats for the whole family or welcomed guests. The contemporary family bathroom ensures the rest of the house is covered with a walk-in shower, a freestanding bath-tub, vanity unit and high-quality fixtures.

Outdoor living is a true delight where a generous patio and carefully designed gardens deliver both tranquility and views, while lawn invites your green-fingered creativity to add its own flourish. Exterior stairs connect you back to the driveway for effortless circulation. Located in Woodseaves enjoy great local amenities and the C of E Primary School close by, while Eccleshall and Newport are short drives away for further needs.

With modern luxury, thoughtful practicality and serene rural surroundings, Rowan House is ready for its close-up. Don’t just flip through the pages, book a viewing and make this your front-cover lifestyle today.

Important Information

  • This is a Freehold property.
  • This Council Tax band for this property is: G
  • EPC Rating is B

Property Ref: 83f2b566-ecbb-43bb-bb83-b251254d12c6

Share:

Similar Properties

Stafford Road, Woodseaves, ST20

5 Bedroom Detached House | £585,000

Forget handbags, this Mulberry isn’t for your arm, it’s for your whole lifestyle! No upward chain, just upward smiles wi...

Walk Mill, Eccleshall, ST21

3 Bedroom Detached House | £585,000

Don’t walk on by! Take the step inside Walk Mill Cottage. This elegant three-bedroom detached home offers an exceptional...

Elford Heath, Eccleshall, ST21

3 Bedroom Detached House | Offers in excess of £585,000

Charming three bed detached house near Eccleshall. Spacious rooms, Juliet balcony, garage, workshop, ample parking, cosy...

Eccleshall, Stafford, ST21

3 Bedroom Detached House | Offers in region of £590,000

Charming 3-bed cottage with 2.5 acres, stables, & outbuildings. Modern kitchen, lounge with log burner, 3 double bedroom...

Silver Close, Norton-In-Hales, TF9

4 Bedroom Detached House | £595,000

Stylish four-bed home in Norton in Hales with landscaped gardens, modern kitchen, two ensuites, underfloor heating, doub...

A41, Stableford, ST5

Not Specified | Offers in region of £600,000

Now we all know that we have to grasp an opportunity and "take the bull by the horns" in order to make the most of thing...

James Du Pavey Estate Agents (Eccleshall)

Eccleshall, Staffordshire, ST21 6BH

01785 851886

How much is your home worth?

Use our short form to request a valuation of your property.

Request a Valuation

Mortgage Calculator

Amount Borrowed: £
Total Amount Repayable: £
Total Monthly Payment: £
©2026 The Guild of Property Professionals. All rights reserved. Terms and Conditions | Privacy Policy | Cookie Policy | Complaints Policy | Members Login
The Guild of Property Professionals Trading Address: 121 Park Lane, London W1K 7AG. GPEA Limited. Registered in England & Wales.  Company No: 02819824.  Registered Office Address: 2 St. Stephen's Court, St. Stephen's Road, Bournemouth, Dorset, England, BH2 6LA.  VAT Registration No: 576 8795 61
Book a Property Valuation Update Cookies Preferences