Goodwood Avenue, Cheadle, ST10

£195,000
SSTC
This property listing is now SSTC

3 Bedroom Semi-Detached House for sale in Stoke-On-Trent

3
  • Peaceful edge-of-town location in Cheadle, offering town amenities with countryside and field views to the rear.
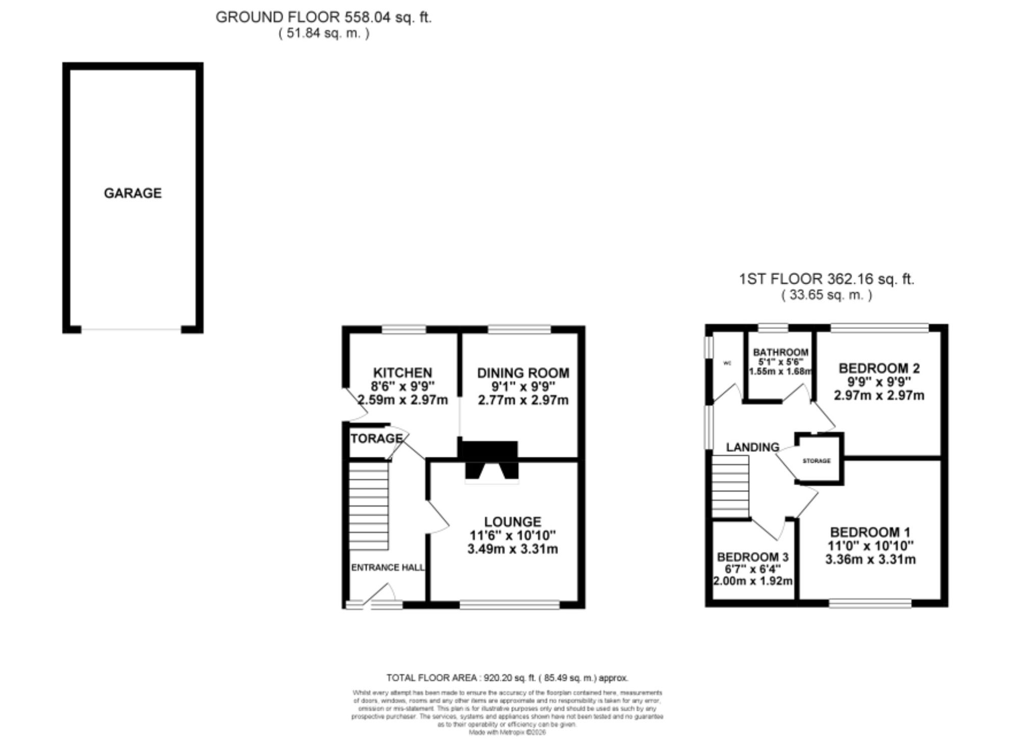
  • Spacious living areas, including a bright living room, dining room overlooking the garden, and a kitchen with pantry.
  • Three-bedroom property with two doubles and one single, plus a bathroom and separate WC.
  • Excellent renovation potential, ideal for investors or buyers looking to create a family home.
  • Ample parking and storage, featuring a large tandem tarmacked driveway, garage, and front patio area.

“I dreamed a dream in time gone by…” Calling all investors and dreamers alike, this is an opportunity not to be missed! While the property is in need of full renovation, with a little imagination and creativity it has the potential to become a truly lovely family home. All it needs is your vision to bring it to life. Situated on the outskirts of the market town of Cheadle, this home offers the perfect balance of modern convenience and rural tranquillity. The town centre provides a great selection of supermarkets, shops and eateries, while the property itself enjoys beautiful open field views to the rear and sits right on the cusp of the countryside, giving a wonderful sense of rural living. Step inside and, immediately to the right, you’ll find a bright and spacious living room. At the heart of the home is the kitchen, offering ample space for storage along with a handy pantry, perfect for keeping everything neatly tucked away. Completing the ground floor is the dining room, overlooking the garden and offering a fantastic space for entertaining family and friends. Upstairs, the property features three bedrooms, two doubles and a single, ideal for a home office, nursery or dressing room. The first floor is completed by a bathroom and a separate WC. Outside, the rear garden is bordered by fencing and mature shrubs, providing a pleasant and private outdoor space. Parking is generous, with a large tarmaced tandem driveway and an additional garage offering extra storage. To the front, there is also a neat patio area. A home full of potential, waiting for someone to dream big and make it their own. What are you waiting for, dream big and book your viewing today!

Important Information

  • This is a Freehold property.
  • This Council Tax band for this property is: B
  • EPC Rating is D

Property Ref: 0ea7d513-f6c3-4609-a4cb-3ddf69554c12

Share:

Similar Properties

Kingfisher Crescent, Cheadle, ST10

2 Bedroom Bungalow | £195,000

New Avenue, Draycott, ST11

2 Bedroom End of Terrace House | Offers in region of £195,000

“You are my sunshine, my only sunshine, you make me happy, when skies are grey.” This home radiates a feeling that lifts...

Holyhead Crescent, Stoke-On-Trent, ST3

3 Bedroom Detached Bungalow | £195,000

Are you a Jitterbug itching for your next project? Fancy a home with oodles of potential ready to make your own?

The Avenue, Blythe Bridge, ST11

2 Bedroom Semi-Detached House | £199,950

Embrace, expand, listen to my body. Now you have gotten this far, so trust your body and mind because everything is tell...

Beswick Close, Cheadle, ST10

2 Bedroom Detached Bungalow | £200,000

Delightful 2-bed detached bungalow in peaceful cul-de-sac in Cheadle. Two double bedrooms, dining area (or potential 3rd...

Harington Drive, Stoke-On-Trent, ST3

3 Bedroom Detached Bungalow | Offers in excess of £200,000

James Du Pavey Estate Agents (Cheadle)

Cheadle, Staffordshire, ST10 1UY

01538711400

How much is your home worth?

Use our short form to request a valuation of your property.

Request a Valuation

Mortgage Calculator

Amount Borrowed: £
Total Amount Repayable: £
Total Monthly Payment: £
©2026 The Guild of Property Professionals. All rights reserved. Terms and Conditions | Privacy Policy | Cookie Policy | Complaints Policy | Members Login
The Guild of Property Professionals Trading Address: 121 Park Lane, London W1K 7AG. GPEA Limited. Registered in England & Wales.  Company No: 02819824.  Registered Office Address: 2 St. Stephen's Court, St. Stephen's Road, Bournemouth, Dorset, England, BH2 6LA.  VAT Registration No: 576 8795 61
Book a Property Valuation Update Cookies Preferences