Cedars Drive, Stone, ST15

£285,000
SSTC
This property listing is now SSTC

3 Bedroom Not Specified for sale in Stone

1 3 1
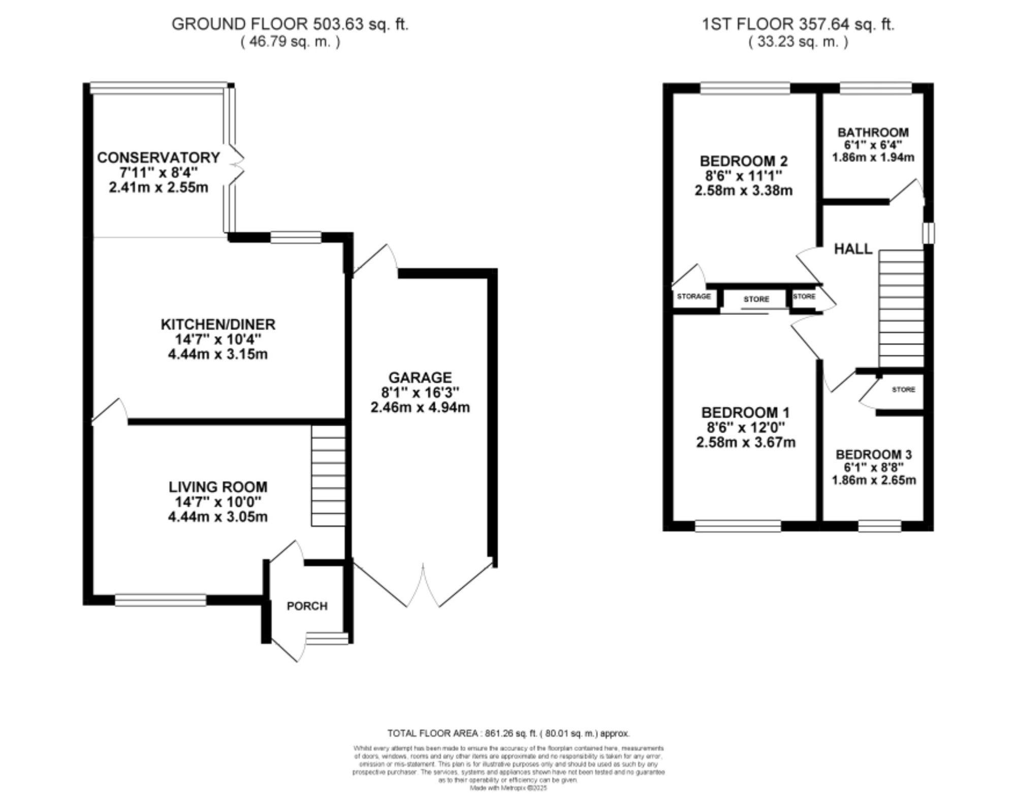
  • Three bedroom link-detached in a sought-after area, built in stone, featuring a welcoming porch and cosy living room with a smooth ground-floor layout.
  • Modern kitchen-diner with white cabinetry, great worktop space, ample storage, and integrated fridge-freezer, dishwasher, oven, and hob.
  • Two double bedrooms and one single, all with built-in storage, plus a family bathroom with vanity wash basin with storage, W/C, and L shaped bath with shower over.
  • Bright glazed conservatory for year-round use, overlooking a sunny South-West garden with patio and lawn. Front tarmacked driveway leads to the garage.
  • Sought-after Stone location close to shops, supermarkets, eateries, healthcare, schools, and strong transport links including roads, buses, and rail.

They say every strong home starts with deep roots, and on Cedars Drive, that feels especially true. Like a cedar tree standing tall through every season, this three bedroom link-detached home in a sought-after area of Stone is built for growth, comfort, and all the moments that matter most. Whether you're planting your very first roots, branching out for more space, or seeking a place that simply feels grounded, this home is ready to welcome you in.

Stepping inside, you’re greeted by a welcoming porch, the perfect place to pause, settle, and shed the day before stepping into the warm heart of the home. From here, the living room unfolds, an inviting space ideal for unwinding, gathering, and letting everyday moments take root beneath a comforting canopy of calm. Branching further inside, you’ll discover the modern kitchen-diner, crisp and bright with white matching cabinetry, generous worktop space, and ample storage. With an integrated fridge-freezer, dishwasher, electric oven, ceramic hob, cooker hood, and moulded wash handbasin, it’s a kitchen designed to make daily life effortless, everything you need already firmly in place. Flowing from the kitchen, the glazed conservatory opens like a sunlit canopy, offering peaceful views of the South-West facing garden beyond. This bright, airy space blurs the line between indoors and out, perfect for morning coffees, quiet reading, or simply enjoying natural light through every season. To complete the ground floor, internal access to the garage adds another strong, practical root to the home, supporting easy and comfortable living.

Heading upstairs, the home continues to branch out with versatility. Two generous double bedrooms, each with built-in storage, offer restful retreats, perfect as a main bedroom, a cosy guest space, or rooms for hobbies, relaxation, or quiet reflection. The third bedroom, also complete with built-in storage, is an ideal single room, suited to a nursery, dedicated home office, study nook, or a creative space where new ideas can take root. Completing the upper floor, the family bathroom provides everyday convenience with a vanity wash basin with storage, W/C, and a L shaped bath with shower over, a soothing place to unwind as the day settles. Outside, the home continues to flourish.

At the rear, the South-West facing garden invites sunshine from late morning to golden evening, perfect for long summer days and warm, glowing afternoons. A generous lawn provides room for children to play or pets to roam, while the patio offers the perfect spot for outdoor dining, evening chats, or simply enjoying your own slice of greenery. To the front, a tarmacked driveway ensures easy, no-fuss parking, keeping life simple and grounded from the moment you arrive, alongside sits the garage, offering secure storage, workspace potential, or even the perfect spot for hobbies to grow.

Just moments from Stone’s vibrant town centre, you’ll find shops, supermarkets, eateries, and healthcare services at your fingertips. Local schools are also within walking distance, making morning routines simple and convenient. With excellent commuter links, including the A34, A51, Stone train station, and nearby bus routes, getting around is effortless, whether you're heading to work, exploring the area, or travelling further afield. Whether you’re starting out, spreading your branches, or looking for a home that feels steady and sure, Cedars Drive stands ready to welcome you, strong, grounded, and full of possibility.

Energy Efficiency Current: 70.0
Energy Efficiency Potential: 76.0

Important Information

  • This is a Freehold property.
  • This Council Tax band for this property is: C

Property Ref: 73eb33c3-51c2-402e-b066-7877929178c4

Share:

Similar Properties

Ridge Croft, Stone, ST15

3 Bedroom Detached House | Offers in excess of £285,000

No time for dull houses, ‘cause this three-bedroom link-detached headliner on Ridge Croft is here to steal the show — an...

Fennel Drive, Stafford, ST17

3 Bedroom Detached Bungalow | Offers in excess of £285,000

Welcome to a home where life slows down just enough for you to truly enjoy it, where mornings are quiet, afternoons are...

Walleys Drive, Newcastle, ST5

5 Bedroom Semi-Detached House | £285,000

Main Character Energy incoming!!! Welcome to Walley's Drive, a spacious five-bed semi in the sought-after residential ar...

Blundell Drive, Stone, ST15

3 Bedroom Detached House | £289,000

Deal yourself a winning hand at Blundell Drive! This three bedroom detached in Stone offers lounge, dining, kitchen, bat...

Blundell Drive, Stone, ST15

3 Bedroom Detached House | £290,000

Stunning detached home with open-plan kitchen, spacious living room, 3 beds, lush garden with decked area, garage, off-r...

Balmoral Close, Stoke-On-Trent, ST4

3 Bedroom Detached House | Offers in excess of £290,000

Corner-plot gem on Balmoral Close! Fully renovated, high-spec & high-gloss, with sleek kitchen, luxury bath & wraparound...

James Du Pavey Estate Agents (Stone)

Christchurch Way, Stone, Staffordshire, ST15 8BZ

01785 814917

How much is your home worth?

Use our short form to request a valuation of your property.

Request a Valuation

Mortgage Calculator

Amount Borrowed: £
Total Amount Repayable: £
Total Monthly Payment: £
©2026 The Guild of Property Professionals. All rights reserved. Terms and Conditions | Privacy Policy | Cookie Policy | Complaints Policy | Members Login
The Guild of Property Professionals Trading Address: 121 Park Lane, London W1K 7AG. GPEA Limited. Registered in England & Wales.  Company No: 02819824.  Registered Office Address: 2 St. Stephen's Court, St. Stephen's Road, Bournemouth, Dorset, England, BH2 6LA.  VAT Registration No: 576 8795 61
Book a Property Valuation Update Cookies Preferences