Ridge Croft, Stone, ST15

Offers in excess of
£285,000
SSTC
This property listing is now SSTC

3 Bedroom Detached House for sale in Stone

3 3 1
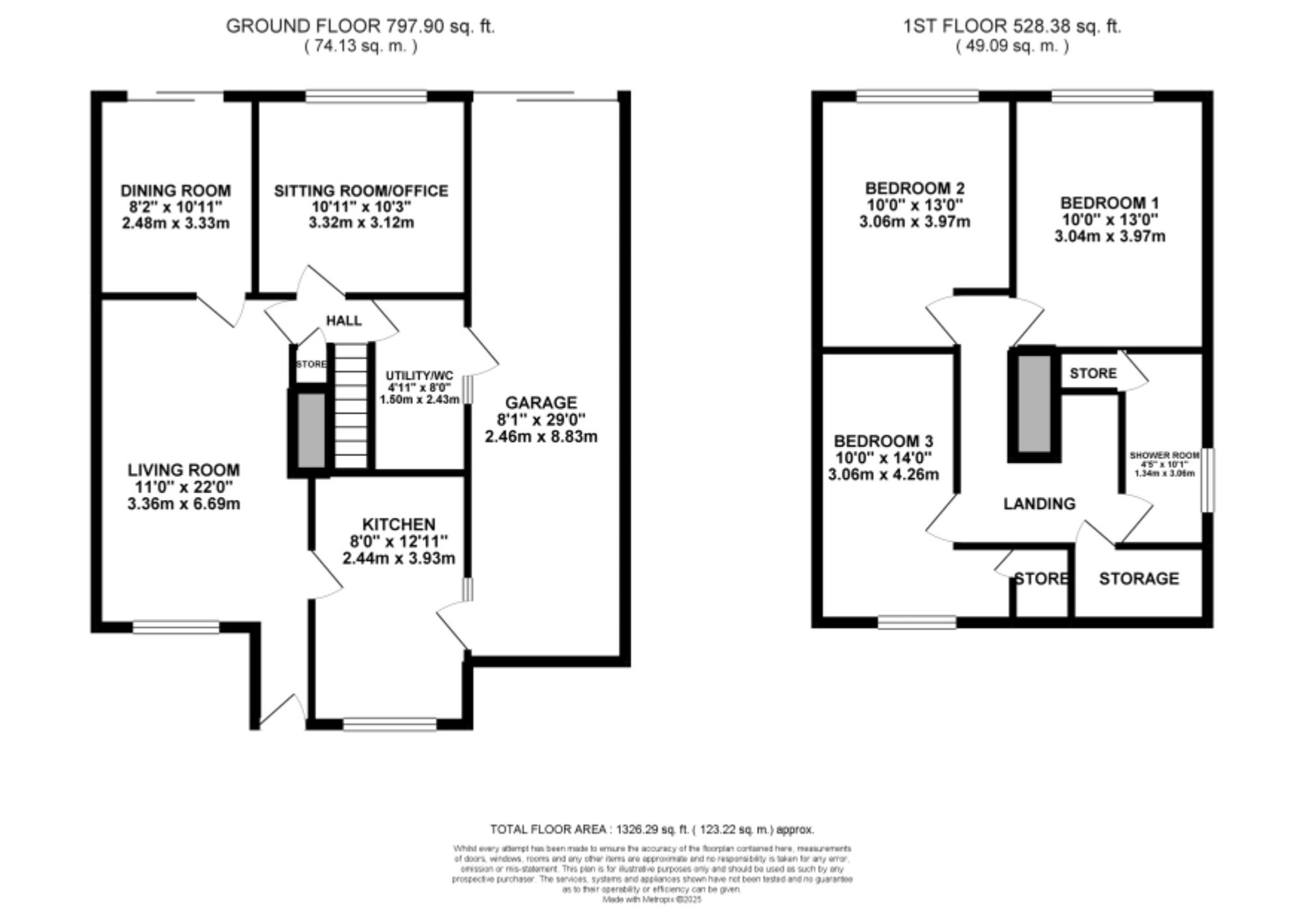
  • Beautiful three-bedroom link-detached home that has been renovated throughout and sits within walking distance of Stone's vibrant centre with an array of amenities and travel links.
  • Three generously sized double bedrooms and the spacious shower room make this home perfect for a growing families or those looking for a little extra space.
  • Bright and spacious living room with a feature brick wall, practical kitchen with plenty of space for appliances, separate utility/WC, dining room, plus a further sitting/office room.
  • Lovely South-West facing rear garden with patio seating space, lush grass lawn and a blooming apple tree.
  • To the front, a well-maintained grass lawn, mature greenery, and a tandem driveway with ample off road parking leading to the expansive garage.

No time for dull houses, ‘cause this three-bedroom link-detached headliner on Ridge Croft is here to steal the show — and yes, it will, it will rock you. Recently treated to a glow-up that would make a glam rock band jealous, this home hits all the right notes: stylish finishes, spacious rooms, and a garden that practically screams for relaxing with family. Nestled within a stone's throw (pun intended) of Stone's lively centre, you are nearby an array of schools, shops, eateries, and supermarkets. Plus with the nearby A51, A34, and Stone train station, commuting is a breeze. Enter into a bright and spacious living room featuring a raw brick feature wall that adds a touch of cosiness. And let's not forget the kitchen – a practical paradise with enough space for all your culinary experiments and then some. The dining room boasts glazed sliding doors looking out to the rear garden. From here, slip into the separate versatile sitting/office room that could be used as an office, playroom for little ones or even a snug. Downstairs is complete with a separate utility and W/C. Perfectly suited for a growing family or those who simply crave a bit of elbow room, this property boasts not one, not two, but THREE generously sized double bedrooms. The shower room features a spacious walk-in shower with a sink, and W/C. Now, let's talk about the cherry on top – or should I say the apple tree in the garden? Step outside to discover a lovely South-West facing rear garden, complete with a patio seating area, a plush grass lawn perfect for picnics or sunbathing, and a majestic apple tree. To the front, you'll find a well-maintained lawn, a tandem driveway with ample off-road parking, and an expansive garage for secure storage. So, if you're in the market for a home that's more than just walls and a roof, if you're searching for a place where comfort meets character, then look no further. So, what are you waiting for? Come on in and make yourself at home!

Energy Efficiency Current: 69.0
Energy Efficiency Potential: 81.0

Important Information

  • This is a Freehold property.
  • This Council Tax band for this property is: D

Property Ref: a61edb02-4831-49c9-b4ca-27d4cda51cb1

Share:

Similar Properties

Friars Avenue, Stone, ST15

3 Bedroom Link Detached House | Offers in excess of £285,000

Stylish and practical 3-bed home on Friars Avenue, Stone. Spacious living areas, sunny garden, garage, and great locatio...

Beacon Rise, Stone, ST15

4 Bedroom Semi-Detached House | Offers in region of £285,000

Rise to the occasion with this spacious 4-bed, 3-storey home on Beacon Rise – full of potential, great frontage, no chai...

Fennel Drive, Stafford, ST17

3 Bedroom Detached Bungalow | Offers in excess of £285,000

Welcome to a home where life slows down just enough for you to truly enjoy it, where mornings are quiet, afternoons are...

Candler Drive, Stone, ST15

3 Bedroom Detached House | Offers in region of £290,000

Modern 3-bed home on Candler Drive, Stone. Bright living room, sleek kitchen, elegant bathrooms, master suite, garage, a...

Blundell Drive, Stone, ST15

3 Bedroom Detached House | £290,000

Stunning detached home with open-plan kitchen, spacious living room, 3 beds, lush garden with decked area, garage, off-r...

Balmoral Close, Stoke-On-Trent, ST4

3 Bedroom Detached House | Offers in excess of £290,000

Corner-plot gem on Balmoral Close! Fully renovated, high-spec & high-gloss, with sleek kitchen, luxury bath & wraparound...

James Du Pavey Estate Agents (Stone)

Christchurch Way, Stone, Staffordshire, ST15 8BZ

01785 814917

How much is your home worth?

Use our short form to request a valuation of your property.

Request a Valuation

Mortgage Calculator

Amount Borrowed: £
Total Amount Repayable: £
Total Monthly Payment: £
©2025 The Guild of Property Professionals. All rights reserved. Terms and Conditions | Privacy Policy | Cookie Policy | Complaints Policy | Members Login
The Guild of Property Professionals Trading Address: 121 Park Lane, London W1K 7AG. GPEA Limited. Registered in England & Wales.  Company No: 02819824.  Registered Office Address: 2 St. Stephen's Court, St. Stephen's Road, Bournemouth, Dorset, England, BH2 6LA.  VAT Registration No: 576 8795 61
Book a Property Valuation Update Cookies Preferences