Strode Road, Street

£228,500
SSTC
This property listing is now SSTC

2 Bedroom Semi-Detached House for sale in Street

1 2 1
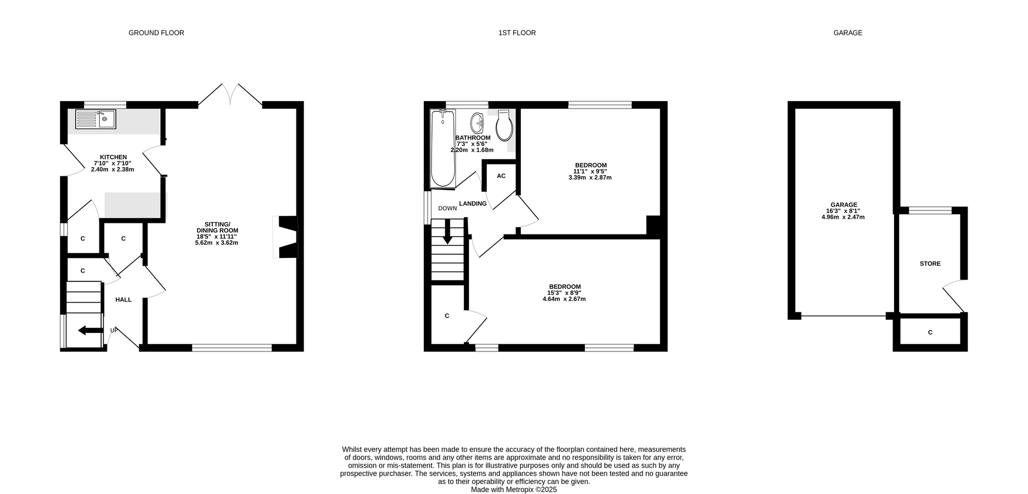
  • Spacious semi-detached home with scope for modernisation and updating throughout, offering an excellent opportunity to create a comfortable property tailored to personal taste.
  • Entrance hall with stairs rising to the first floor landing, useful under-stair storage cupboard, and access to both the sitting/dining room and the kitchen.
  • Sitting/dining room with front-facing window, fireplace with wooden surround, and patio doors opening directly onto the rear garden, allowing plenty of natural light.
  • Kitchen fitted with a range of wall, base, and drawer units with work surfaces over, pantry cupboard, and space for appliances including a cooker, washing machine, and fridge/freezer.
  • Two generous double bedrooms, with bedroom one enjoying twin front-facing windows and a built-in wardrobe, while bedroom two overlooks the rear garden.
  • Family bathroom fitted with a panelled bath and electric shower over, wash hand basin, and WC.
  • Enclosed rear garden with lawn and extended patio, enjoying plenty of sun through spring and summer, plus driveway parking and a single garage with metal up-and-over door.

This well-proportioned semi-detached home offers two double bedrooms, sitting/dining room, kitchen, and bathroom. Now in need of modernisation, it provides scope for improvement while benefitting from driveway parking, a single garage, a front garden with mature plants, and an enclosed rear garden with lawn and patio.

Location
Strode Road is situated on the eastern side of Street conveniently placed for Crispin School, Millfield School and the Strode complex of College, Theatre and indoor pool. Street is a thriving mid Somerset town famous as the home of Clarks Shoes and popular with shoppers visiting the Clarks Village retail centre. The nearby town of Glastonbury is an interesting historic centre also providing an alternative place to shop.

Directions
Follow the High Street, Bear Inn on your right, to a mini roundabout. Take the second exit onto Church Road. Turn right into Strode Road and continue along the road for a distance, pass the right hand turn into Downside and continue along, the property can be found on the right hand side and will be easily identified by our for sale board.

Material Information
All available property information can be provided upon request from Holland & Odam. For confirmation of mobile phone and broadband coverage, please visit checker.ofcom.org.uk

Identity Verification
To ensure full compliance with current legal requirements, all buyers are required to verify their identity and risk status in line with anti-money laundering (AML) regulations before we can formally proceed with the sale. This process includes a series of checks covering identity verification, politically exposed person (PEP) screening, and AML risk assessment for each individual named as a purchaser. In addition, for best practice, we are required to obtain proof of funds and where necessary, to carry out checks on the source of funds being used for the purchase. These checks are mandatory and must be completed regardless of whether the purchase is mortgage-funded, cash, or part of a related transaction. A disbursement of £49 per individual (or £75 per director for limited company purchases) is payable to cover all aspects of this compliance process. This fee represents the full cost of conducting the required checks and verifications. You will receive a secure payment link and full instructions directly from our compliance partner, Guild365, who carry out these checks on our behalf.

Important Information

  • This is a Freehold property.
  • This Council Tax band for this property is: B

Property Ref: SCJ824630

Share:

Similar Properties

Kingston Close, Street

3 Bedroom Semi-Detached House | £225,000

A fantastic opportunity to acquire this well-presented three-bedroom semi-detached home, offering spacious accommodation...

Clockhouse View, Street

2 Bedroom Coach House | £219,950

Advantageously available with no onward chain and vacant possession is this attractive and well designed coach house sty...

Moorland Road, Street

2 Bedroom Terraced House | £218,750

A beautifully presented two-bedroom mid-terrace home, offering stylish and modern accommodation throughout. This turnkey...

Strode Road, Street

2 Bedroom Semi-Detached House | £235,000

Beautifully presented two-bedroom semi-detached home, ideally positioned within a popular residential area on the easter...

Strode Road, Street

2 Bedroom Not Specified | £235,000

We are pleased to bring to the market a neatly presented and well maintained two bedroom semi-detached house with scope...

Gould Close, Street

2 Bedroom Semi-Detached House | £235,000

A well-presented two-bedroom semi-detached home offering bright and comfortable accommodation in a popular residential a...

Holland & Odam (Street)

Street, Somerset, BA16 0BJ

01458 841411

How much is your home worth?

Use our short form to request a valuation of your property.

Request a Valuation

Mortgage Calculator

Amount Borrowed: £
Total Amount Repayable: £
Total Monthly Payment: £
©2026 The Guild of Property Professionals. All rights reserved. Terms and Conditions | Privacy Policy | Cookie Policy | Complaints Policy | Members Login
The Guild of Property Professionals Trading Address: 121 Park Lane, London W1K 7AG. GPEA Limited. Registered in England & Wales.  Company No: 02819824.  Registered Office Address: 2 St. Stephen's Court, St. Stephen's Road, Bournemouth, Dorset, England, BH2 6LA.  VAT Registration No: 576 8795 61
Book a Property Valuation Update Cookies Preferences