Meadow Lane, Walton

£299,950
SSTC
This property listing is now SSTC

3 Bedroom Detached House for sale in Street

2 3 2
  • Attractively priced by highly motivated vendors
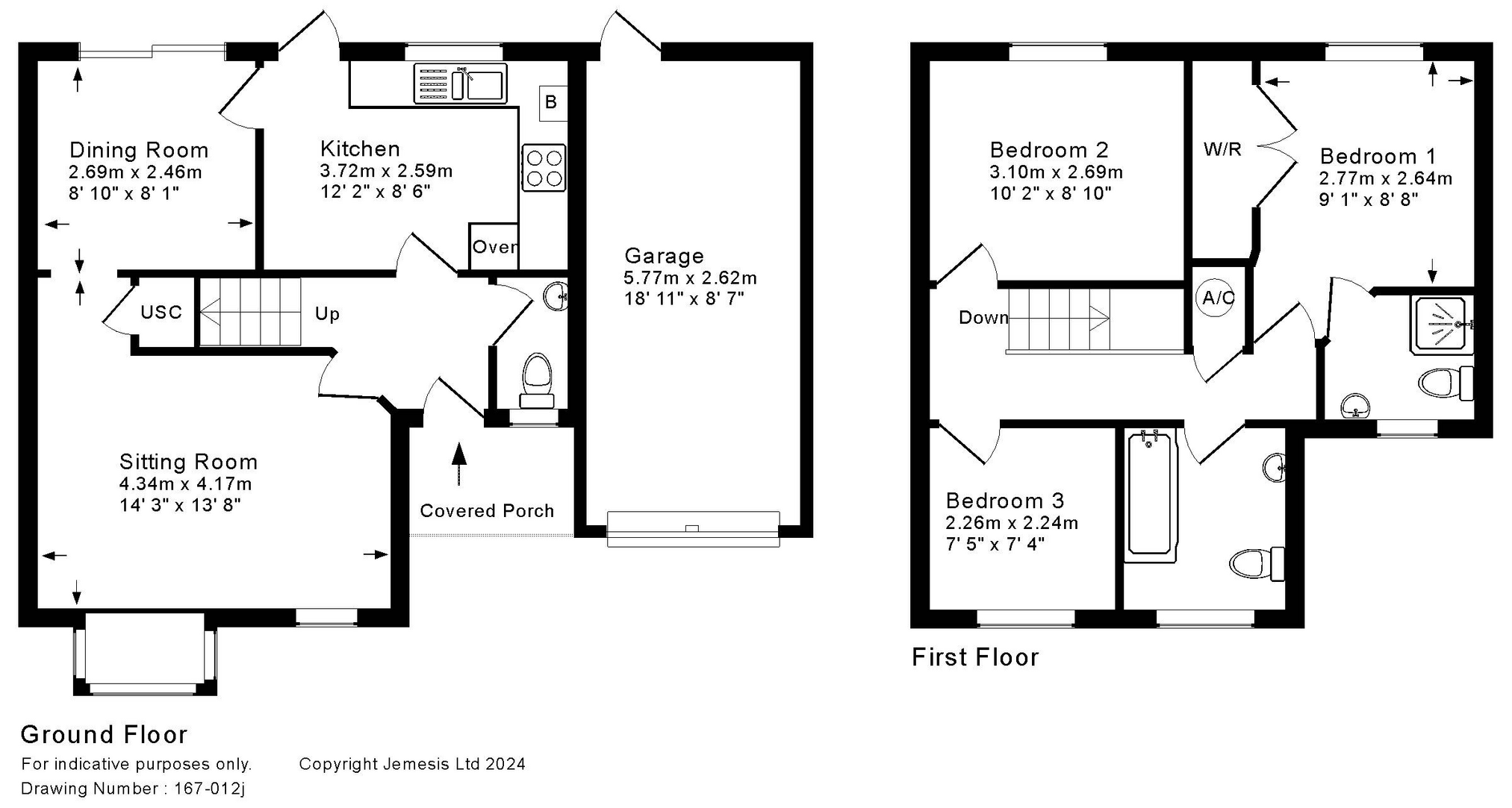
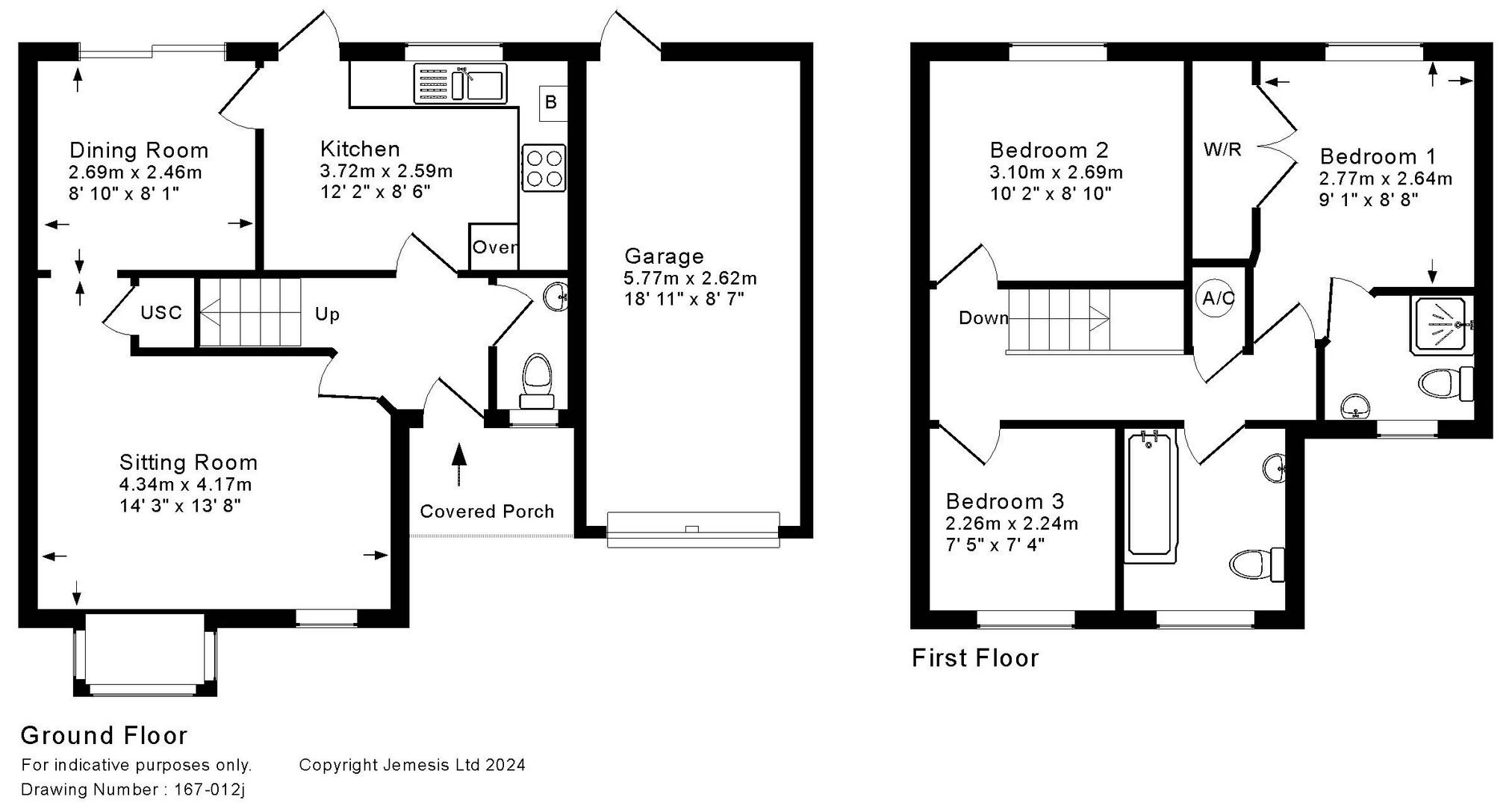
  • Entrance hall with cloakroom off
  • Sitting room with understairs cupboard and a feature box bay window
  • Dining room leading through to a well equipped kitchen with access to the garden
  • Three bedrooms (master bedroom with en suite and built-in wardrobe) and a family bathroom
  • Gas fired central heating and UPVC double glazing throughout
  • Landscaped garden to the rear with well stocked flower beds and a nature pond - a real gardeners' garden. Enjoying a good degree of privacy
  • Generous attached garage/workshop to the side of the property with further hardstanding to the front
  • No onward chain

A well maintained, detached house built in 1999 within a popular village development and enjoying a lovely, mature garden to the front and rear. Close to a very popular primary school and offered for sale with no onward chain. Viewing highly recommended.

Location
Set in a central location within the small and popular village of Walton which adjoins the western edge of Street in mid-Somerset. Local amenities including a Church, highly regarded Primary School, village hall and an excellent eating pub, The Royal Oak. The thriving centre of Street is c.1 mile away and offers more comprehensive facilities including both indoor and open air swimming pools, Strode Theatre and the complex of factory shopping outlets in Clarks Village. The historic town of Glastonbury is 3 miles and the Cathedral City of Wells 9 miles. The nearest M5 motorway interchange at Dunball, Bridgwater, (Junction 23) is 11 miles, whilst Bristol, Bath, Taunton and Yeovil are all within commuting distance.

Directions
From Street proceed in a westerly direction on the A39 towards Bridgwater. Enter the village of Walton and pass Rowes garage on the right and the Rotal Oak pub on the left. Turn right into Meadow Lane where the property will be found with a for sale board displayed.

Material Information
All available property information can be provided upon request from Holland & Odam. For confirmation of mobile phone and broadband coverage, please visit checker.ofcom.org.uk

Identity Verification
To ensure full compliance with current legal requirements, all buyers are required to verify their identity and risk status in line with anti-money laundering (AML) regulations before we can formally proceed with the sale. This process includes a series of checks covering identity verification, politically exposed person (PEP) screening, and AML risk assessment for each individual named as a purchaser. In addition, for best practice, we are required to obtain proof of funds and where necessary, to carry out checks on the source of funds being used for the purchase. These checks are mandatory and must be completed regardless of whether the purchase is mortgage-funded, cash, or part of a related transaction. A disbursement of £49 per individual (or £75 per director for limited company purchases) is payable to cover all aspects of this compliance process. This fee represents the full cost of conducting the required checks and verifications. You will receive a secure payment link and full instructions directly from our compliance partner, Guild365, who carry out these checks on our behalf.

Important Information

  • This is a Freehold property.
  • This Council Tax band for this property is: D

Property Ref: SCJ497999

Share:

Similar Properties

Vestry Road, Street

3 Bedroom Character Property | £299,950

Beautifully presented and tastefully decorated throughout, this three-bedroom Victorian end-of-terrace home offers more...

Cranhill Road, Street

3 Bedroom Semi-Detached House | £295,000

An imposing three bedroom semi detached home, well positioned within a short and level walk of Street High Street, Clark...

Pearmain Road, Street

3 Bedroom Semi-Detached House | £295,000

Situated in a popular area of the town along a quiet no-through road, this light, bright and well-maintained three-bedro...

Holm Oaks, Butleigh

3 Bedroom Semi-Detached House | £305,000

An attractive three-bedroom semi-detached home, beautifully presented and tastefully decorated throughout, offering well...

Goss Drive, Street

3 Bedroom Semi-Detached House | £305,000

An attractive three-bedroom semi-detached home offering well-proportioned and versatile accommodation, neatly presented...

Oakfield Road, Street

3 Bedroom Semi-Detached Bungalow | £307,950

This delightful semi-detached three-bedroom bungalow is beautifully presented and tastefully decorated throughout, offer...

Holland & Odam (Street)

Street, Somerset, BA16 0BJ

01458 841411

How much is your home worth?

Use our short form to request a valuation of your property.

Request a Valuation

Mortgage Calculator

Amount Borrowed: £
Total Amount Repayable: £
Total Monthly Payment: £
©2026 The Guild of Property Professionals. All rights reserved. Terms and Conditions | Privacy Policy | Cookie Policy | Complaints Policy | Members Login
The Guild of Property Professionals Trading Address: 121 Park Lane, London W1K 7AG. GPEA Limited. Registered in England & Wales.  Company No: 02819824.  Registered Office Address: 2 St. Stephen's Court, St. Stephen's Road, Bournemouth, Dorset, England, BH2 6LA.  VAT Registration No: 576 8795 61
Book a Property Valuation Update Cookies Preferences