Lightwater, Surrey, GU18

Offers in excess of
£425,000

2 Bedroom Semi-Detached House for sale in Surrey

2 2 1

Centrally located in the heart of Lightwater Village this two bedroom semi detached period property is full of character charm and fused with modern elements.

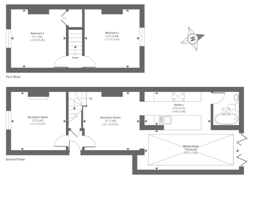
Traditionally laid out you will find a cozy sitting room to the front which features a open fireplace and a dining room to the rear that is open plan to the kitchen and the extended reception area. Flooded with natural light via the overhead lantern, there is flexibility in how you can use this area, and the open plan nature of the property lends itself well to becoming a entertaining space.

The kitchen is fitted with a range of high gloss units, squared edge worktops and integrated appliances and the bathroom has also been fitted to a good standard and is also located on the ground floor.

Heading upstairs you will find two generous double bedrooms of the same size.

To the rear the large garden offers a blank canvass for the keen gardener to restore and make their own.

Lightwater is a popular Surrey village location that features well regarded schools and a range of independent businesses. Transport links are nearby. By road, Central London is around 27 miles away and is easily reached via the M3, the M4 and the M25. Heathrow Airport is about 11 miles away and Gatwick is about 35 miles distant. Regular train services to London (Waterloo) are available from Bagshot, Woking or Sunningdale. Ascot, 3.9 miles away, and the surrounding towns of Camberley, Woking and the villages are well known for their boutiques, bars, brasseries and traditional country public houses. The area also boasts some of the finest restaurants, with The Latymer at Pennyhill Park Hotel & Spa in Bagshot and The Dorchester Collection Coworth Park in Ascot.


Important Information

  • This is a Freehold property.

Property Ref: 48614647_HOR230221

Share:

Similar Properties

Bagshot, Surrey, GU19

3 Bedroom Semi-Detached House | Offers Over £425,000

Positioned on the Connaught Park estate, sits this well proportioned, three bedroom semi-detached property, occupying a...

Lightwater, Surrey, GU18

2 Bedroom Semi-Detached House | Guide Price £425,000

Set within the heart of Lightwater village, this two-bedroom cottage occupies a generous plot, and offers great potentia...

Windlesham, Surrey, GU20

2 Bedroom Terraced House | Offers in excess of £400,000

Situated in the heart of Windlesham village, this well presented two-bedroomed mid-terrace house has been updated throug...

Lightwater, Surrey, GU18

3 Bedroom Semi-Detached House | Guide Price £438,500

Situated within a private cul de sac, in the heart of the sought-after Lightwater Village, this well-presented three-bed...

Lightwater, Surrey, GU18

3 Bedroom Terraced House | Guide Price £440,000

Perfectly presented throughout, this three-bedroom terrace property is situated within the heart of the sought-after Lig...

Lightwater, Surrey, GU18

3 Bedroom Semi-Detached House | Offers in excess of £450,000

Located within a popular family-orientated area, this three bedroom semi-detached is within easy reach of the Lightwater...

Seymours (Lightwater)

Lightwater, Surrey, GU18 5SS

01276 535451

How much is your home worth?

Use our short form to request a valuation of your property.

Request a Valuation

Mortgage Calculator

Amount Borrowed: £
Total Amount Repayable: £
Total Monthly Payment: £
©2025 The Guild of Property Professionals. All rights reserved. Terms and Conditions | Privacy Policy | Cookie Policy | Complaints Policy | Members Login
The Guild of Property Professionals Trading Address: 121 Park Lane, London W1K 7AG. GPEA Limited. Registered in England & Wales.  Company No: 02819824.  Registered Office Address: 2 St. Stephen's Court, St. Stephen's Road, Bournemouth, Dorset, England, BH2 6LA.  VAT Registration No: 576 8795 61
Book a Property Valuation Update Cookies Preferences