Woking, Surrey, GU21

Offers Over
£360,000
SSTC
This property listing is now SSTC

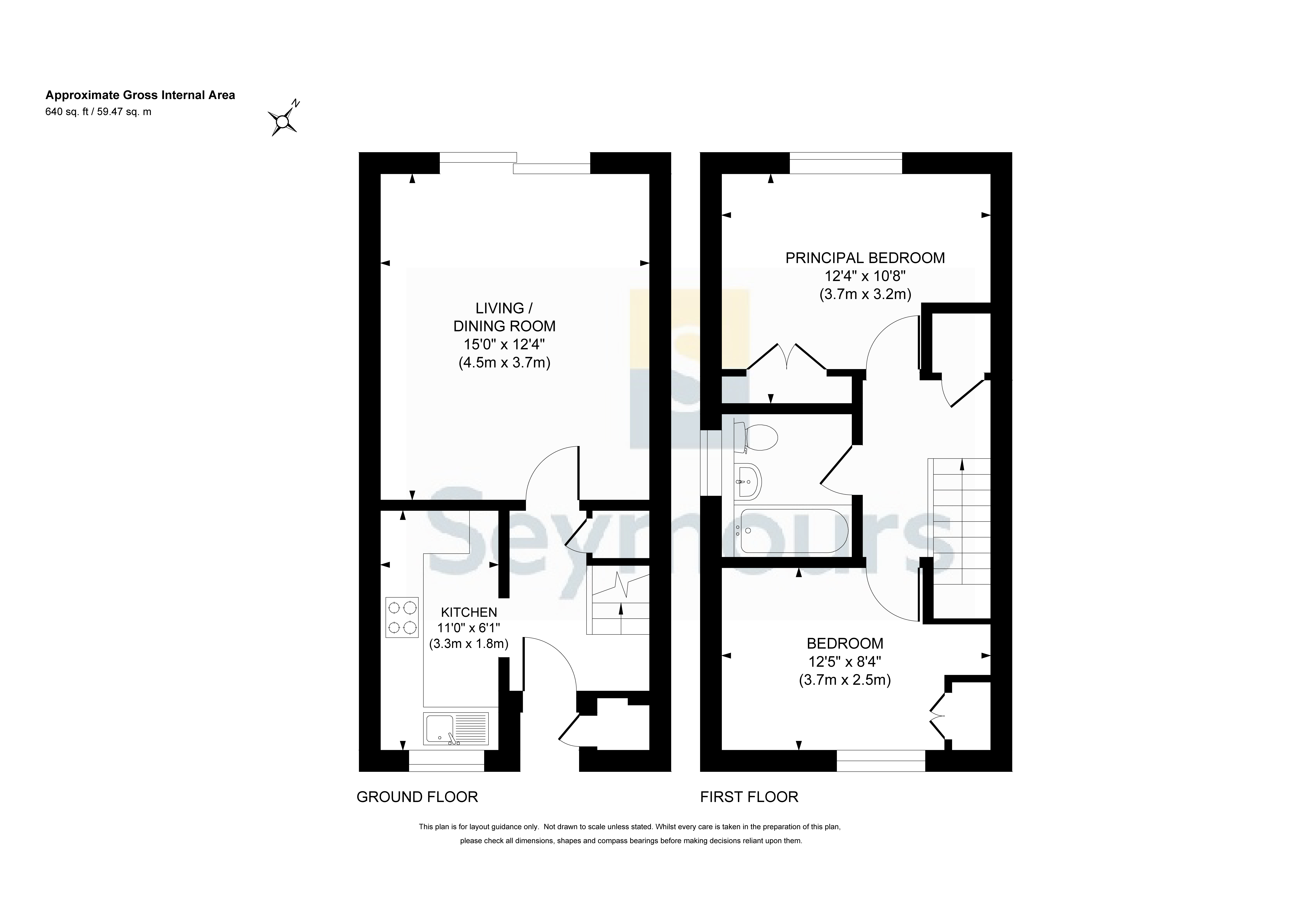
2 Bedroom End of Terrace House for sale in Surrey

1 2 1
  • Two Double Bedroom Terrace Home
  • Courtyard Setting
  • Lounge/Diner
  • Gas Central Heating
  • Garage in Nearby Block
  • Garden
  • Popular Cul-De-Sac
  • Access to Mainline Station and Town Centre
  • Buy to Let Opportunity

Beautifully renovated end-of-terrace home with spacious corner plot garden

Fully renovated throughout, this stylish modern end-of-terrace house offers a perfect blend of contemporary living and a peaceful setting. The property features two well-proportioned bedrooms, a spacious reception room, and a sleek, modern bathroom all finished to a high standard with attention to detail.

Set on a desirable corner plot, the home enjoys a generous wraparound garden and patio area, ideal for outdoor entertaining or simply relaxing in privacy. Additional benefits include residents’ parking and a garage, providing both convenience and secure storage.

With its fresh modern design, move-in-ready condition, and attractive setting, this home will appeal to a wide range of buyers seeking comfort, style, and practicality.

Contact us today to arrange a viewing and experience this beautifully refurbished home for yourself.

Woking has a thriving town centre offering extensive shopping, dining and leisure facilities including The New Victoria Theatre & Cinema, and the Lightbox Gallery. For golfers there is a choice of clubs including, Woking Golf Club (one of the oldest in the U.K. founded in 1893), Westhill, Hoebridge, Worplesdon, Chobham and Foxhills (including spa and hotel). Both the Basingstoke Canal and the River Wey are close by for walking, cycling and fishing (permit required), whilst nearby Chobham Common is a National Nature Reserve.

The area is well served by both state and private schools including: Goldsworth Primary, Hoe Bridge, Halstead St. Andrew's, Greenfield, Woking High School, St Dunstan’s, Hoe Valley and St John the Baptist School.

Important Information

  • This is a Freehold property.

Property Ref: WOK211140

Share:

Similar Properties

Woking, Surrey, GU21

2 Bedroom Apartment | Offers Over £360,000

This bright and well-presented two-bedroom first-floor apartment offers spacious, modern living. The property features a...

Monument Road, Woking, Surrey, GU21

2 Bedroom Apartment | £355,000

** Phase 1 – 100% SOLD ** Britannia Wharf, Woking, offers you a unique approach to living in this delightful Surrey town...

Monument Road, Woking, Surrey, GU21

2 Bedroom Apartment | £350,000

Britannia Wharf, Woking, offers you a unique approach to living in this delightful Surrey town. Situated in a beautiful...

Monument Road, Woking, Surrey, GU21

2 Bedroom Apartment | £365,000

** Phase 1 – 100% SOLD ** Britannia Wharf, Woking, offers you a unique approach to living in this delightful Surrey town...

Monument Road, Woking, Surrey, GU21

2 Bedroom Apartment | £370,000

** Phase 1 – 100% SOLD ** Britannia Wharf, Woking, offers you a unique approach to living in this delightful Surrey town...

150 High Street, Woking, Surrey, GU22

2 Bedroom Apartment | Guide Price £375,000

This sympathetic and sensitive conversion of a 15th century public house includes this contemporary two bedroom garden a...

Seymours (Woking)

Woking, Surrey, GU21 6XR

01483 757700

How much is your home worth?

Use our short form to request a valuation of your property.

Request a Valuation

Mortgage Calculator

Amount Borrowed: £
Total Amount Repayable: £
Total Monthly Payment: £
©2026 The Guild of Property Professionals. All rights reserved. Terms and Conditions | Privacy Policy | Cookie Policy | Complaints Policy | Members Login
The Guild of Property Professionals Trading Address: 121 Park Lane, London W1K 7AG. GPEA Limited. Registered in England & Wales.  Company No: 02819824.  Registered Office Address: 2 St. Stephen's Court, St. Stephen's Road, Bournemouth, Dorset, England, BH2 6LA.  VAT Registration No: 576 8795 61
Book a Property Valuation Update Cookies Preferences