Woking, Surrey, GU21

Offers in excess of
£375,000
SSTC
This property listing is now SSTC

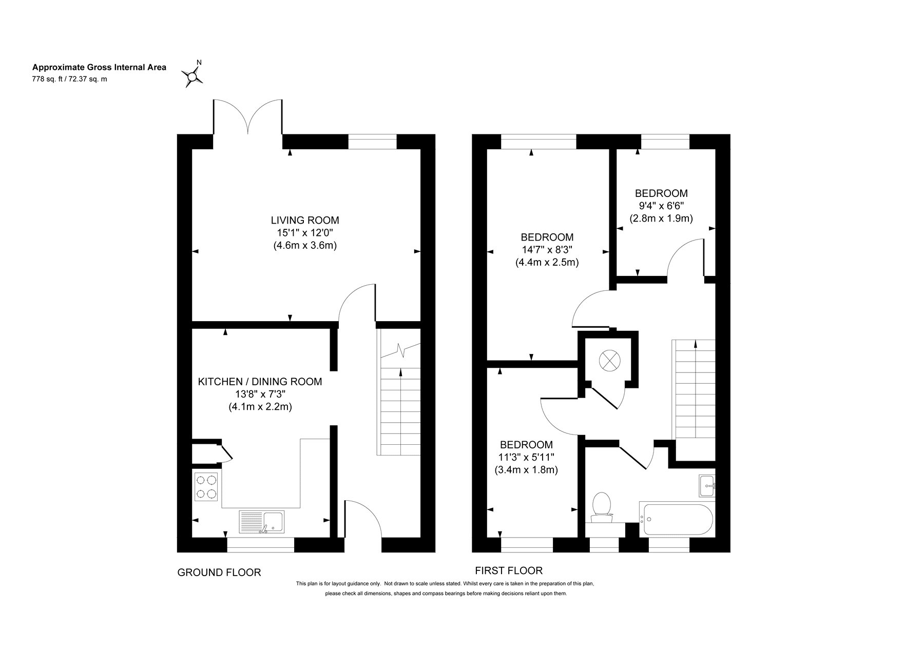
3 Bedroom Terraced House for sale in Surrey

1 3 1
  • Kitchen/Breakfast Room
  • Recently Updated Bathroom
  • Rear Garden Approx. 40ft in Length
  • There Bedrooms
  • Close to Numerous Schools
  • Within Easy Reach of Bus Links Offering Easy Access to Woking Town Centre
  • Close to Shops

This beautifully presented three-bedroom mid terraced home offers stylish and comfortable living, ideal for first-time buyers, families, or investors alike.
Step inside to discover a spacious kitchen/breakfast room, fitted with a range of base and eye level units topped with sleek black granite worktops, perfect for everyday dining and entertaining. The rear aspect lounge is bright and welcoming, with views over the private garden, creating a relaxing living space.
Upstairs, you'll find three bedrooms and a recently updated bathroom featuring a contemporary suite complemented by stylish grey tiling for a modern and sophisticated finish.
To the rear, the garden extends to approximately 40ft, offering a great space for outdoor dining, play or relaxation.
Situated in a popular residential area, the property is conveniently located close to local shops, numerous schools, and excellent bus links offering easy access to Woking town centre.
Early viewing is highly recommended to fully appreciate all this wonderful home has to offer.

Location
St Johns village has a bustling high street providing a good range of day-to-day shops as well as enjoying the delights of the Basingstoke Canal with its pretty tow paths. Woking is a short distance away which has excellent shopping facilities as well as one of the best services to Waterloo stations anywhere in the area. The village has access to several good primary schools as well as Winston Churchill secondary school.

Important Information

  • This is a Freehold property.

Property Ref: 58085_KNA220167

Share:

Similar Properties

Knaphill, Woking, Surrey, GU21

3 Bedroom End of Terrace House | Offers in excess of £375,000

This attractive end-of-terrace home is ideally located within easy reach of Knaphill Village, which offers a variety of...

Knaphill, Woking, GU21

3 Bedroom Semi-Detached House | Guide Price £375,000

Charming 3-Bedroom Semi-Detached Character Home in the Heart of Knaphill Village – No Onward ChainOffered to the ma...

Knaphill, Woking, Surrey, GU21

2 Bedroom Terraced Bungalow | £375,000

This Selsey II bungalow is offered to the market in excellent condition, having been modernised by the current owner and...

Knaphill, Woking, GU21

2 Bedroom Bungalow | Offers in excess of £385,000

A Selsey II bungalow that enjoys and enviable spot overlooking a small green, offered to the market with no onward chain...

Knaphill, Woking, Surrey, GU21

3 Bedroom Semi-Detached House | Offers in excess of £385,000

3-Bedroom Semi-Detached Home with Large Garden, Driveway & OutbuildingThis three-bedroom semi-detached home offers three...

Bisley, Woking, Surrey, GU24

2 Bedroom Terraced House | £389,950

This well-presented two-bedroom mid-terrace home is ideally located in a quiet cul-de-sac within a popular residential a...

Seymours (Knaphill)

Knaphill, Surrey, GU21 2PP

01483 798969

How much is your home worth?

Use our short form to request a valuation of your property.

Request a Valuation

Mortgage Calculator

Amount Borrowed: £
Total Amount Repayable: £
Total Monthly Payment: £
©2026 The Guild of Property Professionals. All rights reserved. Terms and Conditions | Privacy Policy | Cookie Policy | Complaints Policy | Members Login
The Guild of Property Professionals Trading Address: 121 Park Lane, London W1K 7AG. GPEA Limited. Registered in England & Wales.  Company No: 02819824.  Registered Office Address: 2 St. Stephen's Court, St. Stephen's Road, Bournemouth, Dorset, England, BH2 6LA.  VAT Registration No: 576 8795 61
Book a Property Valuation Update Cookies Preferences