Woking, Surrey, GU22

£1,600,000

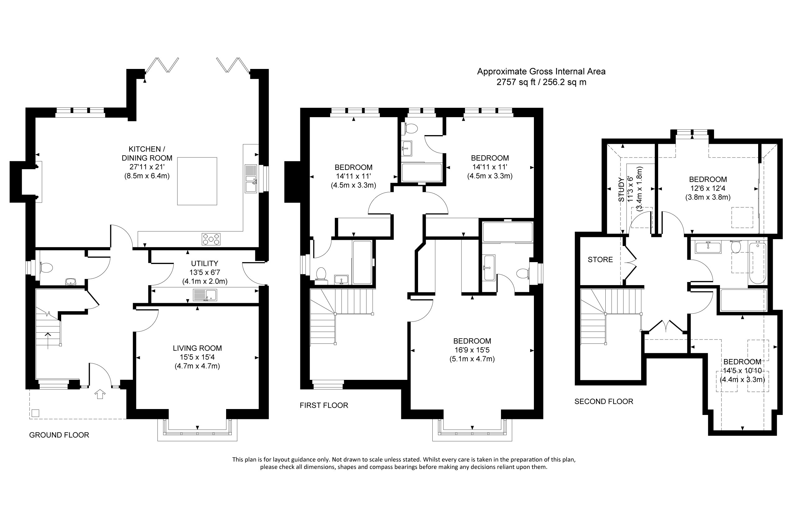
5 Bedroom Detached House for sale in Surrey

2 5 4
  • 5-bedroom detached home set over three floors
  • Open-plan kitchen/dining with fireplace & wood stove
  • Quartz worktops, AEG appliances & luxury finishes
  • Master suite with dressing room & en-suite
  • Underfloor heating, air source heat pump & EV charger
  • Double garage with private driveway
  • Exclusive cul-de-sac of just five homes
  • Excellent local schools – ideal for families
  • London Waterloo in under 30 minutes
  • Surrey countryside and green spaces nearby

A luxury 5-bedroom detached family home in Woking. Featuring designer interiors, a statement kitchen, dressing suite, double garage with EV charger, and top Surrey schools nearby. Just 30 mins to London Waterloo.

Welcome to Peliforde Place, an exclusive private development in Woking where luxury living meets family practicality. This is a remarkable five-bedroom detached residence offering elegant interiors, a double garage, and eco-conscious features. Perfectly positioned just 30 minutes from London Waterloo and surrounded by top-rated Surrey schools, this home is designed for discerning families seeking more space, privacy, and lifestyle without compromising on connectivity.

The Heart of the Home
At the centre of this home is a stunning open-plan kitchen, dining, and family space—a place to gather, entertain, and create memories. A statement fireplace with wood-burning stove brings warmth and charm, while sleek AEG appliances, quartz and marble worktops, and a separate utility room with full-size fridge and freezer combine designer flair with everyday convenience.

Elegant Living & Finishes
Throughout the ground floor, engineered wood flooring provides a sophisticated yet durable finish. Upstairs, sumptuous carpeting in all bedrooms adds comfort underfoot. Underfloor heating and an energy-efficient air source heat pump ensure this home is as practical as it is beautiful, while an integrated EV charger makes it future-ready.

Bedrooms Designed for Comfort
Spread across three levels, the home offers five spacious bedrooms, each designed with families in mind. The luxurious master suite boasts a private dressing area and a stylish en-suite.

Other bedrooms feature built-in wardrobes and sleek bathrooms, offering every family member their own space and privacy.

Key Features at a Glance
• Spacious 5-bedroom detached family home arranged across three versatile floors
• Striking open-plan kitchen/dining with statement fireplace and wood-burning stove
• Sleek quartz and marble worktops, AEG appliances and elegant flooring throughout
• Luxurious master suite with private dressing room and designer en-suite bathroom
• Eco-conscious living with underfloor heating, air source heat pump and integrated EV charger
• Private double garage and secure driveway parking for multiple vehicles
• Exclusive development of just five detached homes in a quiet cul-de-sac
• Excellent Surrey schools within easy reach – ideal for relocating families
• Fast trains to London Waterloo in under 30 minutes for effortless commuting
• Surrey countryside, parks and green spaces on your doorstep for family leisure
Family-Friendly Location
• Top-rated Surrey schools within easy reach – ideal for families relocating from London
• London Waterloo in under 30 minutes, making the commute simple and stress-free
• Midway between Woking's vibrant town centre and the charming village of West Byfleet
• A wealth of cafés, restaurants, leisure facilities, and boutique shops close by
• Surrounded by Surrey countryside and green spaces—perfect for family walks and weekend adventures

This outstanding house at Peliforde Place isn't just a home—it's a lifestyle. Blending London-level sophistication with the space, greenery, and community of Surrey, it's the perfect next step for discerning families ready to upgrade their lifestyle.

With only five homes in this private cul-de-sac, opportunities at Peliforde Place are limited- book your appointment with Seymours before these exclusive homes are reserved

Estate Management Charge approximately £300 per annum
Please note: internal images are taken from Plot 3, with some rooms digitally dressed. All computer-generated images (CGIs), photographs, and floorplans are for illustrative purposes only and may not represent the final appearance or specification of the property. Layouts, finishes, and landscaping are subject to change during construction




Important Information

  • This is a Freehold property.

Property Ref: 57180_LNH240085

Share:

Similar Properties

Woking, Surrey, GU22

5 Bedroom Detached House | £1,550,000

Plot 5 at Peliforde Place – a 5-bedroom detached family home in Woking. Featuring high-spec interiors, flexible liv...

West Byfleet, Surrey, KT14

4 Bedroom Detached House | Guide Price £1,240,000

CHAIN FREE. Set within a lovely plot and conveniently situated within walking distance of West Byfleet village centre an...

West Byfleet, Surrey, KT14

5 Bedroom Detached House | From £1,200,000

A RARE INVESTMENT OPPORTUNITY An excellent chance to acquire 5 tenanted flats, currently generating a total rental incom...

Seymours (West Byfleet)

Station Approach, West Byfleet, Surrey, KT14 6NG

01932 354494

How much is your home worth?

Use our short form to request a valuation of your property.

Request a Valuation

Mortgage Calculator

Amount Borrowed: £
Total Amount Repayable: £
Total Monthly Payment: £
©2025 The Guild of Property Professionals. All rights reserved. Terms and Conditions | Privacy Policy | Cookie Policy | Complaints Policy | Members Login
The Guild of Property Professionals Trading Address: 121 Park Lane, London W1K 7AG. GPEA Limited. Registered in England & Wales.  Company No: 02819824.  Registered Office Address: 2 St. Stephen's Court, St. Stephen's Road, Bournemouth, Dorset, England, BH2 6LA.  VAT Registration No: 576 8795 61
Book a Property Valuation Update Cookies Preferences