Woking, Surrey, GU22

£1,550,000

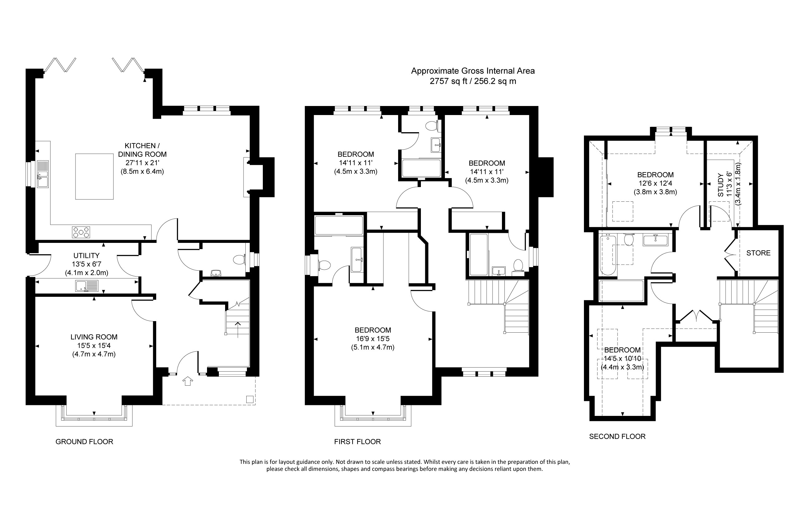
5 Bedroom Detached House for sale in Surrey

3 5 4
  • 5 bedroom detached family home set over 3 floors
  • Elegant open-plan kitchen/dining with bi-fold doors to garden
  • Bright bay-fronted living room with natural light
  • Master suite with walk-in wardrobe and en-suite
  • Two further en-suites plus family bathrooms
  • Dedicated study – perfect for working from home
  • Landscaped rear garden and private outdoor space
  • Parking for two cars
  • Exclusive development of just five detached homes
  • Under 30 minutes to London Waterloo

Plot 5 at Peliforde Place – a 5-bedroom detached family home in Woking. Featuring high-spec interiors, flexible living over three floors, landscaped gardens, and excellent Surrey schools. Just 30 minutes to London Waterloo.

An exceptional five-bedroom family home in a prime Surrey location – designed for London families seeking more space, privacy, and lifestyle. Plot 5 at Peliforde Place combines timeless architecture with high-spec modern living in an exclusive enclave of just five detached homes.

The Heart of the HomeThe ground floor has been carefully designed for family life. At the front, a welcoming living room with a classic bay window is filled with natural light. To the rear, the open-plan kitchen and dining room is the true centrepiece of the home, with a central island, sleek finishes, and elegant bi-fold doors opening directly onto the landscaped garden. A separate utility room, cloakroom, and practical storage complete the space – balancing style with everyday convenience.

Bedrooms & Flexible LivingOn the first floor, the master suite is a private retreat, complete with walk-in wardrobe and a luxury en-suite shower room. A second bedroom also enjoys its own en-suite, while a further double bedroom is served by a beautifully appointed family bathroom.The top floor offers outstanding flexibility – two additional bedrooms, a dedicated study for remote working, and a second family bathroom. Clever built-in storage ensures every inch of the home is maximised.

Outdoor Space & ParkingThe landscaped rear garden provides a private and peaceful escape, ideal for summer entertaining or family play.

Location & LifestylePeliforde Place sits in a serene leafy setting, while remaining just a short walk from the amenities of Woking town centre and station. With fast trains to London Waterloo in under 30 minutes, it's perfect for commuters who want space without losing connectivity.Excellent Surrey schools close by – ideal for relocating familiesEasy access to shops, cafés, restaurants, and leisure facilities in WokingScenic countryside and green spaces on your doorstep for weekend walks and family adventures

Plot 5 at Peliforde Place is more than a home – it's a lifestyle upgrade. With high-spec interiors, private outdoor space, and unbeatable London connections, it's the perfect move for families ready to exchange city life for refined Surrey living.

Please note: All computer-generated images (CGIs), photographs, and floorplans are for illustrative purposes only and may not represent the final appearance or specification of the property. Layouts, finishes, and landscaping are subject to change during construction.

Important Information

  • This is a Freehold property.

Property Ref: 57180_LNH240088

Share:

Similar Properties

West Byfleet, Surrey, KT14

4 Bedroom Detached House | Guide Price £1,240,000

CHAIN FREE. Set within a lovely plot and conveniently situated within walking distance of West Byfleet village centre an...

West Byfleet, Surrey, KT14

5 Bedroom Detached House | From £1,200,000

A RARE INVESTMENT OPPORTUNITY An excellent chance to acquire 5 tenanted flats, currently generating a total rental incom...

Woodham, Surrey, KT15

4 Bedroom Detached Bungalow | Guide Price £1,200,000

This extremely attractive and spacious 4 bedroom detached character bungalow offers beautifully presented accommodation...

Woking, Surrey, GU22

5 Bedroom Detached House | £1,600,000

A luxury 5-bedroom detached family home in Woking. Featuring designer interiors, a statement kitchen, dressing suite, do...

Seymours (West Byfleet)

Station Approach, West Byfleet, Surrey, KT14 6NG

01932 354494

How much is your home worth?

Use our short form to request a valuation of your property.

Request a Valuation

Mortgage Calculator

Amount Borrowed: £
Total Amount Repayable: £
Total Monthly Payment: £
©2025 The Guild of Property Professionals. All rights reserved. Terms and Conditions | Privacy Policy | Cookie Policy | Complaints Policy | Members Login
The Guild of Property Professionals Trading Address: 121 Park Lane, London W1K 7AG. GPEA Limited. Registered in England & Wales.  Company No: 02819824.  Registered Office Address: 2 St. Stephen's Court, St. Stephen's Road, Bournemouth, Dorset, England, BH2 6LA.  VAT Registration No: 576 8795 61
Book a Property Valuation Update Cookies Preferences