Pant Yr Ardd, Tregarth, Gwynedd, LL57

£75,000

Land for sale in Tregarth, Gwynedd

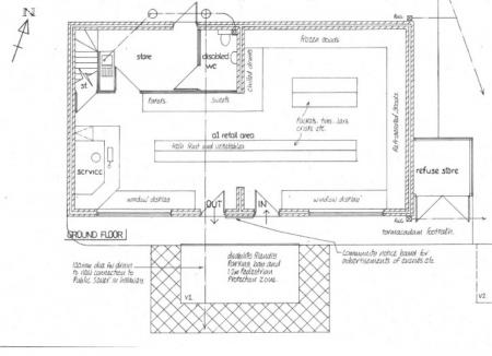
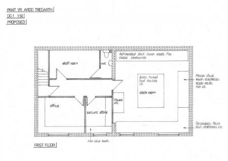
  • Good Sized Building Plot
  • Planning Consent Granted
  • 2 Storey Retail Outlet
  • Ref: C15/0348/16/LL - 05.02.2016
  • Village Centre Location
  • May Also Suit Affordable Housing

Located in the centre of the village of Tregarth approximately 4 miles from the university city of Bangor and being a former public house car park is this level development site for which planning consent has been granted in February 2016 for the erection of a new 2 storey retail unit. Further correspondence from the council has advised that the site may also be acceptable for affordable housing subject to a full application for such need being made.

The site which measures approximately 30 meters wide and approximately 20 meters deep in our opinion is large enough to accommodate a development of two blocks of 2 bedroomed town houses.

Important Information

  • This is a Freehold property.

Property Ref: 243334_RX563604

Share:

Similar Properties

Brynteg Holiday Park, Llanrug nr Caernarfon, Gwynedd, LL55

2 Bedroom Lodge | £25,000

A wonderful holiday static caravan located in the popular Holiday Park of Brynteg in Llanrug. Offering extremely well pr...

Cae Gwigin, Talybont, Gwynedd, LL57

4 Bedroom Semi-Detached House | £1,200pcm

Available in January 2026 this new modern 4 bedroom property in Tal Y Bont. For more information or to arrange a viewing...

Cae Gwigin, Talybont, Gwynedd, LL57

4 Bedroom Semi-Detached House | £1,200pcm

Available in January 2026 this new modern 4 bedroom property in Tal Y Bont. For more information or to arrange a viewing...

Llys Emrys, Porthmadog, Gwynedd, LL49

2 Bedroom Flat | £95,000

A purpose built first floor apartment with the benefit of gas fired central heating and double glazing, providing an inv...

Church Street, Caernarfon, Gwynedd, LL55

4 Bedroom Terraced House | £100,000

An exciting property project in the heart of Caernarfon town centre, just a few hundred yards from the castle and the sq...

Wood Street, Menai Bridge, LL59

1 Bedroom Flat | £105,000

A modernised 1 bedroomed ground floor apartment providing well presented accommodation being located in the centre of th...

Williams & Goodwin The Property People (Bangor)

313 High Street, Bangor, Gwynedd, LL57 1UL

01248 355333

How much is your home worth?

Use our short form to request a valuation of your property.

Request a Valuation

Mortgage Calculator

Amount Borrowed: £
Total Amount Repayable: £
Total Monthly Payment: £
©2025 The Guild of Property Professionals. All rights reserved. Terms and Conditions | Privacy Policy | Cookie Policy | Complaints Policy | Members Login
The Guild of Property Professionals Trading Address: 121 Park Lane, London W1K 7AG. GPEA Limited. Registered in England & Wales.  Company No: 02819824.  Registered Office Address: 2 St. Stephen's Court, St. Stephen's Road, Bournemouth, Dorset, England, BH2 6LA.  VAT Registration No: 576 8795 61
Book a Property Valuation Update Cookies Preferences