St Andrews Mews, Wells

£335,000

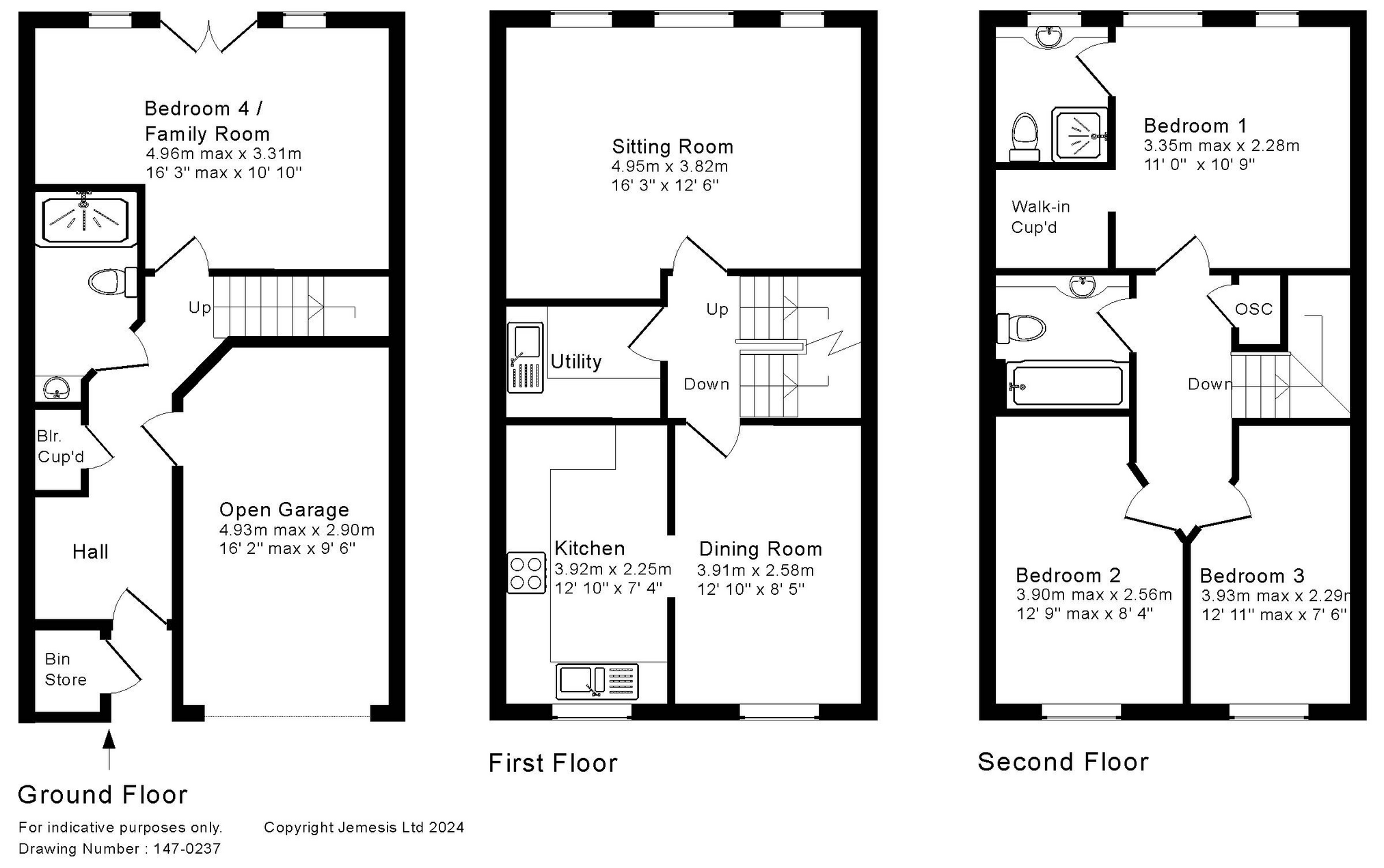
4 Bedroom Terraced House for sale in Wells

2 4 3
  • Well presented modern townhouse
  • Cul de sac position
  • Entrance hall with boiler cupboard and access to the open garage
  • Ground floor bedroom 4/ reception room opening onto the rear garden
  • Recently re-fitted shower room
  • First floor with sitting room, dining room leading into a generous kitchen and utility room
  • Second floor with 3 bedrooms and family bathroom
  • Master bedroom with en suite shower room and dressing area
  • Gas fired central heating
  • Double glazing throughout

A well presented townhouse arranged over three floors offering flexible, family-sized accommodation with the benefit of a low maintenance garden to the rear and off road parking. Viewing essential. No onward chain.

Location
Wells is the smallest city in England and offers a vibrant high street with a variety of independent shops and restaurants as well as a twice weekly market and a choice of supermarkets including Waitrose. Amenities include a leisure centre, independent cinema and a theatre. Bristol and Bath lie c.22 miles to the north and north-east respectively with mainline train stations to London at Castle Cary (c.11 miles) as well as Bristol and Bath. Bristol International Airport is c.15 miles to the north-west. Of particular note is the variety of well-regarded schools in both the state and private sectors in Wells and the surrounding area.

Directions
From Wells High Street proceed into Broad Street and into Priory Road. Turn right at the Regal Cinema junction into Princes Road. Pass the supermarket on the left and at the traffic lights turn left into Tucker Street. Take the first turning left into West Street and follow the road into the development. The property can be found at the far end of the development on the right hand side.

Material Information

Identity Verification
To ensure full compliance with current legal requirements, all buyers are required to verify their identity and risk status in line with anti-money laundering (AML) regulations before we can formally proceed with the sale. This process includes a series of checks covering identity verification, politically exposed person (PEP) screening, and AML risk assessment for each individual named as a purchaser. In addition, for best practice, we are required to obtain proof of funds and where necessary, to carry out checks on the source of funds being used for the purchase. These checks are mandatory and must be completed regardless of whether the purchase is mortgage-funded, cash, or part of a related transaction. A disbursement of £49 per individual (or £75 per director for limited company purchases) is payable to cover all aspects of this compliance process. This fee represents the full cost of conducting the required checks and verifications. You will receive a secure payment link and full instructions directly from our compliance partner, Guild365, who carry out these checks on our behalf.

Important Information

  • This is a Freehold property.
  • The annual service charges for this property is £385
  • This Council Tax band for this property is: E

Property Ref: QHK554635

Share:

Similar Properties

St. Thomas Street, Wells

2 Bedroom Terraced House | £335,000

A two bedroom character cottage set in the ever popular St Thomas Street. In need of updating and sympathetic modernisat...

Jocelyn Drive, Wells

3 Bedroom Semi-Detached Bungalow | £335,000

A semi-detached bungalow set in a corner plot and offered for sale with no onward chain. The property enjoys a mature ga...

Edge of Wells

3 Bedroom Semi-Detached House | £335,000

An immaculate semi-detached property built by Persimmon Homes in 2021. Beautifully presented throughout and enjoying a l...

Knapp Hill Close, South Horrington, Wells, Somerset

3 Bedroom Semi-Detached House | £345,000

A very stylish semi-detached house in the popular South Horrington development on the outskirts of Wells. Having been co...

Combe Batch Rise, Wedmore

3 Bedroom Semi-Detached Bungalow | Offers in region of £350,000

For sale with no onward chain and in need of updating. Lovely, quiet spot with views over the village and within an easy...

Ebbor Gorge Road, Wells

3 Bedroom Semi-Detached House | £370,000

A immaculately presented three / four bedroom town house offering versatile accommodation. South facing garden with side...

Holland & Odam (Wells)

Wells, Somerset, BA5 2AE

01749 671020

How much is your home worth?

Use our short form to request a valuation of your property.

Request a Valuation

Mortgage Calculator

Amount Borrowed: £
Total Amount Repayable: £
Total Monthly Payment: £
©2026 The Guild of Property Professionals. All rights reserved. Terms and Conditions | Privacy Policy | Cookie Policy | Complaints Policy | Members Login
The Guild of Property Professionals Trading Address: 121 Park Lane, London W1K 7AG. GPEA Limited. Registered in England & Wales.  Company No: 02819824.  Registered Office Address: 2 St. Stephen's Court, St. Stephen's Road, Bournemouth, Dorset, England, BH2 6LA.  VAT Registration No: 576 8795 61
Book a Property Valuation Update Cookies Preferences