Singleton Court, Wells

£325,000

2 Bedroom Semi-Detached Bungalow for sale in Wells

2 2 1
  • Semi-detached bungalow in a small cul de sac development
  • Very quiet and secure
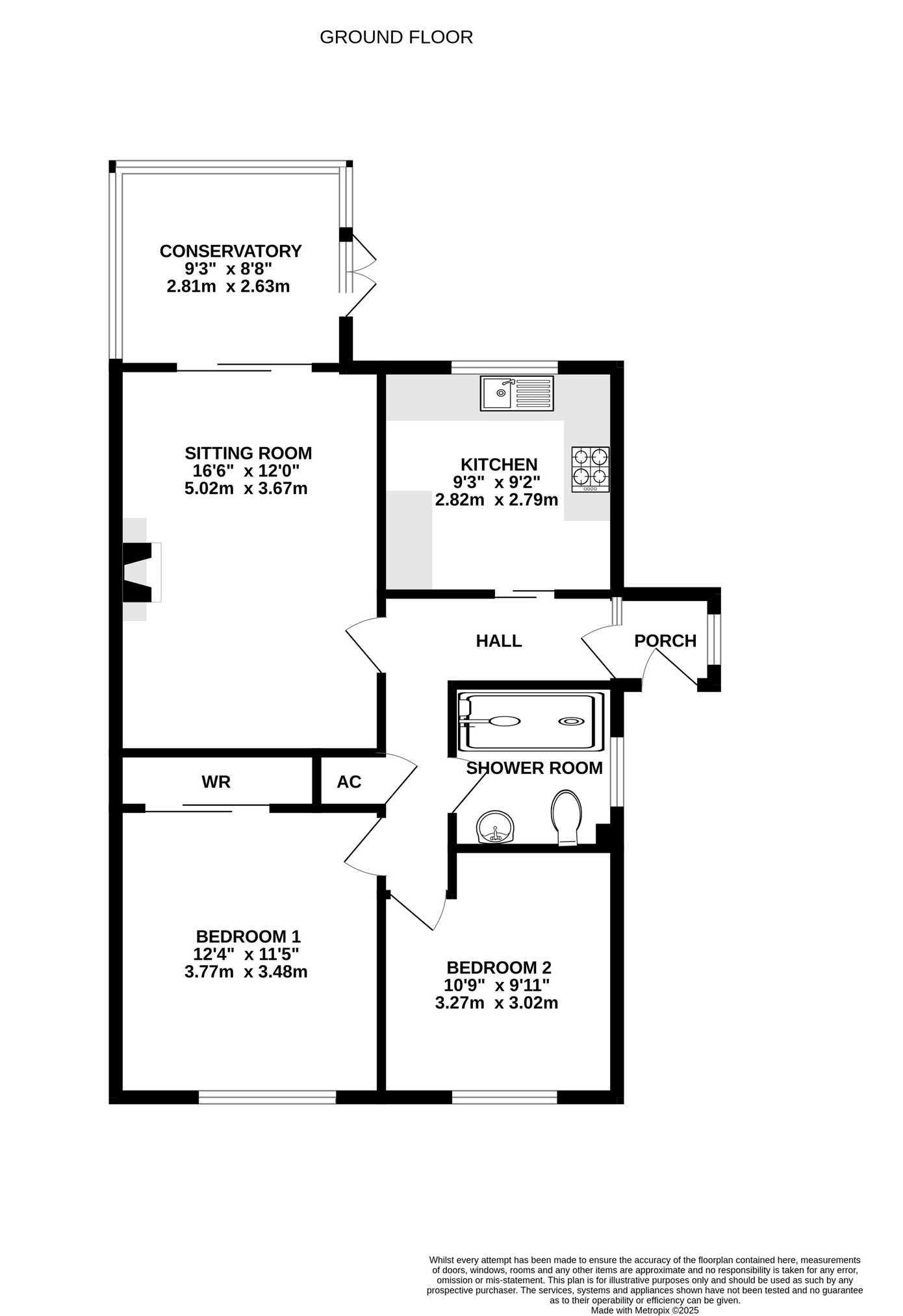
  • Sitting room with gas fire opening into a UPVC conservatory
  • Fitted kitchen with plumbing for washing machine and overlooking the garden
  • 2 bedrooms (both doubles and one with built-in wardrobe)
  • Shower room (originally a bathroom)
  • West-facing, level garden to the rear of c.50' (15.2m) in length with pond and shed.
  • Parking space to the front and further visitors' parking
  • Single garage opposite the property with power and light
  • No onward chain

A semi-detached bungalow set at the end of a small cul de sac development built in 1993. Well presented and maintained throughout there is a level, rear garden enjoying a westerly aspect and a conservatory has been added to the property to take full advantage of this.The property is offered for sale with no onward chain.

Location
Wells is the smallest city in England and offers a vibrant high street with a variety of independent shops and restaurants as well as a twice weekly market and a choice of supermarkets including Waitrose. Amenities include a leisure centre, independent cinema and a theatre. Bristol and Bath lie c.22 miles to the north and north-east respectively with mainline train stations to London at Castle Cary (c.11 miles) as well as Bristol and Bath. Bristol International Airport is c.15 miles to the north-west. Of particular note is the variety of well-regarded schools in both the state and private sectors in Wells and the surrounding area.

Directions
From the relief road follow signs for Wookey Hole via Wookey Hole Road. Take the fourth turning left into Singleton Court where the property can be found on the right hand side.

Material Information


Identity Verification
To ensure full compliance with current legal requirements, all buyers are required to verify their identity and risk status in line with anti-money laundering (AML) regulations before we can formally proceed with the sale. This process includes a series of checks covering identity verification, politically exposed person (PEP) screening, and AML risk assessment for each individual named as a purchaser. In addition, for best practice, we are required to obtain proof of funds and where necessary, to carry out checks on the source of funds being used for the purchase. These checks are mandatory and must be completed regardless of whether the purchase is mortgage-funded, cash, or part of a related transaction. A disbursement of £49 per individual (or £75 per director for limited company purchases) is payable to cover all aspects of this compliance process. This fee represents the full cost of conducting the required checks and verifications. You will receive a secure payment link and full instructions directly from our compliance partner, Guild365, who carry out these checks on our behalf.

Important Information

  • This is a Freehold property.
  • The annual service charges for this property is £120

Property Ref: 552334_QHK825127

Share:

Similar Properties

Walnut Tree Close, Wells

3 Bedroom Detached House | £325,000

A detached and extended house set in a residential development within easy reach of the city centre and with the one of...

St. Cuthbert Street, Wells

3 Bedroom Terraced House | Guide Price £325,000

A character townhouse set within a conservation area and just a short, level walk from the High Street. The property off...

Woodbury Close, Wells

2 Bedroom Semi-Detached Bungalow | £325,000

A semi-detached bungalow set in a quiet cul de sac in a popular area within easy reach of the city centre and enjoying a...

St. Thomas Street, Wells

2 Bedroom Terraced House | £335,000

A two bedroom character cottage set in the ever popular St Thomas Street. In need of updating and sympathetic modernisat...

Bignal Rand Drive, Wells

4 Bedroom Semi-Detached House | £335,000

An extended semi-detached house with a large rear garden with a garage/workshop and driveway parking. Extended by the pr...

St Andrews Mews, Wells

4 Bedroom Terraced House | £335,000

A well presented townhouse arranged over three floors offering flexible, family-sized accommodation with the benefit of...

Holland & Odam (Wells)

Wells, Somerset, BA5 2AE

01749 671020

How much is your home worth?

Use our short form to request a valuation of your property.

Request a Valuation

Mortgage Calculator

Amount Borrowed: £
Total Amount Repayable: £
Total Monthly Payment: £
©2025 The Guild of Property Professionals. All rights reserved. Terms and Conditions | Privacy Policy | Cookie Policy | Complaints Policy | Members Login
The Guild of Property Professionals Trading Address: 121 Park Lane, London W1K 7AG. GPEA Limited. Registered in England & Wales.  Company No: 02819824.  Registered Office Address: 2 St. Stephen's Court, St. Stephen's Road, Bournemouth, Dorset, England, BH2 6LA.  VAT Registration No: 576 8795 61
Book a Property Valuation Update Cookies Preferences