Norfolk Gardens, Littlehampton, West Sussex, BN17

£285,000
SSTC
This property listing is now SSTC

3 Bedroom Terraced House for sale in West Sussex

3
  • Three Bedroom Terraced Home
  • Vendor Suited
  • West Facing Low Maintenance Rear Garden
  • Gas Central Heating | Double Glazed Windows
  • Ground Floor Cloakroom | Parque Flooring
  • Rental Value Approx. £1300 Per Month

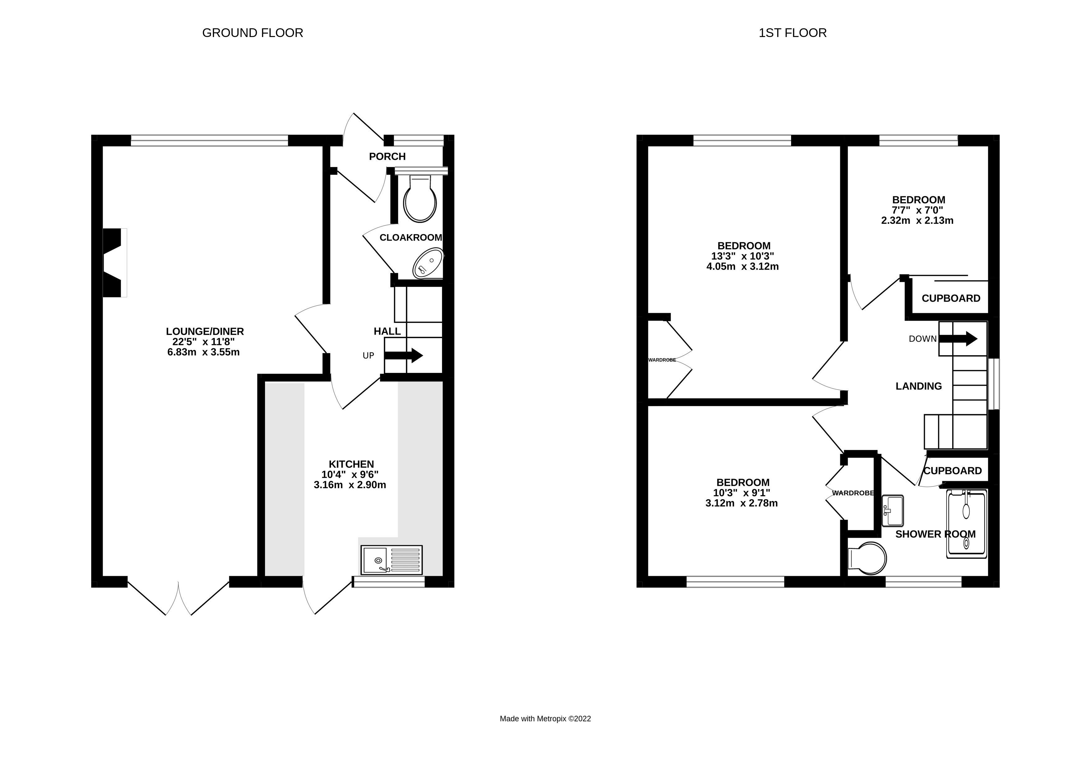
This spacious three bedroom terraced home is perfectly situated overlooking beautifully maintained communal gardens and is well presented throughout! The property boasts spacious accommodation and a low maintenance WEST FACING PRIVATE REAR GARDEN featuring a large storage shed/workshop with power and lighting. Other key features include a spacious dual aspect living/dining room with restored Parque flooring and double patio doors opening up onto the rear garden. The modern fitted kitchen is a great size and also allows access out into the garden. Upstairs provides three good sized bedrooms, all offering built in storage, and the modern shower room features a walk in shower, hand basin and WC. The property is double glazed with gas central heating throughout. Viewing is highly recommended to avoid missing out on this gem!

Littlehampton is a coastal gem sheltered by the South Downs. Situated at the mouth of the picturesque River Arun, it is a charmingly individual seaside town with a distinctive maritime character. Over the past few years the town has had a revamp and is now challenging Brighton, Shoreham, Hove, Worthing and Chichester as "the place to live".

Littlehampton offers a choice of beaches. There is East Beach with its long promenade, parklands, funfair and traditional seaside fun or the unspoiled grassy sand dunes of West Beach. The River Arun divides Littlehampton’s East and West beaches with its harbour and marina. Together, the river and sea offer a range of pursuits from boating trips to deep sea fishing, scuba diving, water skiing and sailing. Other attractions include a golf course, theatre, sports centre, museum and the distinctive and award winning East Beach Café, whilst Harbour Park, an all-weather adventure village, offers family fun for all ages.

This property is situated within a short walk from Littlehampton's superb beaches and recreational facilities and the town centre with its many amenities which include a mainline station to Gatwick Airport and London Victoria, doctors, dentists, primary and junior schools and the Littlehampton Academy.

Important Information

  • This is a Freehold property.

Property Ref: LIT220371

Share:

Similar Properties

Cherry Croft, Wick, Littlehampton, West Sussex, BN17

3 Bedroom Terraced House | £285,000

Conveniently situated within close walking distance to local schools, shops, and amenities, this spacious three/four bed...

Toddington Lane, Littlehampton, BN17

2 Bedroom Semi-Detached House | £285,000

Tucked away on a peaceful lane in the heart of Toddington, this well-presented two double bedroom semi-detached home off...

Gloucester Place, Littlehampton, West Sussex, BN17

3 Bedroom Terraced House | £279,950

This charming three bedroom Victorian terrace offers well proportioned accommodation arranged over two floors, combining...

Carvel Way, Littlehampton, West Sussex, BN17

3 Bedroom Terraced House | £290,000

NO ONWARD CHAIN! This beautifully presented three bedroom terraced home offers stylish, modern living in the highly soug...

Stanhope Road, Littlehampton, West Sussex, BN17

3 Bedroom Terraced House | Offers Over £290,000

An exceptional opportunity to own this exquisite three-bedroom character home, complete with a versatile loft room and b...

Falcon Gardens, Littlehampton, West Sussex, BN17

2 Bedroom End of Terrace House | £295,000

A superb opportunity to purchase this beautifully presented two-bedroom end of terrace home, boasting a well maintained...

Graham Butt Estate Agents (Littlehampton)

75 High Street, Littlehampton, West Sussex, BN17 5AG

01903 717177

How much is your home worth?

Use our short form to request a valuation of your property.

Request a Valuation

Mortgage Calculator

Amount Borrowed: £
Total Amount Repayable: £
Total Monthly Payment: £
©2026 The Guild of Property Professionals. All rights reserved. Terms and Conditions | Privacy Policy | Cookie Policy | Complaints Policy | Members Login
The Guild of Property Professionals Trading Address: 121 Park Lane, London W1K 7AG. GPEA Limited. Registered in England & Wales.  Company No: 02819824.  Registered Office Address: 2 St. Stephen's Court, St. Stephen's Road, Bournemouth, Dorset, England, BH2 6LA.  VAT Registration No: 576 8795 61
Book a Property Valuation Update Cookies Preferences