West Street, Chichester

Guide Price
£595,000

Terraced House for sale in West Sussex

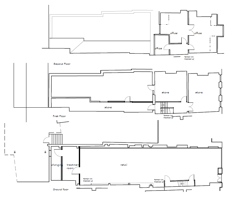
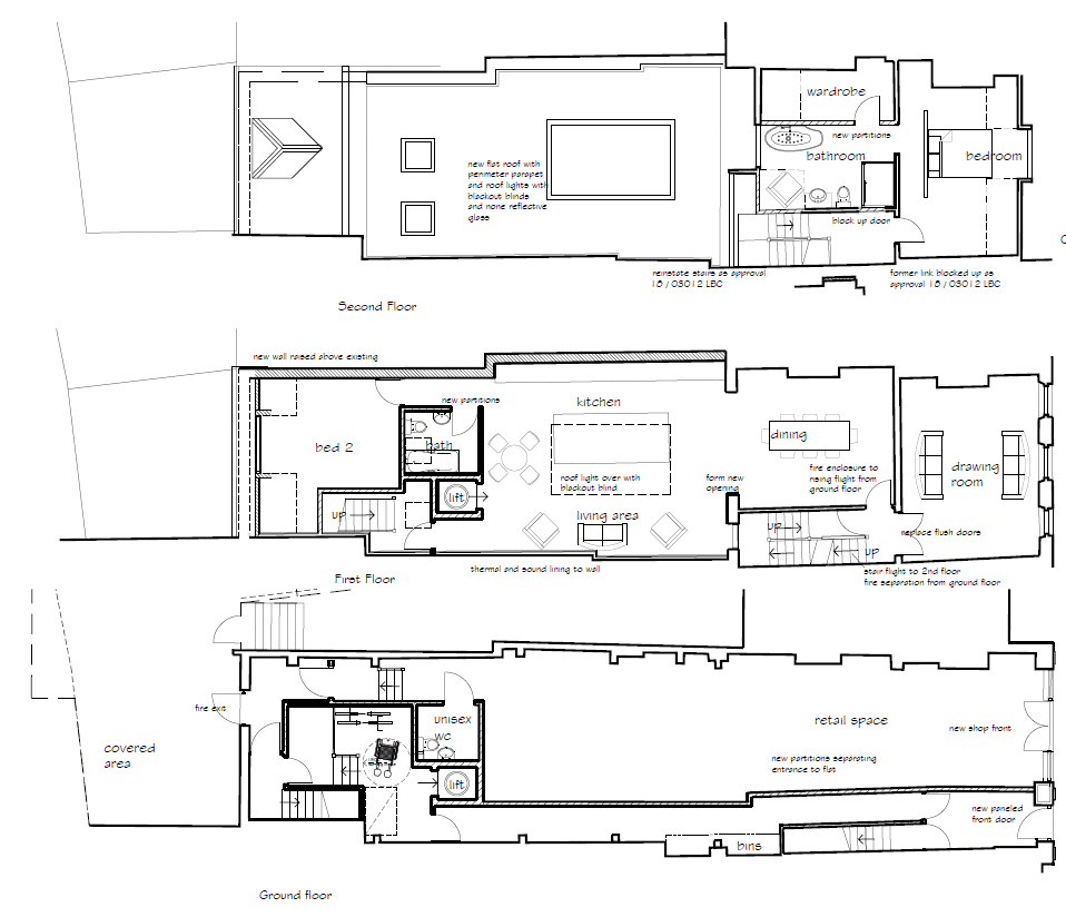
The Property is in a prominent position directly opposite the Cathedral on West Street.

Business Rates: Rateable Value as of 1st April 2023 : £32,250

Energy Performance Certificate: The property is listed therefore is exempt from providing an EPC.

Method of Sale: The Freehold Interest in the entire property is offered For Sale in one lot by private treaty.

Grade II Listing under List Entry Number: 1354399

Important Information

  • This is a Freehold property.
  • This property is exempt from EPC Rating

Property Ref: CHR240071

Share:

Similar Properties

West Street, Chichester

Retail Property (High Street) | Guide Price £595,000

A freehold retail building for sale, with planning consent granted for a luxury duplex, 2 bedroom apartment with uncompr...

Windward, Longmeadow Gardens, Birdham

3 Bedroom Detached Bungalow | Guide Price £585,000

A refined, reconfigured detached bungalow in a quiet close, beautifully presented with spacious, well-balanced accommoda...

Tower Street, Chichester

4 Bedroom End of Terrace House | Guide Price £575,000

A spacious four bedroom townhouse (1,310 sq ft), boasting an integral garage and off-road parking, situated in a tucked...

Marchwood Gate, Marchwood

3 Bedroom Terraced House | Guide Price £625,000

A rarely available mews style property, appointed with high ceilings, sash windows and a wonderful outlook across beauti...

Highland Road, Chichester

3 Bedroom Semi-Detached House | Guide Price £625,000

A rare opportunity to acquire a handsome Edwardian villa requiring renovation, situated in the highly sought-after Summe...

Selsey Road, Chichester

4 Bedroom Semi-Detached House | Guide Price £635,000

A stylishly realised and substantial semi-detached house , arranged over three floors, featuring four bedrooms and two b...

Tod Anstee (Chichester)

14 West Pallant, Chichester, West Sussex, PO19 1TB

01243 523723

How much is your home worth?

Use our short form to request a valuation of your property.

Request a Valuation

Mortgage Calculator

Amount Borrowed: £
Total Amount Repayable: £
Total Monthly Payment: £
©2026 The Guild of Property Professionals. All rights reserved. Terms and Conditions | Privacy Policy | Cookie Policy | Complaints Policy | Members Login
The Guild of Property Professionals Trading Address: 121 Park Lane, London W1K 7AG. GPEA Limited. Registered in England & Wales.  Company No: 02819824.  Registered Office Address: 2 St. Stephen's Court, St. Stephen's Road, Bournemouth, Dorset, England, BH2 6LA.  VAT Registration No: 576 8795 61
Book a Property Valuation Update Cookies Preferences