Weston-In-Gordano, Bristol, BS20

£1,550,000
SSTC
This property listing is now SSTC

5 Bedroom Country House for sale in Weston-In-Gordano Bristol

3 5 3
  • Stunning Family Home set in 4.67 Acres
  • Beautiful Formal Walled Gardens
  • 2.82 Acre Grassland Field/Potential Pony Paddock
  • Surrounded By Wildlife Trust Land
  • Generous Well Presented Accommodation
  • Kitchen, Open Plan Living, Snug, Utility and Study
  • 5 Doubler Bedrooms, 3 Well Appointed Bathrooms
  • Picturesque Views From Every Aspect
  • Detached One Bedroom Cottage
  • Garaging, Greenhouse And Ample Parking

A stunning five bed family home in 4.67 acres which can trace it's heritage to the 15th Century. The Dairy is finished to a particularly high standard, and cleverly combines a high end contemporary refurbishment with some fabulous historical features, and the added benefit of a one Bedroom Detached cottage.

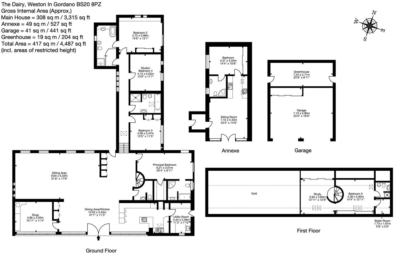
Summary Of Accomodation - Steeped In History, "The Dairy" is a stunning family home, that is set in 4.67 Acres of breathtakingly beautiful formal gardens, and is surrounded by wildlife trust land . The Dairy has been a labour of love for the current owners over the last twenty years as when acquired the property was a derelict milking parlour, calf shed and the remains of the gatehouse for the original Manor House that can trace it's heritage to the 15th Century. The attention to detail, and the quality of the fixtures and fittings are unparalleled, thus offering a unique opportunity for any discerning purchaser. The accommodation comprises of a kitchen opening onto a large dining area leading to a magnificent sitting room as well as a family room. There are Five Bedrooms, Three of which have ensuites, a further family bathroom an office, as well as a one bedroomed detached cottage, again with views. There is ample parking and picturesque views.

The Dairy is situated in the heart of Weston-In-Gordano adjacent to the Church. Accessed via a long driveway, one is immediately aware that they are driving into a special property. There are historic stone walls and features that date back to the original Manor House which was built in circa 1430 that have been retained, and used in a very sensitive, but inspiring way to create some unique aspects to this fine property. There are so many impressive historic features and aspects of the property it is impossible to capture them in these particulars, however they are well documented, and as agents we have a pamphlet that is available on request.

The accommodation offers a surprisingly contemporary feel, and the overriding impression is that of space. The quality natural finishes, combined with modern technology and outstanding views to every aspect afford the best of contemporary living, whilst staying true to the Historic significance of the property. The kitchen, utility and bathrooms are well appointed, and the four principle bedrooms are comfortable doubles, the master with a fitted walk in dressing room as well as the ensuite.

A key element to this family home is the wonderful open plan kitchen, dining, sitting room that has obvious natural divides, but offers extremely generous accommodation with exposed beams and trusses with wonderful slit and picture windows as well as patio doors over the North, South and West gardens. The French Log Burner is an impressive feature, and the underfloor heating throughout the entire property enables furniture to be placed without being restricted by radiators. There is a further family snug, and a first floor office and bathroom that could be utilised as the fifth bedroom.

The gardens of the dairy are of the finest quality, walled gardens enveloped by the aforementioned historic stone walls include water features, pergolas and formal sitting areas that offer an ambiance of peace and tranquillity. There are grounds laid to lawn, patio areas, a sizable vegetable garden and a large grassland field of 2.82 Acres that could potentially make a pony paddock.

"The Cartshed", is a one bedroom detached annex that makes a significant addition to the offering as a potential income generator or as guest accommodation, and further to this there is detached garaging block offering undercover parking for two vehicles, and a greenhouse.

Location - Weston in Gordano is a village situated in the middle of the Gordano valley on the north side on the road between Clevedon and Portishead. The village is particularly well placed for commuting to Bristol, being approximately eight miles to the west of the city. A choice of many High Street shops, restaurants and food stores at the nearby towns of Clevedon or Portishead (circa 1.5 miles). The village has a pub which is currently closed, but we understand that there are aspirations amongst the community to reopen the pub as a community lead venture . The much acclaimed Gordano Secondary school together with a number of other Primary schools are situated within close proximity as is The Downs Preparatory School (about four miles away) at nearby Wraxall offering private schooling for boys and girls aged 4 to 13 years. Bristol Grammar School, Clifton College. Clifton High School and Q.E.H. are all within about eight miles travelling distance via the world famous Clifton Suspension Bridge. This allows access to Clifton Village with its colourful range of High Street shops, boutiques and restaurants.
Overall the surrounding area provides for excellent outdoor activities with a choice of scenic walks on the network of local public footpaths. One notable attraction includes the National Trust Tyntesfield Estate, a Grade 1 Gothic revival mansion set in 540 acres of stunning gardens and open parkland.
For the commuter the M4/M5 motorway network is easily reached at Junction 19 of the M5 motorway. Bristol International Airport is about seven miles distant offering daily flights to Europe and beyond.

Useful Information - TENURE - Freehold and free
SERVICES - We understand that all mains services are connected.
BROADBAND - Ultrafast Available - Download 1000 Mbps, Upload 220 Mbps
MOBILE - EE, Three, Vodafone and 02 Confirm Data and Voice coverage
PHOTOVOLTAIC INCOME - £2,629.80 for 2022 (Index linked and tax free income)
LOCAL AUTHORITY - North Somerset County Council
COUNCIL TAX BAND - E (£2,579.76 for 2023/2024).
EPC - The Dairy (Main House) - B
EPC - The Cartshed (1 Bed Annex) - C

Important Note - Hydes of Bristol and any joint agents give notice that (i) they have no authority to make or give representations or warranties in relation to the property. These particulars do not form part of any offer or contract and must not be relied upon as statements or representations of fact. (ii) Any areas, distances or measurements are approximate. The text, photographs and plans are for guidance only and are not necessarily comprehensive. It should not be assumed that the property has all the necessary planning, building regulations or other consents and Hydes of Bristol have not tested any services, equipment, or facilities. Purchasers must satisfy themselves by inspection or otherwise. (iii) In accordance with the consumer protection from unfair trading regulations, please note that the working condition of these services, or kitchen appliances has not been checked by the Agents but at the time of taking particulars we were informed that all were in working order. Please also note that current government legislation demands that as selling agents for this property, Hydes of Bristol require written evidence of the origin/source of finance for funding for any prospective purchaser wishing to purchase this property. This confirmation shall be required prior to the vendor entering into any contract of sale and our instructions from the vendor are to this effect.

Property Ref: 14213_32206058

Share:

Similar Properties

Goldney Avenue, Clifton, Bristol, BS8

6 Bedroom Semi-Detached House | Guide Price £1,500,000

A particularly spacious 1920's (circa 3,900 sq ft) 6 bedroom semi-detached family home superbly located close to Clifton...

North Road, Leigh Woods, Bristol, BS8

4 Bedroom Detached House | Guide Price £1,500,000

Bridge View House occupies a commanding position above Brunel's renowned Clifton Suspension Bridge offering unparalleled...

Clanage Road, Bower Ashton,Bristol, BS3

5 Bedroom House | Guide Price £1,500,000

A most attractive Detached Edwardian family house set in beautifully presented gardens of approximately half an acre. Th...

Burwalls Road, Leigh Woods, Bristol, BS8

4 Bedroom Detached House | Guide Price £1,595,000

The Croft is a superb four double bedroom detached family home, built in 2016, forming part of the unique and exclusive,...

All Saints Road, Clifton, Bristol, BS8

5 Bedroom House | Guide Price £1,675,000

An exceptionally well presented, five-bedroom, Victorian House with accommodation arranged over four floors, located in...

Pembroke Vale, Clifton, Bristol, BS8

5 Bedroom House | Guide Price £1,750,000

A delightful mid-terrace Victorian residence in a highly desirable quiet area of Clifton. The current owners have meticu...

Hydes (Clifton)

28 Princess Victoria Street, Clifton, Bristol, BS8 4BU

0117 9731516

How much is your home worth?

Use our short form to request a valuation of your property.

Request a Valuation

Mortgage Calculator

Amount Borrowed: £
Total Amount Repayable: £
Total Monthly Payment: £
©2025 The Guild of Property Professionals. All rights reserved. Terms and Conditions | Privacy Policy | Cookie Policy | Complaints Policy | Members Login
The Guild of Property Professionals Trading Address: 121 Park Lane, London W1K 7AG. GPEA Limited. Registered in England & Wales.  Company No: 02819824.  Registered Office Address: 2 St. Stephen's Court, St. Stephen's Road, Bournemouth, Dorset, England, BH2 6LA.  VAT Registration No: 576 8795 61
Book a Property Valuation Update Cookies Preferences