Bisley, Woking, Surrey, GU24

£625,000

3 Bedroom Detached House for sale in Woking

1 3 1
  • No Onward Chain
  • Generous Plot
  • Planning Permission Granted - Ref. No: 24/0605/FFU
  • Detached Garage
  • Within Easy Reach of M3 & Brookwood Mainline Station
  • Walking Distance to Bisley Primary School
  • Ample Off Street Parking
  • Kitchen/Dining Room

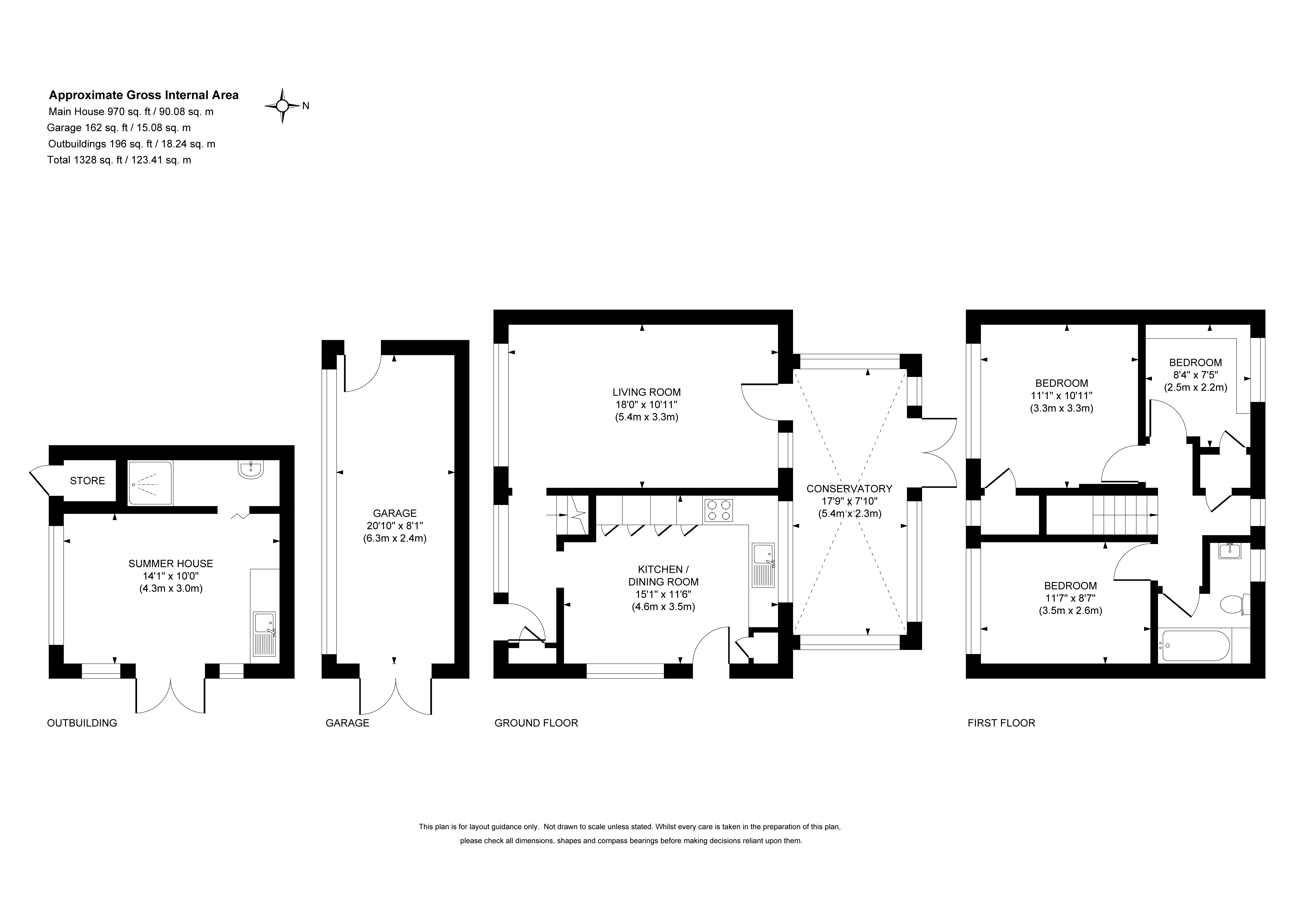
This three bedroom detached home occupies a substantial wrap around plot and is offered to the market with no onward chain, making it an ideal purchase for those looking to move swiftly. Further enhancing its appeal, planning permission has been granted for a significant extension, offering the opportunity to substantially increase the size of the existing property.
The current accommodation is well presented and thoughtfully laid out. To the first floor are three bedrooms and a modern, contemporary family bathroom. On the ground floor, you'll find a spacious lounge, ideal for family living, and a well appointed kitchen/dining room fitted with a range of base and eye level units, integrated double oven, and electric hob. A large conservatory to the rear offers additional living space and enjoys views over the generous garden.
Outside, the property truly excels. The wrap around plot provides excellent scope for extension (subject to the granted permissions) and offers a range of outdoor features including a detached garage, a large outbuilding with power, and ample off-street parking.
Location
Bisley village sits conveniently for access to both Woking (3.4 Miles) and Guildford (7.7 miles) whilst the M3 is approximately 2 miles. There is a primary school in the village with secondary schools being easily accessible in West End (Gordon's) and St John's (Winston Churchill). There is a local Sainsbury's within the village as well as an excellent continental butcher. A larger Sainsbury's superstore is within a mile in nearby Knaphill. For those who enjoy the outdoors Bisley village is surrounded by acres of common land at nearby Brentmoor Heath as well as Stafford Lake. Nearby Brookwood station provides a regular direct service to Waterloo.

Important Information

  • This is a Freehold property.

Property Ref: 58085_KNA190350

Share:

Similar Properties

Pirbright, Woking, Surrey, GU24

3 Bedroom Semi-Detached House | Guide Price £625,000

A delightful semi-detached cottage, occupying a fantastic semi-rural position in one of Surrey's quintessential villages...

Knaphill, Woking, Surrey, GU21

2 Bedroom Apartment | Offers in excess of £600,000

Florence Court is a gated development of luxurious character apartments, set within a converted Victorian building that...

Knaphill, Woking, Surrey, GU21

4 Bedroom Detached House | Offers in excess of £600,000

This detached family home is presented to the market in excellent condition having been modernised and beautifully maint...

Woking, Surrey, GU21

4 Bedroom Semi-Detached House | £635,000

Occupying a prime position within the sought after Hermitage development in St Johns, this beautifully extended four bed...

Knaphill, Woking, Surrey, GU21

4 Bedroom Detached House | £635,000

This detached family home is well presented throughout and located within easy reach of Knaphill village that offers a w...

Knaphill, Woking, Surrey, GU21

4 Bedroom Detached House | £639,950

This beautifully presented detached family home is offered to the market in excellent condition and is ideally located w...

Seymours (Knaphill)

Knaphill, Surrey, GU21 2PP

01483 798969

How much is your home worth?

Use our short form to request a valuation of your property.

Request a Valuation

Mortgage Calculator

Amount Borrowed: £
Total Amount Repayable: £
Total Monthly Payment: £
©2025 The Guild of Property Professionals. All rights reserved. Terms and Conditions | Privacy Policy | Cookie Policy | Complaints Policy | Members Login
The Guild of Property Professionals Trading Address: 121 Park Lane, London W1K 7AG. GPEA Limited. Registered in England & Wales.  Company No: 02819824.  Registered Office Address: 2 St. Stephen's Court, St. Stephen's Road, Bournemouth, Dorset, England, BH2 6LA.  VAT Registration No: 576 8795 61
Book a Property Valuation Update Cookies Preferences